Einfamilienhaus Schulzendorf
Schulzendorf, Germany
Das Haus für eine vierköpfige Familie wurde in einem Brandenburger Dorf am Rand von Berlin errichtet. Das schmale und langgezogene Grundstück, dass an einem ortstypischen Kiefernwald liegt, hatte einen maßgeblichen Einfluss auf die Planung. Wir haben die Vorteile des Grundstücks genutzt und gemeinsam mit den Bauherren das Prinzip des »Durchwohnens« entwickelt. So orientieren sich die Haupträume gleichermaßen zum Wald im Norden, sowie zur Südseite an einer kopfsteingepflasterten Baumallee.
Der bauliche Kontext einer umgebenden Siedlungsstruktur von giebelständigen Satteldachhäusern aus der Nachkriegszeit sollte in der Planung berücksichtigt, aber dabei dem Anspruch an eine zeitgemäße Erscheinungsform nicht im Wege stehen.
Das große zweigeschossige Wohnhaus wird durch eine kleinere Remise ergänzt, die einen Carport und Abstellflächen mit sich bringt. Die beiden Baukörper basieren auf der gleichen Grundform. Durch die Platzierung der Gebäude auf dem Grundstück werden drei Außenbereiche definiert. Im Süden befindet sich der offene Eingangsbereich mit Auto- und Fahrradstellplätzen. Hinter dem Haus, und vor dem angrenzenden Kieferwald, befindet sich ein ruhiger Garten mit Obstbaum und Feuerplatz. Durch die geringe Hausbreite konnte eine dritte Freiraumfläche entlang der langgestreckten Wand des Wohnraumes aktiviert werden.
Das Haus wurde in Hybridbauweise konzipiert. Für die hybride Bauart in Holz-, und Massivbau sprechen die vielfältigen bauphysikalischen und konstruktiven Vorteile. Das massive Erdgeschoss samt Decke und Mittelwand bis zur Firstpfette bringt eine klimatische Trägheit in das Gebäude und ermöglicht das leichte Dachgeschoss, welches wie eine »Holzschatulle« auf der Betondecke des Erdgeschosses liegt. Die monolithischen Außenwände wurden innen und außen verputzt. Die vertikale Rillenstruktur des Außenputzes basiert auf der vertikalen Holzbeplankung des Obergeschosses. Die Wände und das Dach des Obergeschosses wurden in Holzständerbauweise geplant. Raumseitig sind diese mit weißen Kieferdielen horizontal beplankt. Die Außenhaut der Wände ist mit karbonisierten Kieferbrettern verschalt.
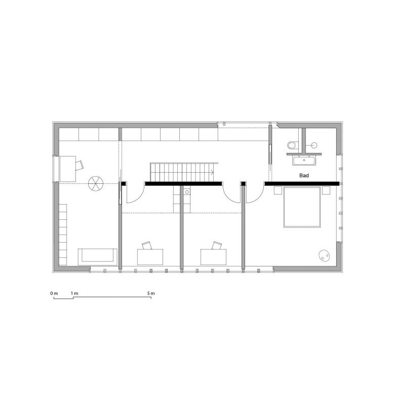
Das Innere des Gebäudes wird mittels einer durchgehenden Mittelwand strukturiert. Diese zweigeschossige Wand teilt das Gebäude in Aufenthaltsräume und Erschließungsräume und steht deshalb asymmetrisch in der Gebäudebreite. Konstruktiv wird diese Wandscheibe aus Sichtbeton auch Aufleger für den First, sodass die innere Gebäudestruktur auch die Außenhülle mitgestaltet.
Den Wohn-, Koch-, und Essbereich haben wir als zentralen, 15 Meter langen und 4 Meter breiten Hauptraum entworfen. Der lichtdurchflutete Essbereich zeigt in den Süden. Die Kochzone liegt zentral an der Längswand. Der Wohnbereich ist abgesenkt, um ihn als geschützten Ort zu markieren und den Kontakt zum angrenzenden Wald herzustellen.
Die Mittelwand sowie die Geschossdecke wurden in Ortbeton sichtbar belassen und die gesamten Böden wurden mit Heizestrich in Betonoptik versiegelt und bilden somit eine klare und einheitliche Oberflächenmaterialität. Die Treppe wurde in einem Betonwerk vorgefertigt und hat dadurch eine feine gleichmäßige Betonoberfläche.
- Any
- 2019
- Estat del projecte
- Construït
- Equip
- Andreas Heim, Nataliya Sukhova, Viktor Hoffman



















