Holzhaus am See
Berlin, Germany
Das Holzhaus steht in einem historischen Fischerdorf am Stadtrand von Berlin auf einem malerischen Grundstück direkt am Wasser. Die kompakte, klare Kubusform aus schwarzem Holz hebt sich von der Umgebung ab, fügt sich jedoch durch die natürliche Materialwahl auch harmonisch in die Natur ein. Die bodentiefen Fenster in der Ostfassade ermöglichen eine freie Aussicht auf das Panorama aus Baumbestand und See.
Die schlichte geometrische Formsprache des Gebäudes wird durch die fein strukturierte Fassade akzentuiert. Die Ost- und Südfassade sind mit großzügigen Fensteröffnungen offen gestaltet, die Gartengestaltung und der alte Baumbestand ermöglichen gleichzeitig Privatsphäre. Die seitlichen Flügel der symmetrischen drei-geteilten Fensterfront zur Terrasse ermöglichen Austritte auf beiden Seiten und durchbrechen das Fensterraster und schaffen Dynamik.
In der reduzierten Straßenfassade spiegelt sich der öffenbare Flügel der Seeseite und ist als bodentiefes fast quadratischen Fenster wahrzunehmen. Die Nordfassade ist mit der schwarzen Eingangstür und den kleinen Fenstern, die sich hinter Holzlamellen verbergen, weitgehend geschlossen. Sich wiederholende Fensterformate schaffen eine harmonische Kontinuität im gesamten Gebäude.
Das Materialkonzept ist minimalistisch und setzt auf natürliche und nachhaltige Baustoffe. Die Außenhaut besteht aus schwarzem Holz, das mit der Shou-Sugi-Ban-Technik – einer traditionellen Methode der gezielten Verkohlung – konserviert und veredelt wurde. Unterschiedlich breite Holzbretter erzeugen eine für das Auge feine angenehme und ausgewogene Struktur.
Von außen präsentiert sich das Haus als schwarzer Kubus, von innen ist es weiß und lichtdurchflutet. Den kunst- und designaffinen Auftraggebenden war es wichtig, schlichte Räume zu schaffen, in denen Kunst- und Designobjekte zur Geltung kommen.
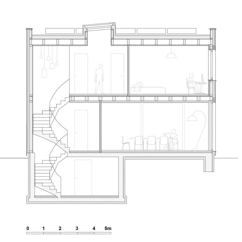
Das Erdgeschoss mit Wohn- und Essbereich ist als großzügiger, ineinander fließender Raum konzipiert, der sich um einen Kern aus Treppe, Garderobe und Bad gliedert und so zwei Nischen für Küche und Eingangsbereich schafft. Große Fensterfronten verbinden Innen- und Außenraum und eröffnen den Blick auf See und Garten.
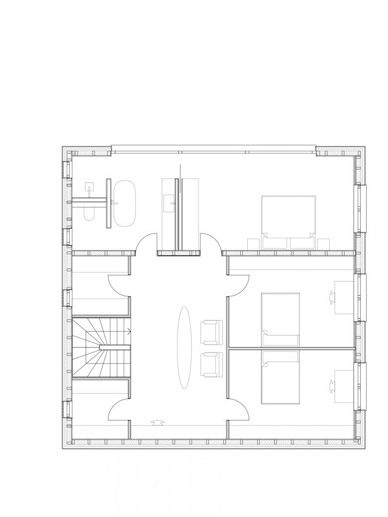
Im Obergeschoss befinden sich drei Schlafzimmer mit Bad und Garderoben- und Waschkammer. Anstelle eines klassischen Flurs führt die Treppe zu einem introvertierten, hellen Raum mit Oberlicht, der als zweiter, ruhigerer Wohn- und Arbeitsraum dient und weiteren Raum für museal von oben beleuchtete Kunstobjekte bietet. So wird aus einer Verkehrsfläche ein vielseitig nutzbarer Raum mit Aufenthaltsqualität, der dem Gebäude zusätzliche Funktionalität und eine besondere Atmosphäre verleiht. Die Kinder haben sich diesen Raum auch als Liebelingsort für Hausaufgaben angeeignet.
Im zum See orientierten Elternschlaf- und Badezimmer wiederholen sich die Panoramafenster. Das Badezimmer ist durch eine Schiebetür direkt mit dem Schlafzimmer verbunden. Ist die Tür geöffnet sind beide Räume fließend verbunden, und der Ausblick über die großzügige Fensterfront in ihrer gesamten Länge erfahrbar.
Das Raumkonzept, die Materialität und viele Details des Entwurfs wurden in enger und sehr inspirierender Zusammenarbeit mit der Bauherrschaft entwickelt. Im Vordergrund standen eine minimalistische Gestaltung und Materialität sowie die Schaffung großzügiger Räume mit starkem Bezug zum Außenraum. Anhand von Modellen, Zeichnungen, Collagen und Skizzen wurden verschiedene Entwurfsideen diskutiert und immer wieder überprüft.
- Any
- 2023
- Estat del projecte
- Construït
- Equip
- Nataliya Sukhova, Eva Dietrich
- Holzbau
- Zimmerei & Holzrahmenbau Schuchardt
- Statik
- Ingenieurbüro Kai Billinger GmbH
- Energieberatung
- Ingenieurbüro Beyer
- Rohbau
- Krüger & Krüger Ingenieurbau GmbH


























