Haus Heinersdorf – Umbau und Modernisierung eines Zweifamilienhauses
Berlin, Germany
Transstruktura und Studio Singer haben ein Wohnhaus aus dem Jahr 1936 im Norden Berlins umgebaut und energetisch modernisiert. Das Gebäude wurde außen gedämmt und erhielt eine neue Fußbodenheizung. Beheizt wird es mit einer Erdwärmepumpe, die durch eine Photovoltaikanlage auf dem Dach unterstützt wird. Unser Ziel bei diesem Sanierungsprojekt war nicht nur die energetische Modernisierung, sondern auch die Verbesserung der Wohnräume durch eine Umstrukturierung und Neugestaltung der Grundrisse.
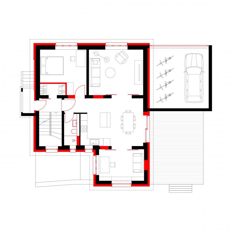
Wir haben die Raumaufteilung im Erdgeschoss durch zwei große Wanddurchbrüche und den Abriss der alten Küchenwand verändert. Der zentrale Raum wurde zur Wohnküche, die durch großzügige Schiebetüren mit dem Wohnzimmer und dem Arbeitszimmer verbunden ist. So entsteht aus kleinteiligen Räumen eine durchgehende, großzügige Raumfolge zwischen Vorgarten und rückwärtigem Garten. Durch neue Schiebetüren wird die Wohnküche schwellenlos mit der Außenterrasse verbunden.
Das Obergeschoss blieb in seiner kleinteiligen Struktur weitestgehend erhalten. Dort befinden sich drei Schlafzimmer sowie ein weiteres Arbeits- und Gästezimmer. Eine Leichtbauwand wurde versetzt, sodass ein zusätzliches kompaktes Bad mitsamt Garderobe am Elternschlafzimmer entstanden ist.
Die Grundrisse im Erd- und Obergeschoss sind so konzipiert, dass sie zunächst ausreichend Platz für eine Großfamilie mit drei Kindern bieten und in späteren Jahren, wenn die Kinder aus dem Haus sind, einfach in zwei separate Wohnungen aufgeteilt werden können.
Die Kubatur des Gebäudes wurde nicht verändert. An der Südfassade zur Straße hin haben wir die historische, dreisprossige Fensterteilung wiederhergestellt. Auf der Gartenseite wurde ein Fensterdurchbruch deutlich vergrößert, um eine großzügige, moderne, festverglaste Sitznische einzufügen, die die Sichtachse zum Garten betont.
- Any
- 2024
- Estat del projecte
- Construït
- Equip
- Nataliya Sukhova, Ola Kopka, transstruktura, Studio Singer
























