Ersatz Neubau Elektra
Jegenstorf, Switzerland
Studienauftrag Wettbewerb, 1. Rang
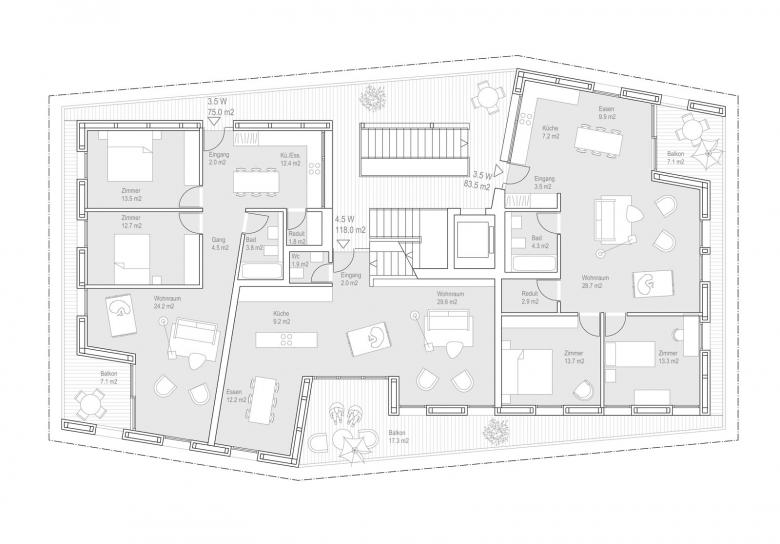
Das Projekt entwickelt sich aus einer Neuinterpretation der Bauernhaus Typologie heraus. Anstatt, dass Wohn- und Stallteil die Volumetrie gestalten, strukturieren offene Fassadenteile wie der Laubengang im Nordosten und die Balkone im Südwesten, die Längsfassaden des Neubaus. Das im Prinzip symmetrische Satteldach folgt dem Fussabdruck des Gebäudes. Die Knicke in der Volumetrie und die dadurch entstehenden leicht schrägen Trauflinien strukturieren das Gebäude in der Länge und nehmen Bezug zu den verschiedenen Situationen im Aussenraum.
- Architects
- arb Architekten
- Any
- 2020
- Estat del projecte
- Disseny
- Landschaftsarchitekten
- Klötzli-Friedli
- Ingenieurbüro
- Amstein+Walthert HLKSE











