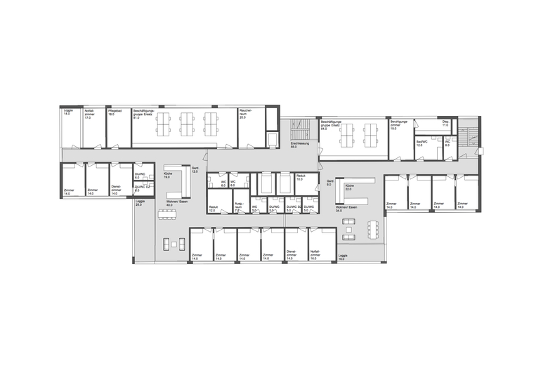
Erweiterung Stiftung Altried
Ueberlandstrasse 424, Zürich, Switzerland
- Architects
- Schneider Gmür Architekten
- Any
- 2013
- Estat del projecte
- Construït
- Client
- Stiftung Altried Zürich
- Kostenplanung / Bauleitung
- Confirm AG, Zürich
- Bauingenieur / Sanitärplanung / Badtechnologie
- Hunziker Betatech AG, Winterthur
- Elektroplanung
- Büchler und Partner AG, Zürich
- Bauphysik
- Mühlebach Partner AG, Wiesendangen
- Landschaftsarchitekt
- Thomas Steinmann, Winterthur
- Küchenplanung
- Planbar AG, Zürich
- Lichtplanung
- Priska Meier, Turgi
- Heizungs- und Lüftungsplanung
- Müller + Pletscher AG, Winterthur
- Fotograf
- Christian Schwager










