Gemeindehaus Gretzenbach
Gretzenbach (SO), Switzerland
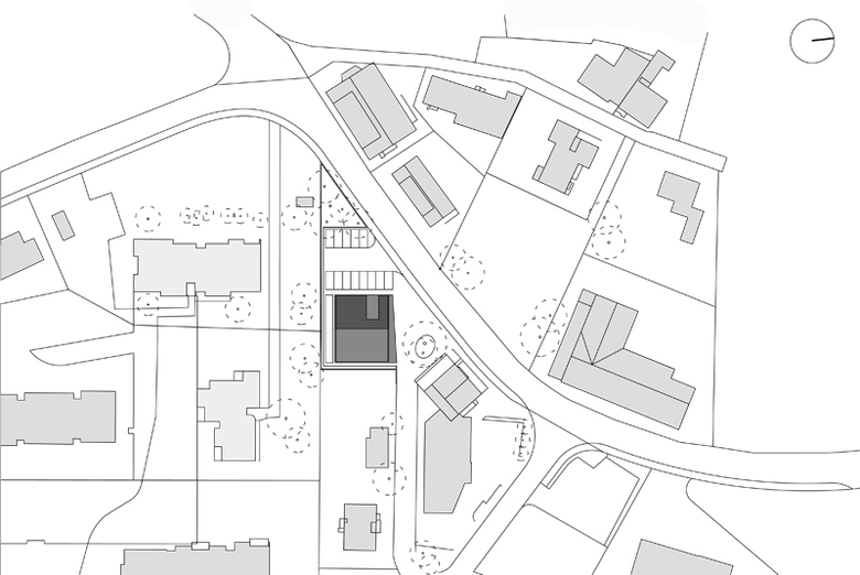
Das neue Gemeindehaus ist entsprechend der massgeblichen Geometrie der Grundstücksparzelle ausgerichtet. Dadurch entsteht zur Strasse hin eine Übereckstellung, welche die besondere öffentliche Bedeutung des Gebäudes auf einfache Weise verdeutlicht. Gleichzeitig entstehen zwei grundsätzlich verschiedene Aussenräume. Sie werden durch die Setzung des Gebäudes und die Ausrichtung des Giebels hierarchisch in einen Gemeinde- und einen Parkplatz gegliedert und erhalten entsprechend eine Haupt- und Nebenfassade. Der Gemeindeplatz, aufgespannt zwischen Gemeindehaus und Raiffeisenkasse dient nicht nur als Hauptzugang, sondern ist auch ein bescheidener öffentlicher Platz geworden.
Den restriktiven Auflagen der Kernzone wird durch Reduktion und Abstraktion von traditionellen Details, motivischen Entfremdungen sowie durch plastische Verformung und Bearbeitung des "reinen" Gebäudekörpers entsprochen. Diese Massnahmen reflektieren auf der kleinmassstäblichen Ebene graduell immer noch die unmittelbar vertraute Umgebung, ermöglichen aber zudem durch das kontrastreiche Spiel von Licht und Schatten, die besondere plastische Qualität des Gebäudekörpers wahrzunehmen.
- Architects
- nik biedermann architekten gmbh
- Any
- 2004
- Estat del projecte
- Construït
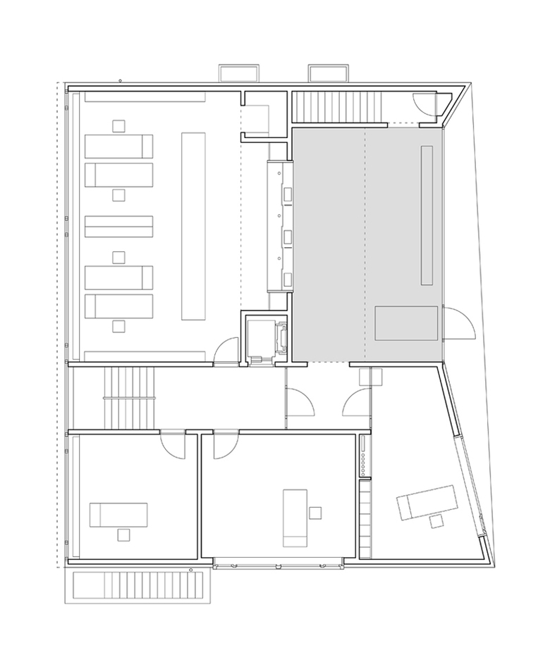
- Programm
- Neubau Gemeindeverwaltung
- Bauherrschaft
- Einwohnergemeinde Gretzenbach
- Architekten
- Nik Biedermann mit Martin Bühler, Zürich
- Bauleitung
- Marcel Eichenberger Architekt, Küttigen
- Rauminhalt SIA 116
- 3’605m3
- Gebäudekosten BKP 1-9
- Fr. 2.7 Mio.
- Studienauftrag: 2000
- 1. Rang, Ausgeführt: 2001-04
- Preis
- Auszeichnung ausgewählter Bauten im Kanton Solothurn 2004














