Tai Fu Tai Mansion Area
Xiyuan Town, Sanming, China
Shangping Village Regeneration - Tai Fu Tai Mansion Area
The last design area of the Shang Ping Village Regeneration is somewhere hidden inside the village. It locates on the east stream. According to the legend, a giant house named ‘Tai Fu Tai Mansion’ at here was built by a famous government officer after retirement. The gate tower is well preserved but the main building was destroyed by a fire many years ago, which is quite regretful. The original cultural elements and landscape like pond, ancient wells, bamboo shoots squeeze, gateway and the ancient stage ruins are utilized by designers for the regeneration. Some unused structures such as pigsty and shed are obvious on site, which is remained to be major landscape elements. Actually, these existing structures become great resources for new types of business as well as village revival.
Special location and culture of Tai Fu Tai mansion make it a great attraction for tourists. However, lack of public realms like restaurants and visitors’ center impact the tourism industry and local economy. The design team renovated unused spaces by plugging in new programs, transforming pervious production spaces into cultural/commercial use. A series of cultural products and activities attached to these spaces also have a strong appeal to travelers. It makes more sense to combine cultural industry and spatial design together for rural renovation.
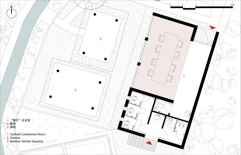
‘Pigsty Bistro’ and ‘Orchard Conference Room’
From a deserted pigsty to a bar: ‘Pigsty Bistro’ is a major new building in this area. The exterior of the building is not aggressive by keeping previous materials: rubbles and wooden roof. The floor plan is divided into four part for raising pigs. Each square is infilled with new bar, coffee table and Kang table (a heatable brick bed). The design would like to create a cosy and dramatic atmosphere by placing colorful floral pillows, Kang table, pigsty feeding,rebar decorated floor and color variable LED lights, etc. Some of these ‘Exotic’ stuffs makes it more interesting for visiting, especially for youngsters.
A small meeting room next to ‘Pigsty Bistro’ has tilted roof, with a full-height glass window facing to Tai Fu Tai Mansion and its stage. It’s called ‘Orchard Conference’ . Together with the Pigsty Bistro, Orchard Conference provide services for all users.
Lotus Chamber
Lotus Chamber is a teahouse transformed from a old utility room. It represents ‘Being Incorruptness’ for having the same pronunciation with integrity in Chinese. This building is the most obvious one by the pond next to Tai Fu Tai Mansion. The design kept old rubble wall and only fixed non-recyclable wood structure on the upper level, then making it a teahouse by water. Users can walk through a glass door, stand on the platform and enjoy spaces over the pond with lotus, referring back to the name ‘Lotus Chamber’.
Pavilion and Bamboo Shoots Squeeze
Between Tai Fu Tai Mansion, Bistro and conference room, structures for bamboo shoot s squeeze (for making dried bamboo shoot) were kept and renovated to become a great installation. One of it could still be used for producing dried bamboo shoots. When Qingming Festival comes each year, visitors could also experience making bamboo squeeze by themselves, which becomes a great interaction on site. Another one is renovated to be a pavilion. Whenever there are show playing underneath, audience could see through windows nearby.
Cultural Products
As what have been done for other spots, design team also developed a series of cultural product for Tai Fu Tai Mansion. Besides the package design for Shang Ping lotus nuts and dried bamboo shoots, products with the theme of ‘pig’ for ‘Pigsty Bistro’ are also well designed. Pig represents affluence in China and also means lucky in western culture. In Chinese character, ‘family’ is composed with a ‘roof’ and a ‘pig’, which means praying underneath the roof makes a family complete. Using pig as the prototype of cultural products like scarves, coasters and post cards is to maintain the original taste of the rural buildings, thus making it an interesting project.
Project Information:
Project Name: Shangping Village Regeneration - Tai Fu Tai Mansion Area
Location: Xiyuan Town, Jianning County, Sanming City, Fujian Province, China
Client: People’s Government of Xiyuan Township
Architectural Design Company: 3andwich Design / He Wei Studio(www.3andwichdesign.com)
Principal Architect: He Wei
Architectural Design Team: Zhao Zhuoran, Li Qiang, Chen Long, Chen Huangjie, Wang Lingzhe, Zhao Tong, Ye Yuxin, Song Ke
Building area: 151 sqm
Period of Design: Aug 2016 - Nov 2016
Period of Construction: Nov 2016 - Dec 2017
Lighting Design: Zhang Xin Studio, Tsinghua University School of Architecture
Lighting Design Team: Zhang Xin, Han Xiaowei, Zhou Xuanyu, Niu Bentian
Interior Construction Drawing: Hongshang Design
Photographer: Zhou Meng
- Architects
- 3andwich Design / He Wei Studio
- Any
- 2016
- Estat del projecte
- Construït
- Client
- People’s Government of Xiyuan Township
- Equip
- He Wei, Zhao Zhuoran, Li Qiang, Chen Long, Chen Huangjie, Wang Lingzhe, Zhao Tong, Ye Yuxin, Song Ke
- Lighting Design
- Zhang Xin Studio, Tsinghua University School of Architecture
- Interior Construction Drawing
- Hongshang Design


























