Umbau Sophienstrasse, Zürich

Zürich, Switzerland
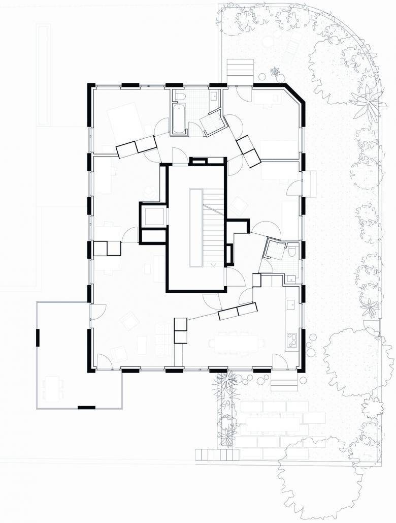
Dibuix © Roider Giovanoli Architekten

Umbau Geschäftsräume zu Eingentumswohnung | Projektierung und Ausführung: 2018/19 | Bauherrschaft: privat | Architektur und Bauleitung: Roider Giovanoli Architekten, Zürich | Fotos: Anita Kolar, Zürich

© Anita Kolar
© Anita Kolar
Fotografia © Anita Kolar
Fotografia © Anita Kolar
Architects
Roider Giovanoli Architekten ETH BSA SIA
Any
2019
Estat del projecte
Construït

Projectes relacionats 

  • Moos
    playze
  • Reiters Reserve Premium Suiten
    BEHF Architects
  • Erweiterung und Instandsetzung Hallenbad Altstetten
    MIYO Visualisierung
  • Neubau von fünf Einfamilienhäusern
    Bäumlin+John AG
  • The Forge in der 105 Sumner Street in London
    Kiefer Klimatechnik GmbH

Revista 

Altres projectes per Roider Giovanoli Architekten ETH BSA SIA 

Mehrfamilienhaus Bergbach, Erlenbach
Erlenbach, Switzerland
Genossenschaftliches Wohnhaus Nordstrasse, Zürich
Zürich, Switzerland
Wohnhaus am Waldrand, Effretikon
Effretikon
Zentrumsplanung und Neubau Alterswohnungen, Brütten
Brütten, Switzerland
Wohnhaus Hubenstrasse, Schwamendingen
Zürich