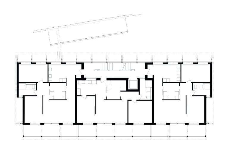
Zentrumsplanung und Neubau Alterswohnungen, Brütten
Zentrumsplanung mit vier Hochbauten und einem zentralen Grünraum – 1. Etappe: Zentrumsbau mit öffentlichen Nutzungen und Mehrfamilienhaus mit 6 Alterswohnungen
Wettbewerb: 2017 (1. Preis)
Projektierung und Ausführung: 2017-2021
ausgezeichnet mit dem „Architekturpreis Kanton Zürich 2022“
- Architects
- Roider Giovanoli Architekten ETH BSA SIA
- Any
- 2021
- Estat del projecte
- Construït
- Client
- Gemeinde Brütten












