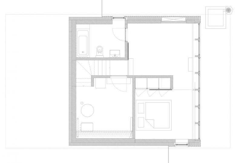
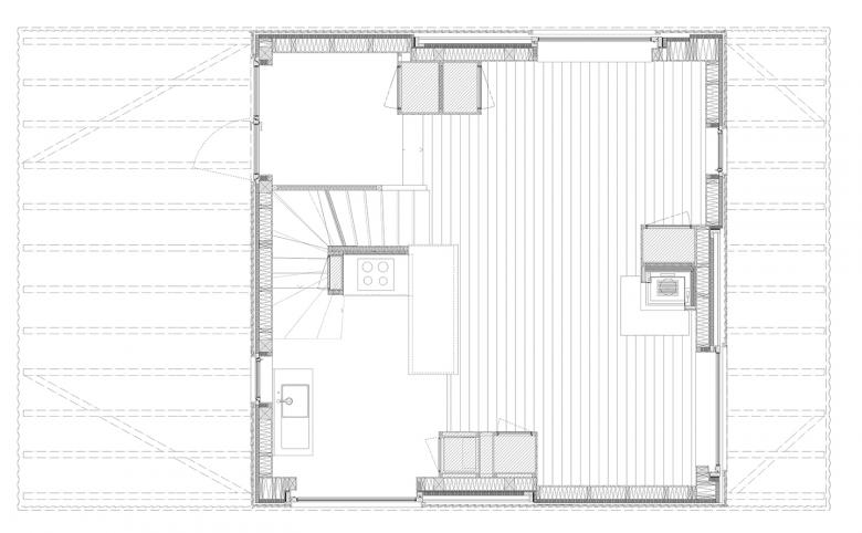
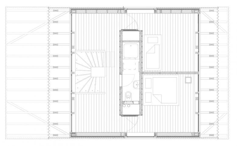
Wohnhaus Hubenstrasse, Schwamendingen
Zürich
Ersatzneubau eines Einfamilienhauses | Projektierung und Ausführung: 2012-2015 | Bauherrschaft: Privat | Architektur und Bauleitung: Reto Giovanoli mit Philipp Imboden, Architekt ETH, Zürich | Fotos: Laura Egger, Zürich
- Architects
- Roider Giovanoli Architekten ETH BSA SIA
- Any
- 2015
- Estat del projecte
- Construït
- Client
- privat


















