Centre for Creative Industries and Innovations “Ložionica” & the House of eGovernment

Transforming a Site of 'Incredible Energy'

AKVS architecture | 16. March 2026
Photo: Ilya Ivanov
What were the circumstances of receiving this commission?

Ložionica is the result of an open architectural competition announced by the Office for IT and eGovernment of the Republic of Serbia and the national platform Serbia Creates in 2021, for the revitalization and adaptive reuse of an abandoned historical site of Belgrade Railway located at the very heart of Belgrade, within the riverbank area undergoing rapid urbanization during the past decade. The competition brief asked for a new home for creative industries to meet under one roof—within the refurbished old railway depot, and the addition of one new office building for government offices and non-government organizations, start-ups, and small businesses relating to digitalization. The site was in complete ruin, with three historical jewels hidden within: Ložionica (an old railway depot), Turntable (a concrete ring in the centre for turning steam locomotives), and Watertower (for heating water for steam locomotives).

Photo: Ilya Ivanov
What makes this project unique?

This is where we would like to cite the 2025 Piranesi Award jury about our project:
“The project transforms Belgrade’s historic railway site and infrastructures through adaptive reuse and a new structure, weaving together a complex mix of offices and public programmes supported by an inventive, unconventional structural system. Its contemporary architectural expression negotiates the site’s challenging urban context, creating a dynamic dialogue between heritage and forward-looking design.”

Photo: Ilya Ivanov
What is the inspiration behind the design of the building?

The site's incredibly rich history on one side and the creative and digital industries as future users on the other, along with its primarily public use and its location within a complex urban matrix, created a unique set of influences for us to respond to. The result was many experimental, custom-made, challenging solutions all in one project: 5m-high, 2t-heavy gabion panels, bamboo forest facade, levitating office building in steel, panoramic public terrace in the heart of the office building, open-air escalator, 3t-rotating steel table within the public space, 100-year-old preserved concrete structure intertwining carefully with the new steel gallery… 

Photo: Ilya Ivanov
How did the site impact the design?

For us, the entire area was bursting with energy, waiting for its story to be retold and reintegrated into the city's contemporary life! One hundred years ago, Ložionica was among the first buildings constructed using the novel technology of reinforced concrete, and its grand opening connected the country to the region via a new railway. About 50 years ago, at the same place, a new highway of Brotherhood and Unity was built, connecting the entire Balkan region with Europe. Today, our project focuses on preserving the historical structures and revitalizing them with contemporary additions: the yellow steel gallery for the Ložionica building, the yellow footbridge connecting the Watertower to the entire complex, and the steel rotating table in the centre, where once steam locomotives revolved to enter Ložionica's depot. The newly added House for eGovernment, with its futuristic structural system and bamboo-forest facade, was our thoughtful addition to the incredible energy we found on site.

Photo: Ilya Ivanov
To what extent did the owner, client, or future users of the building affect the design?

We were incredibly fortunate to be supported by the client after winning the competition and to have the opportunity to work on the challenging elements of our proposal in real life. 

Ložionica is the result of an incredible collaboration among many dedicated teams and individuals, as well as expert consultants, engineers, craftsmen, and creators over the past five years… From envisioning the entire concept within the ruins of the original site and organizing the architectural competition, through challenging detailed design documentation development, interior design development, and a very inspiring and intense construction process, to witnessing real life finally taking place within the spaces we imagined! We were all driven by the client's incredible enthusiasm and the creative energy of the complex's future life.

Photo: Ilya Ivanov
Were there any significant changes from initial design to completion?

The design process is dynamic and unpredictable, always full of new parameters and surprises, especially when working on a refurbishment and a new building typology. Looking back on the entire process, we can say that about 98% of our competition proposal was realized, with a few changes along the way that we fully controlled and designed to align with our original concept. The steel gallery within Ložionica required new support columns, entirely independent of the old and fragile concrete structure; gabion panels were fixed instead of rotating; and the photobioreactor facade became our vertical bamboo forest. 

Photo: Ilya Ivanov
How does the building relate to other projects in your office?

Our work focuses on developing experimental spatial systems and shifting the boundaries of understanding and use of space, which is why we primarily work on competitions. Over the past 13 years of our practice, we have completed more than 50 competitions of different sizes and typologies, each uniquely suited to the specific site and competition brief. In this sense, Ložionica is similar to our other projects and our efforts to redefine custom spatial patterns, but its experimentality emerges from the unique genius loci it embodies and the fresh creative energy of its future.

Email interview conducted by John Hill.

Photo: Milos Martinovic
Photo: Ilya Ivanov
Photo: Milos Martinovic
Photo: Ilya Ivanov
Project: Centre for Creative Industries and Innovations “Ložionica” & the House of eGovernment, 2025
Location: Belgrade, Serbia
Client: Government of the Republic of Serbia - Office for IT and eGovernment, Serbia Creates
Architecture + Refurbishment + LandscapeAKVS architecture (Anđela Karabašević Sudžum, Vladislav Sudžum), Belgrade
Project Management: Dragana Čukić, Nikola Matić
Design Documentation: Mašinoprojekt Kopring AD 
Interior Designers: INKA studio (Ložionica), MAPA architects (House of eGovernment)
Acoustics: Profakustika
General Contractor: M Enterijer Gradnja
Supervision: Beo Potez, Bureau Cube Partners, AG Institut
Site Area: 22,620 m2
Building Area: 23,200 m2
Site Plan (Drawing: AKVS)
Gallery – Floor Plan (Drawing: AKVS)
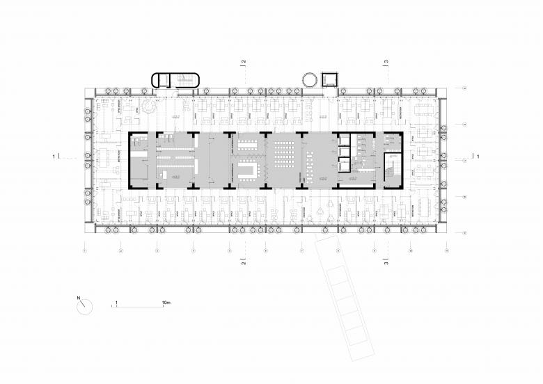
House for eGovernment – Fourth Floor Plan (Drawing: AKVS)
House for eGovernment – Building Section (Drawing: AKVS)
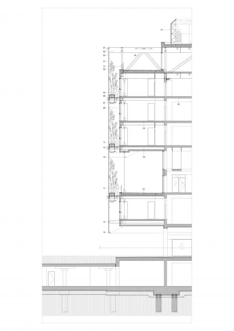
House for eGovernment – Wall Section (Drawing: AKVS)

Other articles in this category