Monologue

An Architecture of 'Quiet Narrative'

SOSOKKI ANAC / Gi-Tae Chung | 30. March 2026
 Photo: Seok-Gyu Hong
What were the circumstances of receiving this commission?

This project was not the result of a competition or formal RFP process. Instead, it began through a direct connection with the client, who was seeking to create a space that goes beyond a typical café. From the beginning, the intention was to develop a place with a strong narrative and spatial identity, rather than a purely commercial venue. The project evolved through close collaboration and dialogue, allowing the concept to grow organically.

Photo: Seok-Gyu Hong
What makes this project unique?

Monologue Café is conceived as a space of introspection rather than consumption. The project focuses on silence, time, and emotional resonance. The architecture avoids excessive expression and instead creates a restrained atmosphere, allowing visitors to experience a subtle narrative through space, light, and material. It is less about visual impact and more about internal experience.

Photo: Seok-Gyu Hong
What was the inspiration behind the design of the building?

The design was inspired by the concept of a “monologue”—a solitary voice existing within time. We explored how architecture can embody a quiet narrative, where the user becomes both the observer and the protagonist. The idea of walking through time, and experiencing subtle shifts in atmosphere, guided the overall design approach.

Photo: Seok-Gyu Hong
How did the site impact the design?

The site played a crucial role in shaping the project. Its natural context and surrounding atmosphere encouraged a design that blends quietly into its environment rather than dominating it. The building was positioned and shaped to respond to light, views, and movement across the site, creating a continuous dialogue between interior and exterior.

Photo: Seok-Gyu Hong
To what extent did the owner, client, or future users of the building affect the design?

The client’s intention to create a meaningful and emotionally engaging space had a significant influence on the design. Rather than focusing on efficiency or commercial optimization, the project prioritized atmosphere and narrative. This shared vision allowed the design to maintain its conceptual clarity throughout the process.

Photo: Seok-Gyu Hong
Were there any significant changes from initial design to completion?

While the core concept remained consistent, several adjustments were made during the process to better align with construction realities and material behavior. These changes were not deviations, but refinements that strengthened the original intent, allowing the project to achieve a more precise spatial and atmospheric quality.

Photo: Seok-Gyu Hong
How does the building relate to other projects in your office?

This project reflects our ongoing interest in narrative-driven architecture. Rather than treating buildings as isolated objects, we approach them as part of a larger conceptual framework that explores time, memory, and human experience. Monologue Café can be seen as a continuation of this approach, where architecture becomes a medium for storytelling.

Email interview conducted by John Hill.

Photo: Seok-Gyu Hong
Project: Monologue, 2025
Location: 7, Odochigil, Seomyeon, Hongcheon-gun, Gangwon-do, South Korea
Client: Monologue
ArchitectSOSOKKI ANAC / Gi-Tae Chung
  • Design Principal/ Project Manager: Gi-Tae Chung
  • Project Architect: Jae-mun Kim
Associate Architect/Structural Engineer: WA20
MEP/FP Engineer: Duksu Engineering
Landscape Architect: NATURAL SPACE
Lighting Designer/Interior Designer: SOSOKKI ANAC
Contractor: STARSIS
Site Area: 3,463 m²
Building Area: 455.6 m²
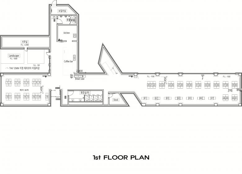
Drawing: SOSOKKI ANAC
Drawing: SOSOKKI ANAC
Drawing: SOSOKKI ANAC
Drawing: SOSOKKI ANAC
Drawing: SOSOKKI ANAC
Drawing: SOSOKKI ANAC

Related articles 

Other articles in this category