A Visit to Daigo Town Hall

Endo Architect and Associates | 26. August 2022
All photos by Neoplus Sixten Inc.
The project was selected through a request for proposals in June 2018, after which the design was changed at the request of the new town mayor. Furthermore, because the planned site and the surrounding town were flooded by a typhoon in October 2019, a new site on higher ground a short distance away was decided upon.
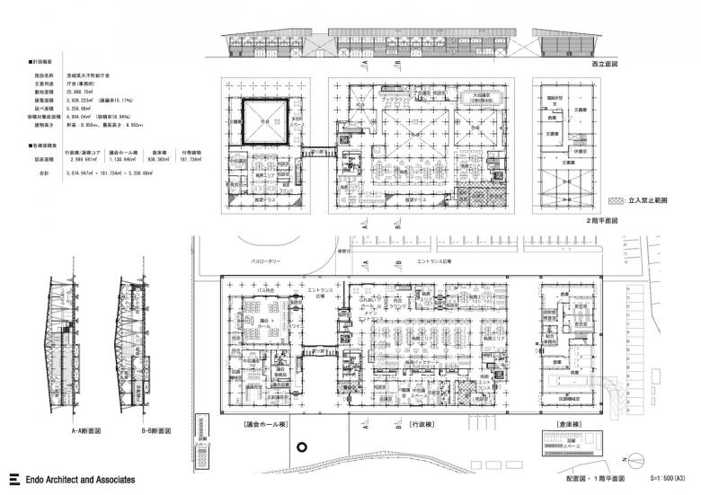
The 114-meter-wide town hall consists of three buildings from the front: the council hall building, the administration building, and the warehouse building. The design was done once again for the new site. The government building was made of pure wood. From the original site, the project took four years, including five rounds of schematic design and two rounds of design development.
The town hall is located on the west side of the large site and is visible from the city center and the railroad. The opening of the new office is scheduled for September 20; the parking lot was not yet completed.
The symbolic wooden structure welcomes visitors at the bus waiting area in the council hall building. 
The square in front of the entrance to the administration building.
The impressive wooden structure spreads out before one's eyes as one enters the administrative building. The project was coordinated with the prefectural forestry cooperative from the design stage in order to use 900 m3 of lumber produced exclusively in Ibaraki Prefecture.
A free space for town residents to use under the shade of a large tree.
Beyond that is the waiting lounge. The stairs in the back lead to the "book lounge," which is available to residents of the town.
Looking back at the office space and procedure counter: The fireproof building and sprinklers were installed in accordance with the law, and a continuous wooden structure was established from the outside to the inside.
From the office space: Almost all of the office space is vaulted, creating an atmosphere of working in between groves of trees. Pillars are arranged on a grid with 3.6m intervals. Hip walls visible in places are load-bearing walls.
Looking up, you can see the relationship between the columns, the cane, and the truss beams.
Behind the office space is the back yard, which leads to the server room, printing room, and conference room. The black hanging wall on the ceiling is a smoke barrier.
The procedural counter with a clear view.
Going up to the second floor. Countless canes spread out like a canopy of trees.
The office area on the second floor: A terrace with a view is located in the center. The mayor's office and reception area are located behind the terrace. The first floor is the same, but if the desks and counters are moved, an open floor like this can be created. Variability and renewability are ensured so that the use of the building can be changed in any way in the future.
A terrace with a view: a place where the residents of the town can rediscover their town, rich in nature.
A corridor spanning the atrium.
From the corridor.
Next, we move on to the council hall building, which is connected to the administration building by a corridor. The plaza in front can be used for various events.
The administrative building also has a foyer, the braces visible near the windows.
Council Hall: Outside the front opening is a bus waiting area, and although blinds are installed, the council hall is physically open. This is the design that Mr. Endo strongly recommended to the council, saying, "It is better to conduct government in a place close to the people." Also, all the fixtures are movable so that they can be used in other ways.
The council hall can be seen from the free space on the second floor. "I want the citizens, especially children, to feel free to use these free spaces as a place to stay," said Endo. "I always design public buildings with this in mind."
From the multipurpose space.
"The new town hall of Daigo was completely redesigned following the relocation of the site due to the flooding, and the change of the main structure to pure wood led to the creation of a 'forest architecture' suitable for the hilltop location. The process that led up to this point was truly a winding and tortuous one, but as a result of our continuous efforts to do the best we could at the time, we believe we have succeeded in creating a forestry town hall that embodies the social capital of the town of Daigo."

Katsuhiko Endo

Katsuhiko Endo
Project: Daigo Town Hall, 2022
Location: Daigo Town, Ibaraki, Japan
Design Architect: Endo Architect and Associates
  • Design Team: Katsuhiko Endo, Hisashi Higuchi, Yoshimasa Kariya, Marika Sekiya, Yu Ono
Structure: Jun Sato Structural Engineers Co., Ltd.
Engineering: EOS plus Co., Ltd.; Chiku Engineering Consultants; Kawamura Engineering Consultants.
Site Area: 23,500㎡
Total Building Area: approx. 3,800㎡
Gross Floor Area: approx. 5,000㎡

A version of this article was first published on Japan-Architects.

Other articles in this category