Photo: Jason O'Rear (All images courtesy of OMA New York)
World-Architects got a tour of Eagle + West, the just-completed residential development on the waterfront of Greenpoint, Brooklyn, designed by OMA New York under partner Jason Long. The 745-unit residential project is most striking for the shifted and angled massing of its two towers — and the space in between them.
The best way to perceive the 30- and 40- story towers of Eagle + West — so named for the street intersection where the project is located — is to take the East River ferry, as I did to get to the project for the tour earlier this week. In the short one-stop ride from East 34th Street in Manhattan to Greenpoint, the northernmost neighborhood in Brooklyn, one sees the jigsaw-like towers generously spaced apart, as in the photo immediately below, then merging into one, then pulling apart once again.
The shifting perception of the space between the towers is reminiscent of the Twin Towers at the World Trade Center, which were formally platonic and unbudging but looked different dependent on one's vantage point. Eagle + West, on the other hand, is enlivened by stepped and angled terraces and cantilevers that, as I learned about on the tour with Jason Long and others on the design and development team, allowed for greater separation between the towers and optimized views of Manhattan up and down the East River.
In addition to Long and others on the OMA team, on hand during the tour were team leaders from Marmol Radziner (building landscapes and amenities interiors), Beyer Blinder Belle (executive architect and unit interiors) and Brookfield Properties (developer). Below is a visual tour of Eagle + West with captions reflecting the information gleaned and impressions gained from my first-person visit. Also be sure to visit the OMA profile for more information on the project.
In addition to increasing physical separation between the tower and optimizing views, the massing breaks down the scale of the towers into blocks between four and eight stories tall, akin to the low-scale fabric of Greenpoint. (Photo: Jason O'Rear)
The north elevation of the project, seen from across Newtown Creek in
Hunters Point South Waterfront Park, shows the 40-story tower along the waterfront and the 30-story tower to the east, both linked by a low-rise base with amenities. (Photo: John Cole)
The Greenpoint ferry landing is south of the site, necessitating a walk up West Street — and a different view of the towers and their shifting floor plates. (Photo: Ossip van Duivenbode)
Looking west along Eagle Street, the appearance of the towers changes once again: slimmer, with the cantilevers in the taller west tower appearing more subtle. (Photo: Ossip van Duivenbode)
If one were trek farther north into Greenpoint Landing — Brookfield Properties' large waterfront development that is punctuated by Eagle + West — the two towers appear to merge into one. (Photo: Ossip van Duivenbode)
OMA New York was clearly cognizant of the shifting appearance of the project, examining the massing from various vantage points. (Image: OMA and Bloom)
This diagram, seen from the northwest, illustrates the massing of the towers and the low-rise components snaking between them, but it also expresses the orientation of the serrated precast concrete panels that wrap the facades. (Image: OMA and Bloom)
The alternating angled/horizontal/vertical precast panels are evident in this view looking up... (Photo: John Cole)
...but they are best seen up close, which is possible at street level as well as within the units, on the private terraces, and from the shared outdoor amenities. (Photo: John Cole)
An extension of Eagle Street to the west provides access for loading and parking at the base of the 7-story low-rise seen here, where most of the project's 224 affordable units (versus 521 market-rate units) are located. (Photo: Ossip van Duivenbode)
Eagle Street ends at a cul-de-sac in front of one of the project's three entries, above which is a glass cantilever expressing the amenity bridge that internally joins the three main components of the project: 40-story tower, 30-story tower, 7-story low-rise. (Photo: Ossip van Duivenbode)
A few plans to aid in orientation: first, the site plan, with Eagle Street at the bottom. (Drawing: OMA)
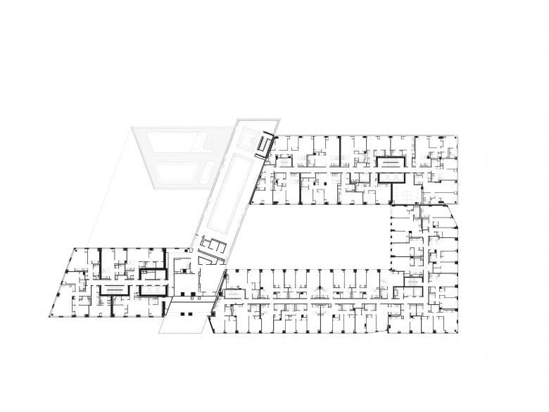
The second floor plan showing the shared outdoor spaces. (Drawing: OMA)
And the sixth floor plan showing the amenity bridge. (Drawing: OMA)
Like the other shared spaces in the project designed by Marmol Radziner, the lobby features ribbed stone surfaces inspired by OMA's exterior design, as well as some bespoke, locally made furniture. (Photo: Jason O'Rear)
The wood-lined stair in the previous photo leads residents to the amenity spaces, including this generous second-story lounge at the southwest corner of the site, where views of the East River and Manhattan can be had. (Photo: Jason O'Rear)
Seating in the lounge is built into the project's ubiquitous large eight-foot square windows. (Photo: Ossip van Duivenbode)
A smaller lounge area, but featuring a full-sized kitchen, is located in the end of the bridge directly above the lobby. The space overlaps with one corner of the 40-story west tower, so diagonal concrete columns transfer the loads to the side — and open up views to the south. (Photo: Jason O'Rear)
Steel trusses structure the rest of the amenity bridge, which houses a fitness center on one level and a lap pool on the floor above. (Photo: Jason O'Rear)
Back downstairs, an exterior stair at the rear of the lobby leads to the elevated outdoor spaces. (Photo: Jason O'Rear)
These spaces, designed by Marmol Radziner, include an outdoor pool, seating, and grilling areas; Brookfield provided a dog run in one of the earlier, adjacent parts of Greenpoint Landing so residents will not find one here. (Photo: Jason O'Rear)
An aerial view better illustrates the indoor and outdoor amenities at the northwest corner of the site as well as the way the glassy bridge squeezes itself between the two towers. (Photo: Jason O'Rear)
From the towers, where we're heading next, the various angles of the towers and amenity components can be easily gleaned. It should be noted that the waterfront park, visible here wrapping around the buildings, was designed by James Corner Field Operations, with the landscapes atop the buildings designed by Marmol Radziner. (Photo: Jason O'Rear)
The unit interiors, which were designed by Beyer Blinder Belle, are simple, befitting the modern design of the whole development. (Photo: John Cole)
Coming to the fore are the 8-foot square windows, which are large but a pleasant departure from the curtain walls and window walls that have predominated in recent years. (Photo: John Cole)
The square windows allow for some furnishing to go at the exterior wall while still providing expansive views — an important feature given the dearth of private terraces. (Photo: John Cole)
Given the two towers, some of those views are of the project itself, where the serrated precast surfaces are even more pronounced. (Photo: Ossip van Duivenbode)
Lastly, Jason Long pointed out that it's not by accident that certain views — as in the World Trade Center seen here from the 30-story east tower, or Downtown Brooklyn in the previous photo — were preserved by the shifting and massing of the towers. (Photo: Ossip van Duivenbode)