Mississippi by Waechter Architecture
First 'All-Wood' Commercial Building in Oregon Completed
Portland's Waechter Architecture has completed Mississippi, a three-story commercial building that serves, in part, as the firm's own headquarters and is billed as the Pacific Northwest’s first “all-wood” mixed-use mass timber project.
The “all-wood” character Mississippi is not apparent when seeing the exterior of the building that sits on N Mississippi St. in Portland's Boise neighborhood: It is wrapped in corrugated weathering steel. Besides this “rain jacket” and radiant concrete flooring, all of the surfaces within Mississippi are exposed wood free of any additional finishes or (unnecessary) fireproofing. “This approach creates a simplicity and wholeness that is absent in standard CLT or traditional frame projects,” the architects wrote in a statement, “and creates spaces with uncommon warmth, beauty and durability.”
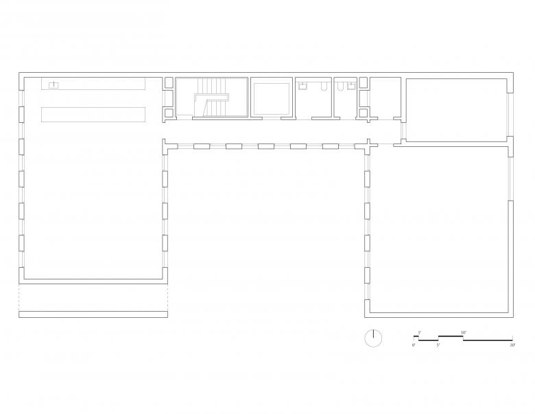
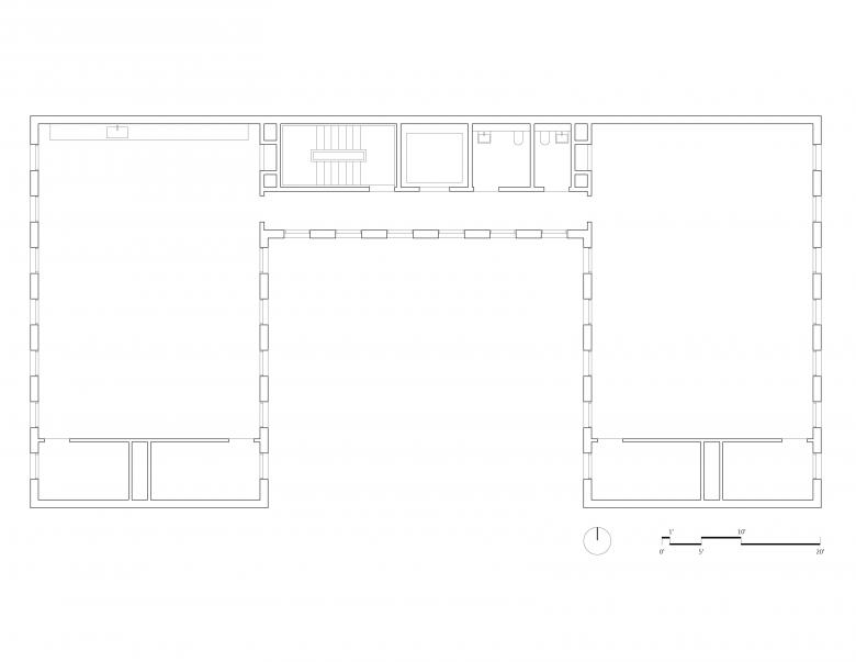
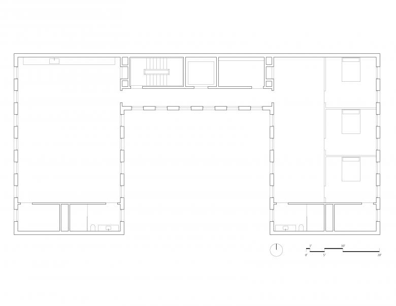
The rectangular site of Mississippi is oriented east-west, with large rooms located toward the street (west) and alley (east) overlooking a courtyard in the center; corridors and vertical circulation sit on the narrow north edge of the courtyard. It is a simple plan driven by “economy, constructability and agility,” per the architects, who created the courtyard as a semi-private transition from the street and a venue for events, presentations, and informal gathering. The ground floor of the building is occupied by a cafe, maker space, and bicycle parking; Waechter Architecture's offices are on the second floor; and a single residence occupies the third floor.
The programmatic mix of the building belies the nearly monolithic character of the interior, with wood covering every surface minus the radiant concrete floors. The benefits toward health and well-being that come from using wood in interiors is widely known, though its application still lags behind other materials, especially in the United States. With the design and completion of Mississippi, Waechter Architecture has received a grant from the USDA Forest Service Wood Innovations Program “to study the building’s performance, and to identify potential applications of its innovative approach in other commercial, institutional, and residential settings,” per the architects.
“Every decision, from the building’s organization to the selection of healthy and highly efficient materials and building systems, such as all-electric, refrigerant free, hydronic heating and cooling systems, embodies the principles of resilience and enduring design. The ultimate goal is to create a future-proof building that also possesses a strong sense of identity, grace and permanence.”
Location: Portland, Oregon, USA
Client/Operator: 4224 N Mississippi LLC
Architect/Interiors/Construction Manager: Waechter Architecture
- Principal Architect: Ben Waechter
- Project Manager: Alexis Coir
Mass Timber Installation: Mustang Ridge
Civil and Structural Engineer: KPFF
Mechanical/Electrical/Plumbing Engineer: PAE
Code / Fire Protection: Code Unlimited
Construction Management: Owen Gabbert LLC, Cutwater Design & Build Solutions
Landscaping: Cistus Nursery
Related articles
-
-
-
Spaces for Cars – And for People
Kennedy & Violich Architecture, Ltd. (KVA) | 02.03.2026 -













