Museum Reinhard Ernst (mre) in Wiesbaden, Germany

Fireworks in a Sugar Cube

Falk Jaeger | 23. June 2024
Courtyard with Buscando la luz II (In Search of Light), 2000, by Eduardo Chillida (Image © Reinhard & Sonja Ernst Foundation, Museum Reinhard Ernst. Photo: Helbig Marburger, 2023)

The new building of the Museum Reinhard Ernst has yet to make headlines in the local press, probably due to the quiet construction process. Yet it has qualities to offer as a place for presenting and communicating art as well as an architectural gem, something that will probably put the building in the national and international spotlight when it opens.

The Limburg entrepreneur Reinhard Ernst, who had developed two companies that produce special drives for robotics and mobility solutions, sold them to Japanese partners and subsequently set up a foundation together with his wife, Sonja. At the turn of the millennium, he began to consider how he could present the impressive art collection he had been building up since the 1980s to the public, by donating it to a museum, for example. The Reinhard Ernst Collection is Europe's most important private collection of abstract art and comprises more than 900 works from Europe, the United States, and Japan from the period after the Second World War to the present day.

Courtyard with Buscando la luz II (In Search of Light), 2000, by Eduardo Chillida (Image © Reinhard & Sonja Ernst Foundation, Museum Reinhard Ernst. Photo: Helbig Marburger, 2023)
View from the second floor (Image © Reinhard & Sonja Ernst Foundation, Museum Reinhard Ernst. Photo: Helbig Marburger, 2024)

The fear of all donors that their private collection will disappear into storage, apart from a few selected highlights, prompted Ernst to build his own museum. Ernst had already realized the “Haus der Hoffnung” (House of Hope) meeting place, a social project for victims of the 2011 tsunami in Natori, Japan, with Fumihiko Maki. He initially commissioned Maki to design a museum at his headquarters in Limburg, but the city fathers there turned him down. They will be sorry today.

Ernst's new place of residence, Wiesbaden, accepted the offer and made the prime property at Wilhelmstraße 1 in the center of the spa district available on a leasehold basis. Through the non-profit Reinhard & Sonja Ernst Foundation, which operates in the real estate sector and runs social and cultural projects, Reinhard Ernst invested 70 million euros in the new building and guarantees the permanent operation of the museum.

With his architecture, Fumihiko Maki had built a bridge from Japanese modernism, which is alien to narrative, figurative elements — disciplined instead of playful, sensitive instead of cheeky — to the rationalism and utilitarianism of the US, where he taught and worked for a long time. His museum in Wiesbaden is an expression of this sensitive, partly artificial modernism, which, devoid of all postmodern formalism, lives from the design of light, from transparency, from the delicate detailing of Miesian perfection, and from the effect of carefully selected materials. As the exhibition Fumihiko Maki and Maki & Associates: Towards Humane Architecture, the first special exhibition in the museum's temporary galleries, shows, the extravagant large-scale form of signature buildings is not Maki's thing. The cubature of the mre fits the building into the line of the boulevard and reflects the height of its neighbors. The wide front is visually divided into two high rectangular "houses."

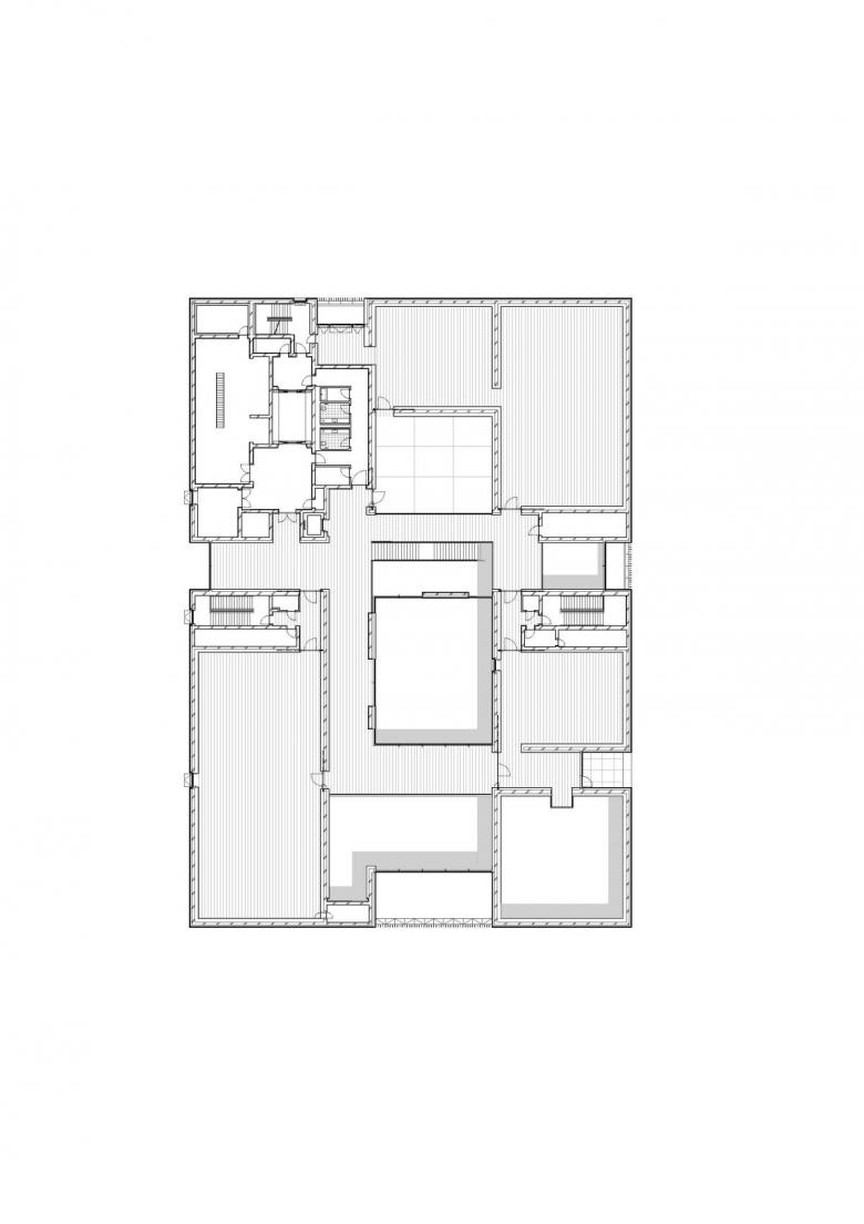
Ground floor plan (Drawing: Maki and Associates)
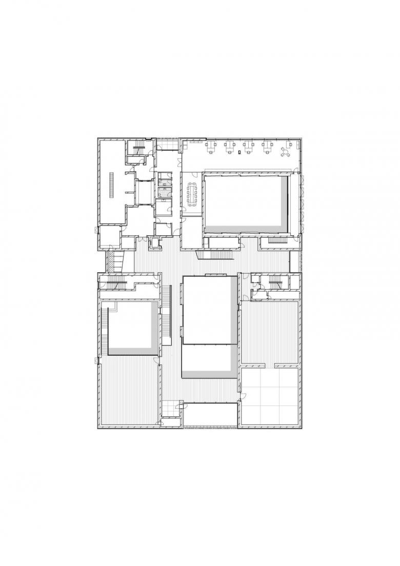
First floor plan (Drawing: Maki and Associates)
Second floor plan (Drawing: Maki and Associates)

"Sugar cubes" is what the residents of Wiesbaden call the museum clad in flawlessly graded, velvety, shimmering Bethel White granite from New Hampshire. Precisely cut, with a bush-hammered surface and barely noticeable joints — the silicone joints were powdered with stone dust — the appearance of thin stone wallpaper is avoided. The edges show no butt joints, as the corner pieces are cut from solid stone.

"This building belongs to art and art belongs to everyone" — this quote from Sonja and Reinhard Ernst on the wall in the foyer says it all. The focus is on art education. The first floor of the building is fully glazed and faces Wilhelmstraße, arousing the curiosity of passersby. Above all, the main entrance between the café with outdoor seating and the museum store, set back from the street and somewhat sheltered, invite passersby into the building in a low-threshold, welcoming gesture.

The foyer with the adjoining glass atrium offers a panoramic view that provides visitors with an overview and orientation to the upper floors. To the right, the store and reception are followed by the experimental color laboratory for young people and the entrance to the Maki Forum. With its stepped backlit side walls and exquisite pendant lights, the event hall is a feast for the eyes and offers space for 250 visitors.

Building section (Drawing: Maki and Associates)
Building section (Drawing: Maki and Associates)

Maki's precisely cut architecture is clear, transparent, light, and bright. This lucid architecture benefits decisively from the exquisite quality of the materials, the attention to detail, and the exceptional perfection of the construction work. This is thanks to the client, Reinhard Ernst, whose life's work was precision construction and who critically monitored the building work almost daily and made every decision himself.

The tour leads through rooms of different shapes and sizes. In between there are bright zones, relaxing views of the city and the greenery, and again and again around the atrium, charming views of sky. light, and clouds. The enjoyment of the art alternates with the experience of the architecture.

In a corner of the upper floor, a two-part monumental sculpture by Tony Cragg, for which the location had been specially planned, takes visitors by surprise. A crane had hoisted the object over the roof. Well secured and wrapped, it survived the rest of the construction period. The site for a large sculpture by Eduard Chillida weighing several tons and wreathed in the inner courtyard also had to have a special foundation for the heavy load.

The color tones are muted, the rooms white, the floors wonderfully dark wood or terrazzo surfaces. Art brings colors into play, and not in short supply. Visitors experience new fireworks in every room. Anyone expecting a museum of entirely abstract art to be boring will be very surprised.

Foyer, view of the atrium; on the right is Ein Glas Wasser, bitte (A Glass of Water, Please), 2023, by Katharina Grosse. (Image: © Reinhard & Sonja Ernst Foundation, Museum Reinhard Ernst. Photo: Helbig Marburger, 2024)
Image: © Reinhard & Sonja Ernst Foundation, Museum Reinhard Ernst. Photo: Helbig Marburger, 2024

The founder has no academic interest in documenting individual trends, artists, and their careers, such as with entire groups of works in thematic exhibitions in an art-historically correct manner. Ernst only collects what he likes, works with a "wow effect." And so the tour becomes a fulfilling sensory experience, leading from highlight to highlight, without any dry spells. There are certainly deliberate thematic groupings of corresponding works: "Color to the power of three" examines color spaces with Helen Frankenthaler, Sam Francis or Morris Luis. "Against the grain" pictures by Katharina Grosse, Inoue Yūichi, and Robert Motherwell are characterized by powerful brushstrokes. "From Zero to Action" is the title of one room, "The Liberation of Color" another. "The Beat Goes On" shows works by Esteban Vicente, Ernst Wilhelm Nay, Thomas Scheibitz, and Tal R that date back to the 2000s. A daylight room is reserved for Frank Stella for three monumental metal reliefs from his Moby Dick series (1989).

Image: © Reinhard & Sonja Ernst Foundation, Museum Reinhard Ernst. Photo: Helbig Marburger, 2024
Image: © Reinhard & Sonja Ernst Foundation, Museum Reinhard Ernst. Photo: Helbig Marburger, 2024

The museum is a prime example of perfection in every respect. It has the appropriate size for a museum visit, a high quality of stay, and generously dimensioned ancillary and functional rooms for operation. Although Ernst had the cost management firmly under control, the Maki office and the executive architects, schneider+schumacher, did not have to compromise on quality anywhere. There were no public protests, no building scandals, no criticism of the use and architecture, no disgruntled press. The mre is held in higher esteem than any other current major construction project, partly because Sonja and Reinhard Ernst are committed to promoting art. The architecture is therefore designed to welcome visitors and passersby with open arms. An extensive didactic program for school classes and young people (who have free admission up to the age of 18) is designed to teach young people about art. The museum will be a focal point for art lovers from near and far, but already it is an architectural and urban asset in the center of the spa town.


This article was first published as “Feuerwerk im Zuckerwürfel“ on German-Architects. English translation edited by John Hill.

Other articles in this category