A Concrete Grid

John Hill, Thomas Geuder | 27. November 2017
Photo © Simon Menges c/o Brigitta Horvat

Project: Extension to Graubünden Museum of Fine Arts, 2016
Location: Chur, Switzerland
Client: Hochbauamt Kanton Graubünden 
ArchitectBarozzi / Veiga, Barcelona
Design Principals: Fabrizio Barozzi, Alberto Veiga
Project Team: Katrin Baumgarten (project leader), Paola Calcavecchia, Shin Hye Kwang, Maria Eleonora Maccari, Anna Mallen, Verena Recla, Laura Rodriguez, Ivanna Sanjuan, Arnau Sastre, Cecilia Vielba 
Executive Architect: Schwander & Sutter Architekten, Chur
Structural Engineer: Ingenieurbüro Flütsch, Chur
Façade Consultant: x-made SLP, Barcelona/Basel
Manufacturer: Sulser AG, Trübbach (Wartau), CH 
Product: Concrete facade elements with easy-to-clean surface protection
Building Area: 4,000 m² 

The Villa Planta at left and the new building at right (Photo © Simon Menges c/o Brigitta Horvat)

In the years 1874 to 1876, architect Johannes Ludwig built the Villa Planta on the edge of the old town of Chur, Switzerland. The private residence for Jacques Ambrosius von Planta was designed in the then popular Neoclassical style with a Pallidian portico and golden dome in Byzantine style. Jacques Ambrosius von Planta was a cotton merchant who built the house after returning from Egyptian Alexandria, a trip that influenced the house's mix of styles and incorporation of such elements as sphinxes flanking the steps. The canton of Graubünden has been using the building for cultural purposes since 1919. When it became clear at the turn of the millennium that the space for the ever-growing collection and temporary exhibitions would no longer be sufficient, the desire for building expansion became more and more urgent. Finally an international architectural competition was announced in 2011, which was won by Barcelona's Barozzi / Veiga.

The extension appears as a solitary object detached from the Villa Planta. (Photo © Simon Menges c/o Brigitta Horvat)

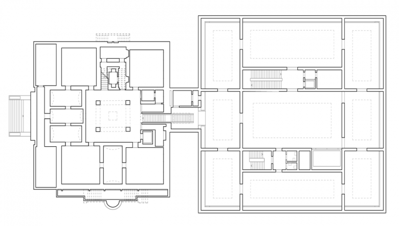
Barozzi / Veiga's idea was to replace an adjacent building added in 1927 by architect Walther Susler with a new building that is distinctly different yet enters into a dialogue with the Villa Planta. Due to the considerable limitations of the building plot, the architects sought to minimize the external volume of the building: "As contradictory as it may sound, we have always considered it a priority to create a new public space that, notwithstanding its small size, can be integrated into the museum as well as the green areas of the villa and the surrounding buildings." The trick: Barozzi / Veiga decided to reverse the logical, functional order and move most of the exhibition spaces below-grade, putting the entrance and foyer in the upper stories. Therefore, while the new building is connected to the villa underground, it appears as a solitary object aboveground.

The large door, with matching panels, for deliveries (Photo © Simon Menges c/o Brigitta Horvat)

In order to create a dialogue between old and new, the architects sought a balance in relation to the Palladian aspects of the villa and its ornamentation: just like the villa, the new building is symmetrical and uses the geometry to give the design cohesion. In this manner the villa and extension can be understood as one spatial unit. Essential for the perception of the new building, however, is the dialogue through ornamentation: the Villa Planta has a clearly recognizable Eastern influence in its details, an architectural idea to be expressed through the facade of the new building. There the motif consists of a repetitive, abstract bas-relief that lays like a skin over the entire structure and recalls the villa's "exotic" motifs.

Facade during construction (Photo: Bündner Kunstmuseum Chur / Stephan Schenk)

This outer skin was designed as a self-supporting facade with rear ventilation. The sharp-edged concrete elements (Jurassic limestone with white cement, by Sulser AG) are produced with a special matrix and provided with an easy-to-clean surface protection. The building itself is built on two vertical, parallel cores, between which the foyer is found on the ground floor: a wide, open space that is clearly and directly oriented toward the Villa Planta. Incidentally, the new building also accommodates deliveries, with a secure opening off the plaza and a large elevator that descends to the basement. Considering this aspect, the extension serves the Villa Planta functionally so the latter can be maintained properly in its historic state.

Facade Detail (Drawing: Barozzi / Veiga)
Foyer and view of Villa Planta (Photo © Simon Menges c/o Brigitta Horvat)
Site Plan (Drawing: Barozzi / Veiga)
Basement Floor Plan (Drawing: Barozzi / Veiga)
Elevation and Building Section (Drawing: Barozzi / Veiga)

A version of this article originally appeared as "Eigenständiger Partner" on German-Architects.

Other articles in this category