A Tribeca 'Bluestone'

John Hill | 30. October 2017
Photo: Field Condition
Photo: Bruce Damonte

DDG, one of the rare firms that handles development and design, burst on to the New York scene with 41 Bond Street, a bluestone building that holds its own with 40 Bond Street, Herzog & de Meuron's glass version of a cast iron building erected across the street a few years earlier. Since 41 Bond's completion in 2011, DDG has executed a number of residential mid-rises in Manhattan whose contemporary facades exploit the potential of their materials. In addition to bluestone, these materials include hand-made bricks from Petersen Tegl at 345 Meatpacking and cast aluminum at the Gaudí-esque XOCO 325 in SoHo. Now the firm is entering the high-rise foray with a 50-story tower under construction on the Upper East Side, where Petersen's Kolumba bricks will again be the primary material.

Photo: Bruce Damonte

Though not as ubiquitous as the brownstone that lends many townhouses in Brooklyn and parts of Manhattan that name, bluestone has a strong presence in New York City, primarily in its use for sidewalks in now historic districts. DDG opted for bluestone for the facade of 12 Warren as "a throwback to and celebration of craftsmanship and masonry in Tribeca," the neighborhood that sits in the Triange Below Canal. Yet unlike the flat, carefully controlled stones that cover 41 Bond, the blocks at 12 Warren, are a mix of flat and rough, large and small, flush and projected. Inspired by the material's "raw beauty," the composition of the bluestone – as carefully controlled as 41 Bond but with a different result – gives the impression of a carved mass, as if the facade was lifted directly from the quarry. An early concept rendering (below) actually illustrates the building as melding with the walls of the quarry in Upstate New York that supplied the bluestone.

Left: concept rendering; top-right: Tompkins Quarry; bottom-right: laying out the facade for tagging, sequencing and delivery (Image: DDG)

Another image reveals how DDG laid out the facade on the quarry grounds in order to tag and sequence the sculpted blocks for delivery to the job site, where they were then lifted in to place. With its south-facing exposure, the shadow patterns on the striated bluestone blocks are an important part of the quasi-natural, push-pull effect; the shadows accentuate the subtle changes in depth and surface across the facade.

Photo: Bruce Damonte

Just as the bluestone turns the corners to cover the side elevations and meet the recessed windows, the material continues into the lobby, where it gradually "erodes" into the materials prevalent in the residential units upstairs. One of these, the concrete overhead, was formed in a manner that echoes the rough striations of the bluestone facade. Therefore the residents living inside 12 Warren are reminded of the facade that makes their "bluestone" a neighborhood standout.

Lobby (Photo: Robert Granoff)
Model unit (Photo: Robert Granoff)
Photo: Bruce Damonte
Left to right: facade detail drawing, installing the bluestone facade, finished facade (Image: DDG)
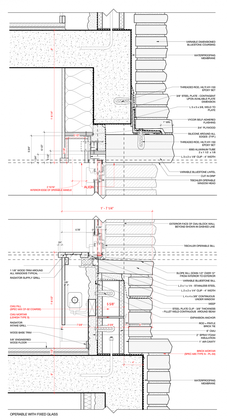
Facade detail at window (Drawing: DDG)

Other articles in this category