Foster's Brilliant Box
In June London architect Norman Foster opened an eponymous foundation in Madrid focused on interdisciplinary thinking and research. In addition to the historic main building it occupies, the Norman Foster Foundation consists of a pavilion with a transparent façade and some glossy details.
Project: Pavilion of the Norman Foster Foundation, Madrid, 2017
Architect: Design studio of the Norman Foster Foundation (Norman Foster, David Delgado, Raúl Gómez, Jorge López)
Local Collaborating Architect: BAUproyectos SLP (Miguel Kreisler, Ángel Jaramillo)
Structural Engineer: Euteca Proyectos y Estructuras SLP (Juan de la Torre)
MEP Engineer: R. Urculo Ingenieros Consultores SA (Rafael Úrculo)
Builder: Empty SL and BAUobras SL
Facade Consultant: Eckersley O'Callaghan Ltd (James O'Callaghan)
Envelope Consultant: ENAR Envolventes Arquitectónicas SL
Facade Engineering & Manufacture: Frener & Reifer GmbH
Glass Manufacturer: Sedak GmbH & Co. KG
Stainless Steel Ceiling: Kikukawa Kogyo Co Ltd
Glass Vitrines: Crisel Glass SL, Nerpaser SL
Courtyard Sculpture: Cristina Iglesias
A heritage-listed palace designed by Joaquín Saldaña in 1912 for the Duke of Plasencia has been the home of the Norman Foster Foundation since the 1st day of June, which was also Lord Norman Foster's 82nd birthday. The self-defined goal of the Foundation is to promote "interdisciplinary thinking and research to help new generations of architects, designers and urbanists to anticipate the future." Foster starts his personal reflection on the Foundation's website, where he muses about life as an architect: "It has been said that if you wish to see far ahead in time then you must first look back to see lessons from the past."
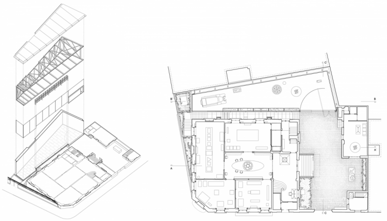
Although its goal is to operate worldwide, this process of learning from the past is anchored in the Foundation's new home in Madrid, where Foster's library and archive is located. In addition to the historic building, Foster has inserted a pavilion in the building's courtyard, what will serve as a flexible space for exhibitions and events. Always one to skillfully juxtapose the modern and the historical or classical, he reacted to the context here with a clear architecture that "seeks the ephemeral qualities of light, lightness and reflections."
The basic idea for the narrow, tapered and long space between the old palace and its neighbor is quite simple: a wing-shaped roof – its reflective overhead surface optically doubling the space upward – rests on hidden steel supports in a solid party wall. Yet the pavilion's two glass façades – one facing the street and one the palace – take on a structural role as well. The nine large windows (up to 7 x 3 meters) made from five layers of laminated glass help support the reflective roof.
Foster and his team developed the design with Frener & Reifer, the building envelope construction company based in South Tyrol, Italy, that also worked with Foster + Partners on the Steve Jobs Theater in California. Foster traveled to Bressanone in October 2016 – only seven months before the Foundation was set to open – to start working on the technical details. In turn all of the façade and door elements were prefabricated in Italy and transported just-in-time to Madrid. On site, the pieces had to be lifted over the three-story base of the Foundation's historic home and squeezed into a narrow 2.5-meter slot between the palace and pavilion.
One challenge for the engineers was, among other things, access to the pavilion, which was designed to take place through a large pivoting door. At 5.60 x 2.80 meters and weighing around three tons, the challenge was how to insert it elegantly into the all-glass design. The door was accommodated by means of filigree profiles made of glass bead-blasted, mirror-polished stainless steel with a visible edge of only 8 mm and a concealed load-bearing steel structure. Directly next to it is a more traditionally sized glass door that looks petite next to its big brother. Thus the architects and engineers created a 160 m² large transparent glass façade without any visible supports, giving the room an open, almost limitless character. This effect is supported by the many mirror-polished steel elements.
The outdoor space, the Foundation's courtyard, is covered by an umbrella of sorts, designed by Spanish artist Cristina Iglesias. Her work, The Ionosphere (A Place of Silent Storms) is made up of several light carbon fiber panels with patterns generated from Arthur C. Clarke’s The Fountains of Paradise. And a special feature awaits architects inside the pavilion: Le Corbusier's 1927 Avions Voisin C7 – newly restored and yet another reason to make an appointment to visit the Norman Foster Foundation in Madrid.
A version of this article originally appeared as "Glänzend eingepasst" on German-Architects.











