Glass Facades of Abstracted Stone
A new building for the Kate Tiedemann College of Business at the University of South Florida-St. Petersburg features glass facades with circular patterns meant to recall the coral stones that inhabit much of the area's coastline.
Project: Lynn Pippenger Hall, 2017
Client: University of South Florida-St. Petersburg
Architect: ikon.5 architects, Princeton, NJ & Harvard Jolly Architects, St. Petersburg, FL (Joint Venture)
Structural Engineer: Weber and Tinnen, PA, St. Petersburg
MEP/FP Engineer: VoltAir Consulting Engineers, Tampa, FL
Landscape Architect: Phil Graham Landscape Architecture, St. Petersburg
Contractor: Creative Contractors, Inc., Clearwater, FL
USGBC LEED Certification: LEED Gold Certified
Glass: PPG
Silk Screen Pattern: Viracon
Site Area: 2.33 acres
Building Area: 68,800 sf
Photography: Brad Feinknopf
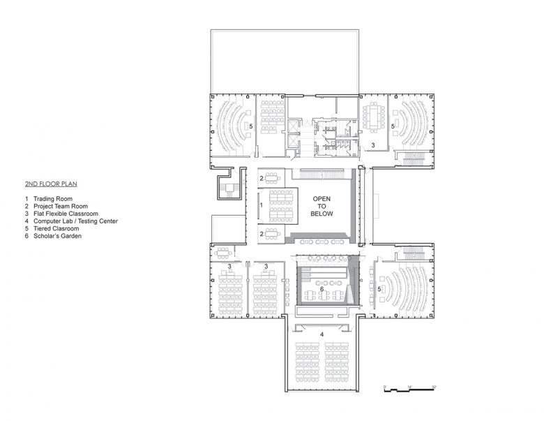
Like many university buildings today, Lynn Pippenger Hall, home to the University of South Florida-St. Petersburg’s Kate Tiedemann College of Business, has been designed to foster collaborative learning. At the heart of the 68,000-square-foot building is a three-story commons and next to it is a garden, both of which support the casual learning that takes place outside of the classrooms and the random, productive collisions that happen when students and faculty move about the building. The location of the commons at the center of the plan means it is protected from the elements. Likewise, the glass facade that wraps most of the building protects the occupants from the hot Florida sun through a distinctive pattern based on nature.
USF-St. Petersburg is located on Bayboro Harbor, part of Tampa Bay, the body of water that sits between Tampa on the mainland and St. Petersburg on the southern end of Pinellas Peninsula. The project's location inspired the architects – a joint venture between Princeton, New Jersey's ikon.5 architects and St. Petersburg's Harvard Jolly Architects – in the design of the patterned curtain wall. Lining the shores of Tampa Bay is coquina, an indigenous coral stone made from fragments of shells, mollusks, and other invertebrates. The stone's distinctive appearance, especially from afar, arises from the small and large openings that make it very porous. The architects approached the plan of the building in a similar manner, making it porous through the location of the commons and garden; but they carried the idea through to the glass facades as well.
Inspired by the coquina, the architects abstracted the stone's naturally occuring holes through patterns made entirely of circles. Four patterns (A, B, C, D per drawings below) were created, each with tangential circles of various sizes and thicknesses. The patterns, which run continuous from one panel to the next, alternate in such a way that any intersection of four panels always yields exactly one of each pattern. But the team needed to accomplish more than just a striking graphic. And they did, considering that the insulated glazing units cut down on heat gain by reflecting 74% of solar gain and providing 26% transparency.
The most eye-catching aspect of the coral-inspired glass facades is how the overlapping circles look three-dimensional. This effect required a couple techniques in the treatment of the triple-glazed glass, which is made up of an exterior pane, an air space, and two laminated panes toward the interior. First, the inside surface of the exterior pane (PPG Starphire) received the custom frit patterns – two passes with two tones for the overlapping circles. Second, the outer surface of the inner layer of laminated glass (PPG Solarcool Solarbronze) was given a reflective coating. This last piece is integral to the 3D effect and to cutting down on heat gain: the reflective one-way mirror glass allows views out while it reflects the patterned ceramic coating of the first pane outward. The apparent depth of the graphics belies the fact they were made from two-dimensional silk screened images. Even if it doesn't spark the business students to think about coral stone, the glass is sure to be a memorable part of their classes at Lynn Pippenger Hall.
Related articles
-
-
The Three-Body Problem: Trapped in a Wave Sandwich
Eduard Kögel, Scenic Architecture Office | 13.04.2026 -
-










