The Advantages of 'Ki'
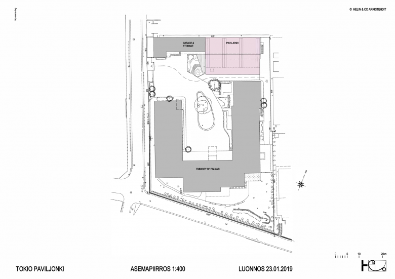
A new pavilion, made of laminated veneer lumber (LVL), acts as an architectural ambassador of Finland in Japan. The new Metsä Pavilion, designed by Helin & Co Architects from Helsinki, stands on the grounds of the Finnish Embassy in Tokyo's Roppongi district.
Client: Metsä Group
Location: Finnish Embassy, Tokyo, Japan
Design Architect: Helin & Co Architects
Local Architect: Guest House Ltd
Interior Designer: Ulla Koskinen
Construction Engineer: A-Insinöörit
Manufacturer: Metsä Group
Product: Kerto LVL® elements insulated with flax wool
Fabrication: Timberpoint Oy
Building Area: 520 m2 (214 m2 interior)
Before the Kanto earthquake and World War II, Tokyo — and any other city in Japan — was made almost entirely of wood and paper. But starting with the postwar rebuilding in the 1950s, the use of ki (wood) as a load-bearing material was made illegal — a great loss, architecturally speaking. Today, Japan is slow to rediscover the benefits and beauties of wooden architecture, but buildings such as the Mokuzai Kaikan (Nikken Sekkei, 2009) demonstrate the advantages of wood in architecture through clever design, and that the strict Japanese regulations should soon ease up.
Finland, a nation that, unlike Japan, has long preferred stone and concrete over softer, renewable materials for structural purposes, has gained a leading edge in the use of prefab wood in recent years. The new Mëtsa Pavilion, designed by Helin & Co Architects, showcases the importance of wood and the forest in Nordic culture and the technical know-how and art of Finnish woodwork. Designed for the delayed 2020 Olympics, it currently provides space for business and cultural events and will stay in Tokyo until the end of 2021.
The pavilion’s design is stylish and high quality though also approachable and authentic. The goal was two-fold: to promote prefabrication and to promote the general use of wood in buildings. Tokyo is earthquake-prone and dense, plots are small and streets are narrow, so using pre-fab parts makes great sense.
The pavilion was developed with Helsinki’s Metsä Group, built in Finland and assembled in Japan. Designed to be easily movable and reusable, its industrially manufactured wooden elements fit into just 17 shipping containers. Light and accurate, it was easy to assemble on site. The structure is made of Kerto LVL elements insulated with flax wool; it can be demolished, sent to another location and rebuilt there. Inside, the surface of the wood retains its light color thanks to the white wax finish.
All elements are freely available on the “Open Source Wood” platform. “With it we enable planers with a variety of options,” explains Jussi Björman of Metsä Wood. The elements were fabricated by the Finnish company Timberpoint. The production of all columns, beams and elements took only seven weeks at their factory and the assembly only ten days. Raw materials come from sustainably managed Finnish forests, where every part of the tree is used and almost nothing goes to waste. Even by-products like sawdust and bark were used as bioenergy.
The goal of the Ministry of the Environment in Helsinki is that in five years one in two public buildings should be made of wood, spurring the use of structural wood in Finnish cities very soon. That should be good news — not only for the 100,000 Finnish forest owners, who are the members of the Finnish forest industry group Metsä, but also for contemporary architecture. Because not liking the look, touch, and even smell of wood is as tough as not seeing its ecological benefits.
Related articles
-
Marunouchi Architecture Tour
Mitsubishi Jisho Design, Japan-Architects Curators | 20.02.2026 -
-
-









