Bourgeois / Lechasseur Architects
Altaïr House
This house, whose name refers to the brightest star in the Aquila constellation, is located in Cap-à-l'Aigle, in the region of Charlevoix. Altaïr means "The Flying Eagle."
What makes the house stand out is its "V" shape and long facades that are suspended over nature. While discrete from the street and closed to the north, it unfolds toward the river, as though to take flight.
Regarding the form, two longitudinal prisms are laid up one on top of the other. A voluntary misalignment allows contemplation of the scenery. The long glass facades provide different perspectives and framings of the river, the forest, and the city of Malbaie below.
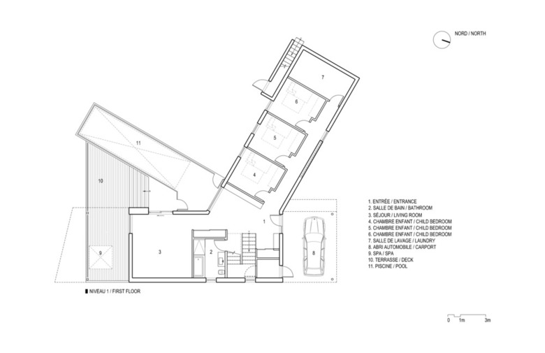
Close up, the house remains mysterious, as it is camouflaged by the trees. The second floor massing casts over the entrance for protection. The hall faces a large south-facing window with a view onto the cement pool, which seems to extend out to the river. The first floor has a guest wing, as well as a living room. The expended steel staircase is inviting and bright, and leads to the living areas.
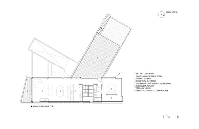
The second floor is cantilevered and protrudes toward the river. The living areas succeed one another, and the completely open space provides a breathtaking view of the horizon. A vast terrace was built on the roof of the lower floor. The master suite is also located on this floor, slightly set back in the woods.
In terms of material, both storeys are covered with a grey wooden facing. The facades that are hidden or protected by the roof over-hangs are covered with Western cedar. This warm wood extends indoors to the ceiling, emphasising the continuation effect from the inside out.
This house promotes peacefulness and contemplation of the view. There is now a new shining star in the scenery of Charlevoix.
PROJECT CREDITS
Architect
Bourgeois / Lechasseur architects
General Contractor
Construction des Grands-Jardins
Photos
Adrien Williams
Year of construction
2016
Location
Cap-à-l’Aigle
Related articles
-
-
-
-
-
Allied Music Centre/Massey Hall Renovation and Expansion
KPMB Architects | 01.12.2025










