Cabin A

Bourgeois / Lechasseur architectes | 26. February 2020
Photo: Maxime Brouillet (All image courtesy of v2com)
Project: Cabin A, 2019
Location: Petite-Rivière-Saint-François, Charlevoix, Québec
Client: Cabines St-Laurent
Architect: Bourgeois / Lechasseur architectes
  • Design Team: Olivier Bourgeois, Régis Lechasseur, Alexandre Côte, Valérie Gauthier, Isabelle Auclair, Maxime Rousseau
Graphic Artist: Criterium
General Contractor: Construction Urbanext
Photo: Maxime Brouillet

A newcomer on the Charlevoix scene, Cabin A quietly opened its doors in December 2019 as it welcomed its first guests. Located 20 minutes from Le Massif ski resort, this unusual cabin stands on a steep site overlooking the nearby St Lawrence River.

Photo: Maxime Brouillet

Looking for a source of inspiration, the team composed of architects and graphic artists turned to the International Code of Signals (ICS), long used in nautical communications. While the Alfa signal determined the building’s overall geometry, subtle references to naval architecture were introduced throughout. The cabin’s triangulated roof is a reminder of sails facing the wind whereas a large wood terrace evokes the upper deck of a ship with stunning views of the river. The use of wood paneling on the walls and ceiling of the shared living area further emphasize the analogy to naval architecture.

Photo: Maxime Brouillet

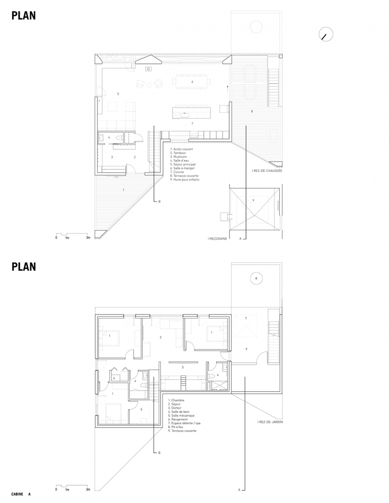
The main entrance is located under one the roof’s sloping wings, the left leg of the letter “A”. The shared living space is a long viewing gallery providing 180-degree views of the St. Lawrence River. Meant to accommodate groups of up to twelve people, complete kitchen facilities are provided as well as a sitting area and a dining space, which extends outside, weather permitting.

Photo: Maxime Brouillet

A staircase off the entrance door leads to the partially buried lower level. Three bedrooms and an open dorm for children provide ample sleeping accommodation. A central playroom gives access to a protected spa area, located directly under the ground floor’s deck.

Photo: Maxime Brouillet

The double-height living/dining/viewing room is clad with Russian plywood panels, also used for the built-in furniture. The light-color birch panels, extended to the outside, contrast sharply with the dark hues of the metal roof and the exterior walls’ cladding.

Photo: Maxime Brouillet

Cabin A is the second tourist-oriented project designed by Bourgeois / Lechasseur for the region. Inaugurated in 2018, Dômes Charlevoix was their first attempt at redefining tourist accommodation. It sparked widespread interest on their work and on their ability to address traditional commissions in an innovative way.

Photo: Maxime Brouillet
Photo: Maxime Brouillet
Photo: Maxime Brouillet
Photo: Maxime Brouillet
Photo: Maxime Brouillet
Drawing: Bourgeois / Lechasseur architectes
Drawing: Bourgeois / Lechasseur architectes

Other articles in this category