Smith Vigeant Architects
Discovery Centre for the Mont-Tremblant National Park
Located in the Mont-Tremblant National Park, the Discovery Centre offers a stunning view of Lake Monroe and its surrounding hills and mountains.
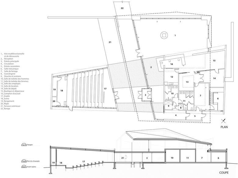
The building consists of three distinct sections: an amphitheatre, a space for service facilities, and a discovery zone. This building is formed by a continuous band of rustic wood that unfolds into walls, a roof and a floor sheltered by a large canopy.
Given its pristine location in the heart of nature, the use of wood as the primary material facilitated the harmonious insertion of the building into the unspoiled setting. To achieve this, a wide variety of wood species were used on both the exterior and interior, reinterpreting the site’s richness in textures and colours, while giving the building durability and résistance.
The Discovery Centre was designed around the site’s natural and climatic features and in respect to bioclimatic principles. The development of the project was founded on the assiduous integration of the building into the site as well as its sensitivity to the surrounding area.
Related articles
-
-
-
-
-
Allied Music Centre/Massey Hall Renovation and Expansion
KPMB Architects | 01.12.2025









