Chybik+Kristof ARCHITECTS & URBAN DESIGNERS

Lahofer Winery

Chybik+Kristof ARCHITECTS & URBAN DESIGNERS | 26. January 2016

PROJECT DETAILS

Client

Lahofer Winery

Location
Dobsice, Czech Republic

Year
2015

Status
Architectural study

Architect
Chybik+Kristof ARCHITECTS & URBAN DESIGNERS

Team
Ondrej Chybik, Michal Kristof, Hanin Al-Gibury, Karolina Holankova, Martin Holy, Vojtech Kouril, Ondrej Mundl, Matej Strba, Zuzana Zathurecka
 

All images courtesy of Chybik+Kristof ARCHITECTS & URBAN DESIGNERS

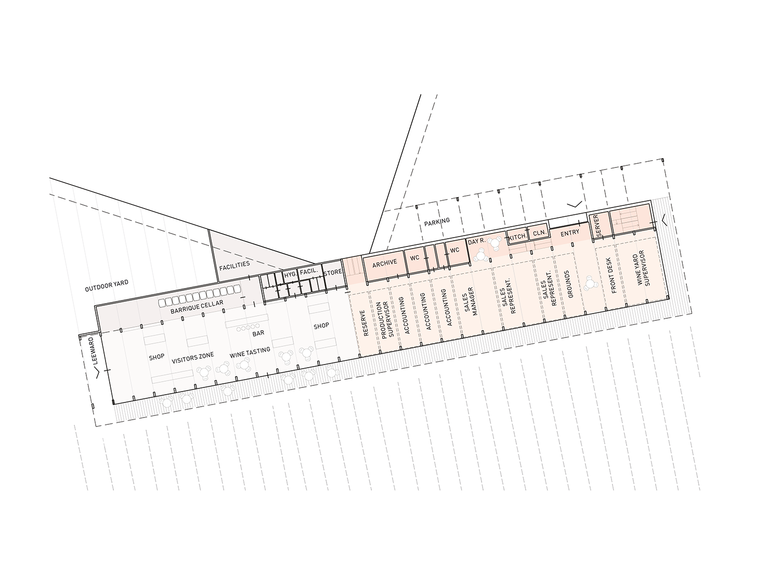
The structural scheme is based on the width of the row of grapevines and runs through the whole house. In the representative wine tasting room, the vineyard and an archetypal arched room, referring to the wine cellars in that region, intersect orthogonally. Wine making is concentrated in two horizontal buildings; the winery thus gives the impression of being lightweight in relation to the countryside.

PROJECT DETAILS

Client

Lahofer Winery

Location
Dobsice, Czech Republic

Year
2015

Status
Architectural study

Architect
Chybik+Kristof ARCHITECTS & URBAN DESIGNERS

Team
Ondrej Chybik, Michal Kristof, Hanin Al-Gibury, Karolina Holankova, Martin Holy, Vojtech Kouril, Ondrej Mundl, Matej Strba, Zuzana Zathurecka
 

Related articles 

Other articles in this category