World Building of the Week

Automatic Mills Grain Silo Conversion

Prokš Přikryl architekti | 10. June 2024
Photo: Petr Polák (All images courtesy of Linka)

The Automatic Mills, a national cultural monument, is one of the first buildings designed by the architect Josef Gočár. Standing on the banks of the Chrudimka River in the centre of Pardubice, the monumental mill building was created in 1909 for the Winternitz brothers. In 1924, the complex was extended to include a grain silo, the conversion of which we designed. The Automatic Mills operated continuously for more than 100 years until 2013. Since 2016, the mill brownfield has been undergoing transformation into a cultural and social urban district, thanks to the initiative of the Automatic Mills Foundation.

Photo: Petr Polák

This site is composed of several buildings and institutions (the regional Gočár Gallery, the city's “Gampa” Gallery, the “Sphere” central workshops for schools, the Infocentre and the Silo), linked by a brick carpet and equally by the unique tension existing between them. Each of the architects has grasped their building in a different way. All the buildings reinforce each other and thus form a living part of the city. The exceptional architects Zdeněk Balík, Jan Šépka, Petr Všetečka and investor Lukáš Smetana have contributed to the whole.

Photo: Petr Polák

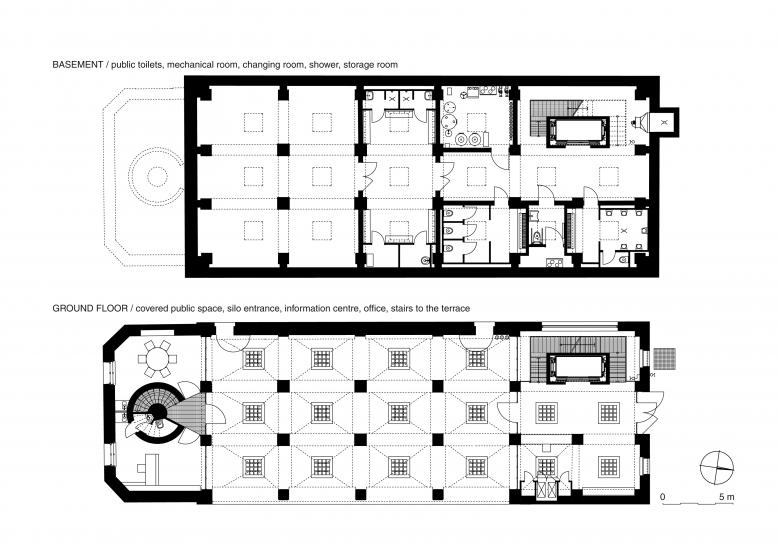
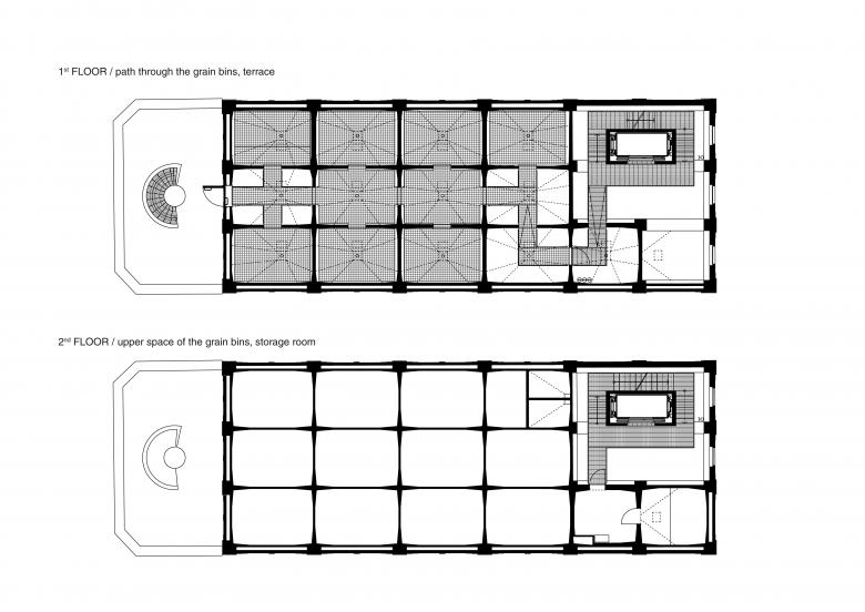
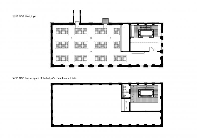
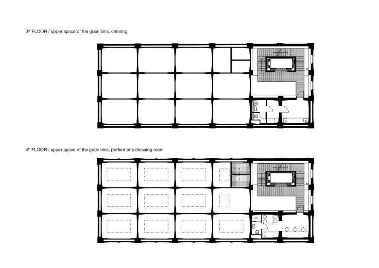
The main purpose of the Silo conversion is its social use, which one century after its construction has replaced the previous industrial function. The multi-purpose upper hall hosts theatres, lectures, concerts and social events. The roof terrace with bar offers a new view of the city. Exhibitions will be held in the newly accessible grain bins, and the silo ground floor now forms a covered public space. A basement with public toilets provides facilities for the entire new square. 

Photo: Petr Polák

A true building-machine, it originally contained three basic parts: the milling technology (Prokop and Sons), the skeleton framework (the work of the builder Pollert) and the outer shell (architect Josef Gočár). Thanks to Josef Gočár, who was to become unquestionably the greatest Czech architect of the 20th century, the mills were from the outset never perceived as purely an industrial building. Instead, they create the mystery of a machine hidden in a fortress. Even the grain silo, added to the mill in 1924, is itself not clearly graspable.

Photo: Petr Polák

Considerations about the main entrance led to the decision to uncover the secret: activating the ground floor on both sides and creating a freely accessible public space under the bins. The idea of opening the building to the square went hand in hand with the overall opening of the site to the city after more than a century. Opening the gates, opening the parterre. We also introduced a new openness to the brick plinth through reintroducing a large opening that had been mysteriously closed. The exposed grain bins give the indoor space its atmosphere. A connection is made at parterre level via the side between the mills and the silo, at the location of the original doors. On the other side, by contrast, the base is broken through by a significantly wide new opening.

Photo: Petr Polák

Today, as in the past, a single communication core connects the whole building. The main change is the hall inserted into the former machine room on the fifth floor, granting the space a privileged position above the entire area. Together with the hall, the roof of the building has been made wheelchair accessible. 

Photo: Petr Polák

The silo and its technology are characterized by verticality and a sense of vertical movement. The glass-concrete floor panels in the ground level and the hall create a path for light through all floors to the basement. Excavated between massive columns, this basement serves for facilities. Almost an underworld of their own, the underground spaces could have been the result of the columns being founded deeper than our explorations had anticipated. Another newly accessible space is the inside areas of the grain bins on the second-floor level: here, the very essence of the silo becomes visible.

Photo: Petr Polák

The interior modifications are restrained. Colors and brickworks are confined to the facades, the interior is muted, the range of materials is standard and adheres to the principle of additions not standing in contrast to the old. All original surfaces are retained, including the patinas, or various drill holes and scars left by the demolished partition walls.

Simply put, the aim is to develop the building in its rationality and monumentality.

Photo: Petr Polák
Photo: Petr Polák
Photo: Petr Polák
Project: Automatic Mills Grain Silo Conversion, 2023
Location: Pardubice, Czech Republic
Client: Automatic Mills Foundation (Lukáš Smetana, Mariana Smetanová)
Architect: Prokš Přikryl architekti, Prague
  • Project Principals: Martin Prokš, Marek Přikryl
Civil Engineer: Jan Kolář
Concrete Structures: MDS Projekt
Steel Structures: STA-CON
Fire Safety: Projekty PO
Ventilation: Mikroklima
Plumbing: MK Profi
Electrical: Miroslav Bouček
Acoustical, A/V: SONING
Lighting: Ladislav Tikovský (AST)
Measurement and Regulation: TECONT
Lift: TRAMONTÁŽ
Geothermal: GEROTOP
Heating: Jiří Vik
Graphical System: Richard Wilde (publikum.design)
Main Contractor: STAKO Hradec Králové
Site Area: 4,030 m2
Building Area: 1,848 m² (Gross), 1,131 m² (Usable)
History of Automatic Mills
History of Automatic Mills
Location Plan (Drawing: Prokš Přikryl architekti)
Site Plan (Drawing: Prokš Přikryl architekti)
Basement and Ground Floor Plans (Drawing: Prokš Přikryl architekti)
First and Second Floor Plans (Drawing: Prokš Přikryl architekti)
Third and Fourth Floor Plans (Drawing: Prokš Přikryl architekti)
Fifth and Sixth Floor Plans (Drawing: Prokš Přikryl architekti)
Seventh Floor Plan and Roof Plan (Drawing: Prokš Přikryl architekti)
Longitudinal Section (Drawing: Prokš Přikryl architekti)
Cross Sections (Drawing: Prokš Přikryl architekti)
Drawing: Prokš Přikryl architekti

Related articles 

Other articles in this category