World Building of the Week
Kloboucká lesní Headquarters
Since it was established in 1998, Kloboucká lesní has been focused on sustainable forestry, producing glulam beams and other wood products at their nursery and production facilities in South Morania. It is therefore fitting that their administrative headquarters expresses the company's ethos and main product. Mjölk architekti answered a few questions about their design of the Kloboucká lesní Headquarters.
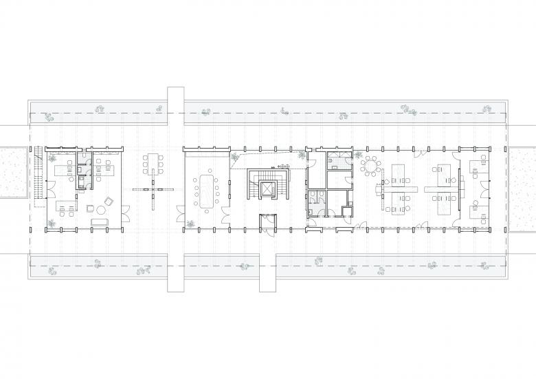
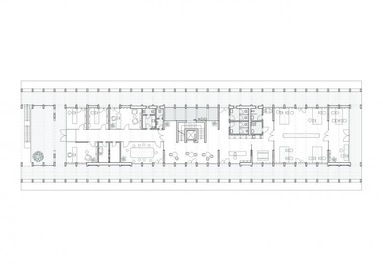
What were the circumstances of receiving this commission?This contract was unconventional. The timber company Kloboucká lesní wanted to create a new website that would introduce exclusive products in the region — long glued beams BSH — and at the same time represent the company's approach to forestry, which is sustainable without any clichés. The company was also considering new premises for administrative facilities. The photographers who were to supply the images for the website thought that the best way to showcase both would be for Kloboucká lesní to create a new company headquarters and connect the owners with us — architects. The owners liked our designs, and the result is a building that has won many industry awards and perfectly suits the users of the building.
The open approach of the investor and the speed with which the construction was completed were extraordinary. The height of the trusses is unusual, which was made possible by the glued BSH prisms of Kloboucká lesní. The wooden structure is made exclusively from material that is produced on site, on a production line less than 100 meters from the construction site. In addition, the building is energy self-sufficient, with solar panels supplying excess electricity to the sawmill and wood processing plant. Conversely, the building is heated by the heat generated by burning waste wood from felling and production.
The most basic inspiration was the simple shape of a coniferous tree. But the design had more starting points, of course; we were inspired by the place where the building was to be built, the client's industry, and his environmentally friendly approach to nature.
Significantly. In the urban design of the factory, an exposed location was chosen for the site. The northern facade of the building faces the village and incoming visitors. The mass of the building conceals the industrial buildings of the site. The background of the building in the second plan consists of the beautiful scenery of the Planavský Ridge.
The investor largely gave us a free hand in the design. The only criteria that influenced the design were the number of employees and their operational requirements for site capacity. To a certain extent, the office furniture itself is also influenced by the employees to suit them as much as possible and to be fully functional.
The cooperation with the designers and contractors was first class in this case. To everyone's surprise, there were no significant changes during the project. Therefore, it can be said that the final building hardly differs from the proposed one.
Our buildings do not have one predetermined denominator. What they have in common is that we always respond to the client's needs and reflect the place where they are to stand. In this case, timber construction was the only option. In another location, we would choose a different material or approach. What our projects also have in common is that we like to find the boundaries of what is possible when we design and we try to push those boundaries. This was also the case in the creation of the Kloboucká lesní headquarters.
Email interview conducted by John Hill.
Location: Brumov-Bylnice, Czech Republic
Client: Kloboucká lesní
Architect: Mjölk architekti, Liberec
Chief Engineer: Pavel Srba
Structural Engineer: Lostade CZ
Construction Supervisor: Petr Vlček
Concrete Contractor: Michal Drga
Wooden Construction Contractor: Pukýš DŘEVOSTAVBY
Electric Engineer: Elseremo
Mechanical Engineer: Ladislav Stružka
Heating & Plumbing: Mont SA
Steel Construction: KL TECHSTAGE
Interior Partitions and Claddings: Woodyglass
Lighting Solutions: Konvičný – Lampárna Lighting
Landscape Architect: Atelier Partero
Garden Contractor: GISarch studio
Flat Roof Solutions: Izolplast Zlín
Pavement Contractor: STRABAG
Wooden Terraces Contractor: Pavel Fojtík
Sheetmetal Products: Petr Zimáček
Graphic Design: Lenka Mičolová
Related articles
-
-
-
-
New Headquarters of the Faculty of Humanities, Charles University
Kuba & Pilař architekti | 18.01.2022

















