Atelier Kaiser Shen

Micro Courtyardhouse

Atelier Kaiser Shen | 16. April 2018
Photo: Nicolai Rapp

Project: Micro Courtyardhouse, 2018
Location: Sternkreuzung, Ludwigsburg
Client: City of Ludwigsburg / Ludwigsburg Museum
Project Leadership: Bernd Wenger (Fachbereich Tiefbau und Grünflächen) / Elisabeth Meier (Ludwigsburg Museum)
Architect: Atelier Kaiser Shen, Stuttgart
Project Team: Florian Kaiser, Guobin Shen, Hans-Christian Bäcker
Structural Engineer: Hildenbrand Ingenieure
Contractor: Rikker Holzbau GmbH​
Floor Area: 7.3 m2  (including courtyard: 35 m2)

Photo: Nicolai Rapp

The Micro Courtyardhouse is a new approach to dealing with "living in minimal space." Despite being in the midst of a busy crossroad, it provides high privacy by separating adeptly the living space from the outside world. The interior is secluded from the outside, with only a spiral entrance leading curiously inside.

Photo: Nicolai Rapp

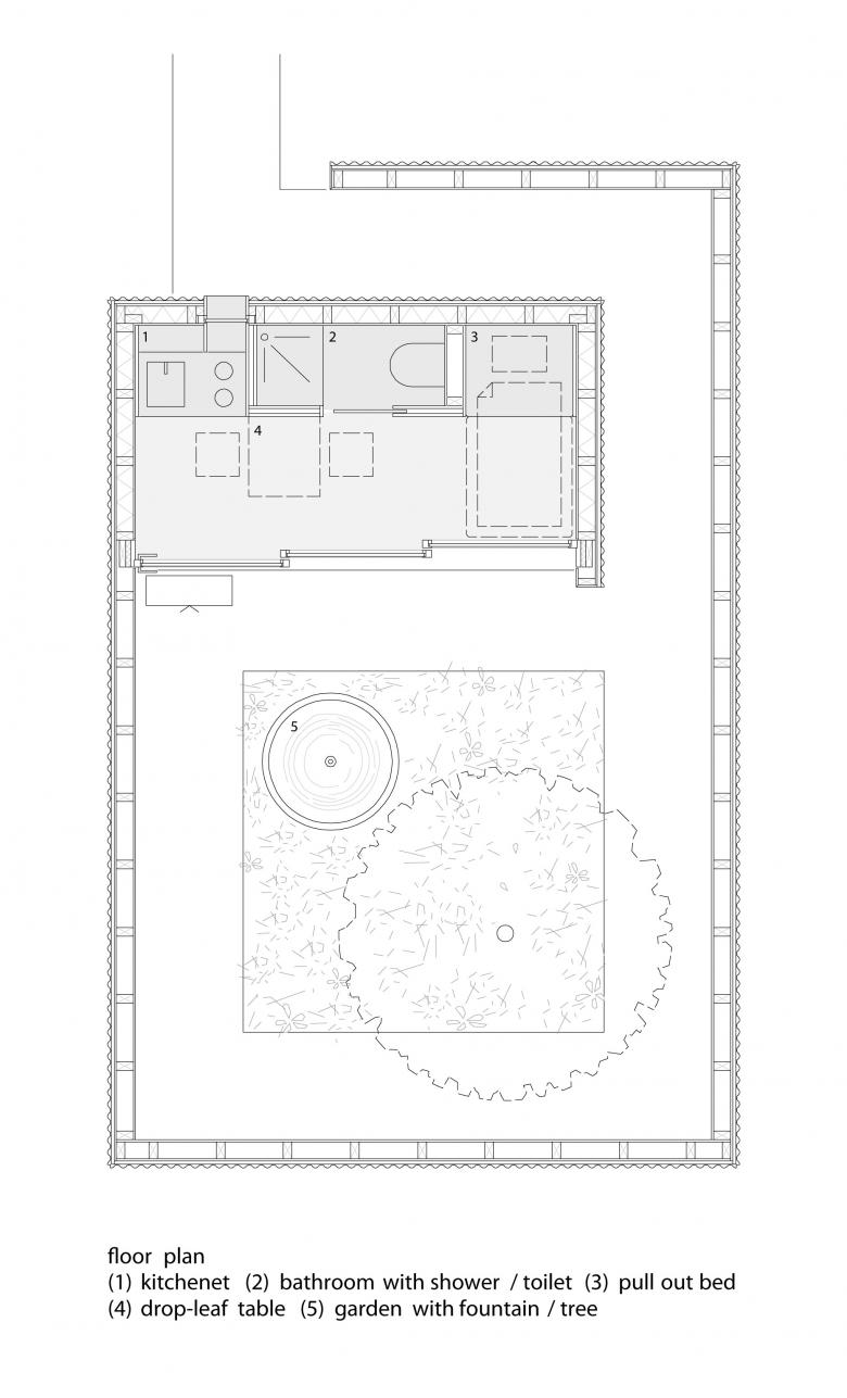
At merely 7.3 square meters, the Micro Courtyardhouse contains all of the required utilities. The bathroom, cupboards, and kitchen have a depth of 85 cm and are arranged along the main wall, which also features a foldable table and bed. A square window along this wall connects the living area to the outside world. Opposite to this side, a long glass door spanning the entire length of the house loosely separates the living space from the tranquil garden. In summer, the glass door can be slid open, effectively merging the house and the courtyard.

Photos: Nicolai Rapp

The exterior design is inspired by traditional Chinese courtyard houses. A single tree stands beside a fountain, creating an asymmetrical arrangement. The fountain not only serves aesthetic purposes, but also as an effective acoustic feature against noise. Spruce panels with timber frames lay on top of pillars 20 cm above the ground, generating a light ambiance. The cozy atmosphere of the inner wooden wall contrasts the dark corrugated iron sheets of the external facade.

Site Plan (Drawing: Atelier Kaiser Shen)

The juxtaposition between inside and outside, open and closed, noise and quiet, privacy and public, enriches the architecture. It thus becomes clear that the Micro Courtyardhouse is an ideal solution to utilizing minimal space, even the most unusual ones. Despite being situated in a tight and hectic space, one can still escape from the busy world and gaze into the open skies.

Floor Plan (Drawing: Atelier Kaiser Shen)
Section (Drawing: Atelier Kaiser Shen)

Other articles in this category