Studio archohm

Mood House – The Katyals Residence

Studio archohm | 2. February 2016
All photographs and drawings courtesy of Studio archohm

It is only fair then that the professional called the architect addresses this statement giving it, due importance, albeit while grappling with the other million odd issues that accompany the design of this very personalized space called a home.

But achieving the quality of spaciousness and enabling what can be termed as ‘mad sizes’ that are opulent, in a somewhat compact acreage is where the design is immensely successful.

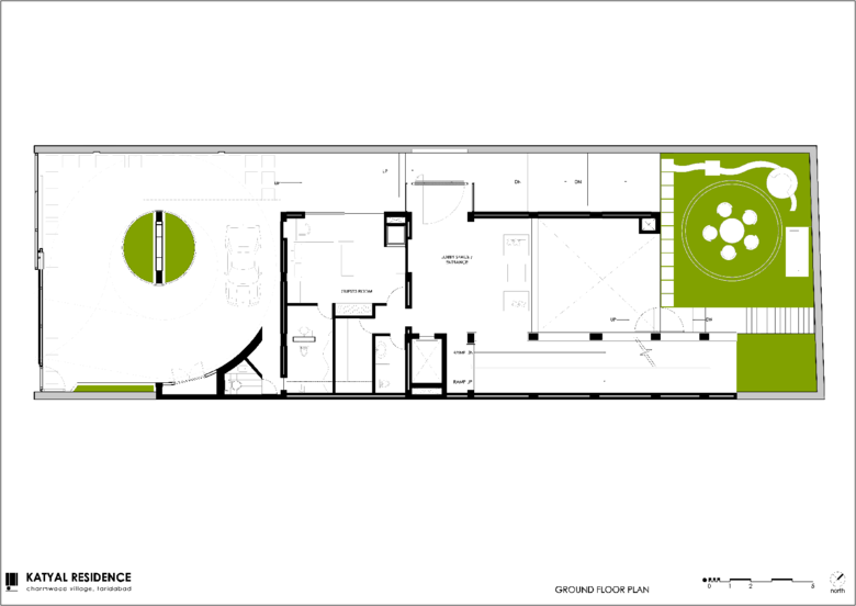
The arrival itself is announced in a grand fashion-almost in defiance of the paucity of space, as cars navigate a sensuous sweep of an entire half circle before they come to a halt. The background for this showbiz is ensured by making the setting – the driveway flooring, the boundary wall and the servicesas the guard’s cabin – a monolith that fades away. Lighting that bounces off the rough textured wall then guides visitors through a walkway to the back garden.

The next announcement is the massive pivoted wooden door surrounded by panels of glass that cannot but help attracting attention, as together they get down to the business of introducing the idea of larger than life volumes that are going to be the tours de force of the house.

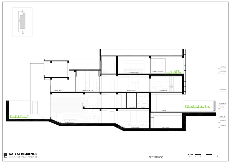
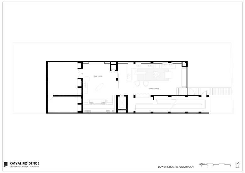
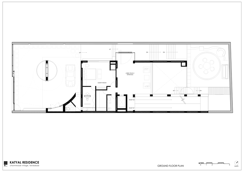
With much of the ground occupied by the theatrical drive-in, the house accommodates just a guest space and an entrance lobby on this level. Says the architect Sourabh Gupta, ‘the idea of making the lower ground level as the main lounge and integrating it volumetrically with the stacked living spacesas the dining, kitchen and the elders’ space on two above floors, disconnecting the staircase and instead adding a ramp as a connector and a dumb waiter for servicing was initially met with a measure of skepticism; but now this ‘thinking-out-of-the-box’ concept has become the talk of the town!’ The ramp has made these spaces ‘friendly’-accessible to all, in particular the elders. But as an element, it draws people towards it, for, the muted light almost romances the stone.

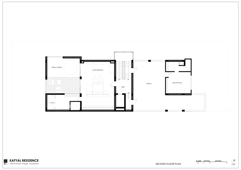
‘Meeting the challenge of giving huge openings in glass without allowing the great Indian sun to pour in heat through them was indeed satisfying’, Sourabh adds. That the climatic needs of the context are met head on, that light is always indirect and endowed with a natural tonality throughout the house is very perceivable. The top floors are the bedrooms, each sporting lavish volumes, equipped with spacious green terraces, dress spaces and baths. Each floor converses with one selected material, be it stone, wood or exposed brick. The spaces are punctuated by contemporary designer furniture pieces and lighting fixtures that embellish the vocabulary of its architecture. A wash basin mounted on the pivoted door of the powder room with floor lighting makes a significant statement that design can be fun even in the most unexpected of places.

It is the unusual facade that has given the house and the owners a unique identity in the neighborhood. The flexible facade reflects the changing ‘mood’ of the house, with a set of massive red- and gray-colored fins whose industrial look might raise the eyebrows of the purists. When closed, they display their grey side, one that merges with the rest of the facade, ‘announcing’ the need for privacy; however when open they scream red! They are ‘the neighbors’ envy and the owners pride.’

Studio archohm has helped family Katyal have the cake and eat it too!

PROJECT CREDITSLocation: Charmwood village, Faridabad | Client: Mr. Rakesh Katyal | Architect: Studio archohm | Principal Architect: Mr. Sourabh Gupta | Site Area: 4,964 sf | Built-Up Area: 8,741 sf | Dates: April 2010 - April 2015 | Structural: ROARK consulting | Electrical: archohm consults | Landscape: archohm consults | Plumbing: techno engineering consultants

Other articles in this category