Facets

A Building with 'Closed-Cuboid Logic'

Studio UF+O | 5. January 2026
What makes this project unique?

Facets is unique because it transforms a conventional industrial typology—standard PEB warehouses—into an expressive architectural statement. Instead of presenting a monolithic mass, the building uses staggered, interlocking volumes that break down scale, create movement, and offer climatically responsive shaded pockets. Its design is shaped by strict bylaws, Vaastu Shastra guidelines, and sculptural mass subtraction, resulting in a closed-cuboid form that remains dynamic. The entire structure rests on only ten RCC columns with post-tensioned slabs, enabling free planning and sculptural freedom at the facade. Local terracotta brick cladding grounds the bold contemporary form in regional craft traditions.

Photo: Niveditaa Gupta
What is the inspiration behind the design of the building?

The design draws inspiration from Jodhpur’s climate, regional material traditions, and the cultural framework of Vaastu Shastra. Climatic challenges, intense sun, heat, and dust, shaped the massing into offset, shaded volumes that create terraces, reduce heat gain, and encourage passive cooling. The Vaastu-mandated courtyard and closed-cuboid logic informed the spatial organization and volumetric discipline. At the same time, locally sourced terracotta bricks and linear horizontal coursing link the building to Jodhpur’s craft heritage. Together, these influences merge functional industrial requirements with cultural and climatic responsiveness, forming a building that is both performative and rooted in place.

Photo: Niveditaa Gupta
How did the site impact the design?

The industrial setting of Basni Phase II, dominated by cost-effective warehouses, required the building to establish a distinct identity while fitting into the rugged context. Jodhpur’s harsh, sunny, and dusty climate directly informed the staggered massing, recessed windows, deep overhangs, and shaded pockets that reduce heat gain and improve comfort. Regulatory height limits and Vaastu requirements restricted cantilevers and shaped a closed-cuboid volume, prompting a sculptural strategy of subtracting mass to meet permissible built areas. Material choices such as terracotta bricks also responded to the region’s thermal needs, grounding the building in its local environmental context.

Photo: Niveditaa Gupta
To what extent did the owner, client, or future users of the building affect the design?

The client’s adherence to Vaastu Shastra significantly shaped the building’s form and layout, eliminating cantilevers and establishing a closed-cuboid approach with a mandatory courtyard at the heart of the program. Functional requirements, a warehouse, workspaces, and an experience center determined the vertical stacking of activities across five levels. The inclusion of an open-sky courtyard provides workers with a pause space, reflecting an understanding of daily user needs. Storage functions placed above help create a thermal buffer, improving comfort for occupants. These inputs collectively guided spatial organization, functional clarity, and climatic performance within the building.

Photo: Niveditaa Gupta
Were there any significant changes from initial design to completion?

A major evolution occurred through a process of sculptural subtraction. The design began with a larger mass and was refined by shaving away volumes through shear operations along the edges of each floor. This ensured compliance with regulatory requirements and reduced non-permissible built-up areas while preserving the building’s expressive intent. The construction phase also introduced challenges that shaped execution, such as the complex doubly curved rebated brick wall that required on-site innovation using strings and nails to guide masons. This collaboration allowed the built form to achieve the sophistication envisioned in the initial concept.

Photo: Niveditaa Gupta
How does the building relate to other projects in your office?

Facets reflects our core philosophy of integrating functional demands with cultural principles and climate-responsive design. Like other projects by the practice, it prioritizes contextual sensitivity, using massing, materials, and passive strategies to derive performance from form. The combination of rigorous structural logic, a minimal grid of ten columns with post-tensioned slabs, and expressive sculptural articulation aligns with the studio’s approach to transforming constraints into opportunities. The use of local craftsmanship, especially terracotta brickwork, and the focus on human-centred spaces such as the courtyard demonstrate the firm’s consistent commitment to culturally rooted, climate-attuned architecture.

Email interview conducted by John Hill.

Photo: Niveditaa Gupta
Photo: Niveditaa Gupta
Photo: Niveditaa Gupta
Photo: Niveditaa Gupta
Photo: Niveditaa Gupta
Project: Facets, 2024
Location: Jodhpur, Rajasthan
Client: Withheld
Architect: Studio Urban Form + Objects (Studio UF+O), Mumbai
  • Design Principals: Vineet Vora, Prachi Parekh
  • Design Team: Vineet Vora, Prachi Parekh, Aishwarya Gaitonde
Structural Engineer: Rajiv Shah & Associates
Landscape Architect: Studio UF+O
Lighting Designer: Studio UF+O
Contractor: Narpat Builders, Jodhpur
HVAC: Sai Aircon Pvt Ltd
Facade System (Brick Cladding): Vastu Engineers, Ahmedabad
Windows: Sai Sign Tech, Mumbai
Lighting: Goldmedal Switches and Electricals 
Site Area: 13,000 sf
Building Area: 38,000 sf
Volumetric Evolution (Drawing: Studio UF+O)
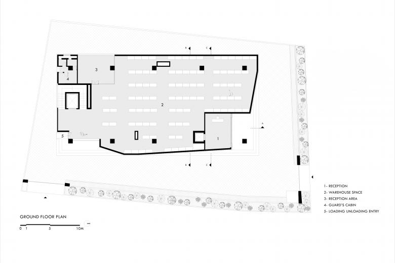
Ground Floor Plan (Drawing: Studio UF+O)
First Floor Plan (Drawing: Studio UF+O)
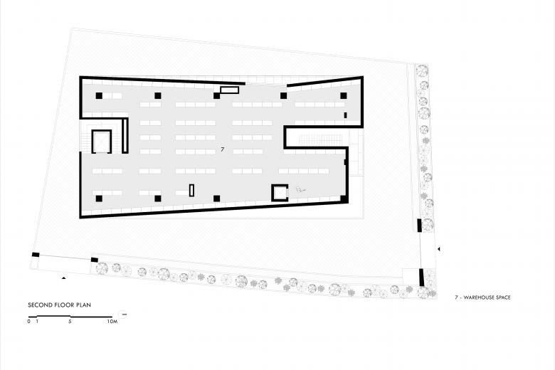
Second Floor Plan (Drawing: Studio UF+O)
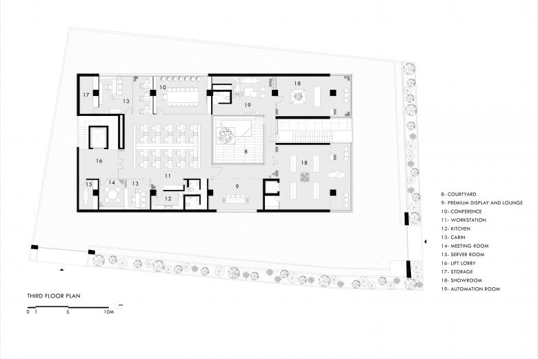
Third Floor Plan (Drawing: Studio UF+O)
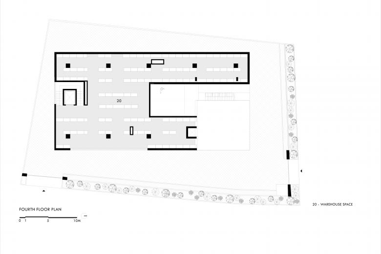
Fourth Floor Plan (Drawing: Studio UF+O)
Facets Wall Section A (Drawing: Studio UF+O)
Facets Wall Section B (Drawing: Studio UF+O)
Facets Wall Section C (Drawing: Studio UF+O)

Other articles in this category