Hans van Heeswijk Architects

Museum MORE

Hans van Heeswijk Architects | 2. June 2015
Photo: Luuk Kramer

The museum, an extension of Gorssel’s former town hall, is a private initiative and has been completed to the highest standards in a record time of just three years.

Photo: Imre Csány/DAPh
Photo: Imre Csány/DAPh

The Netherland’s biggest collection of modern realism
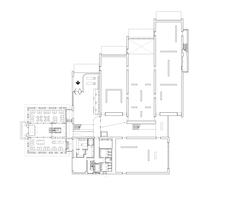
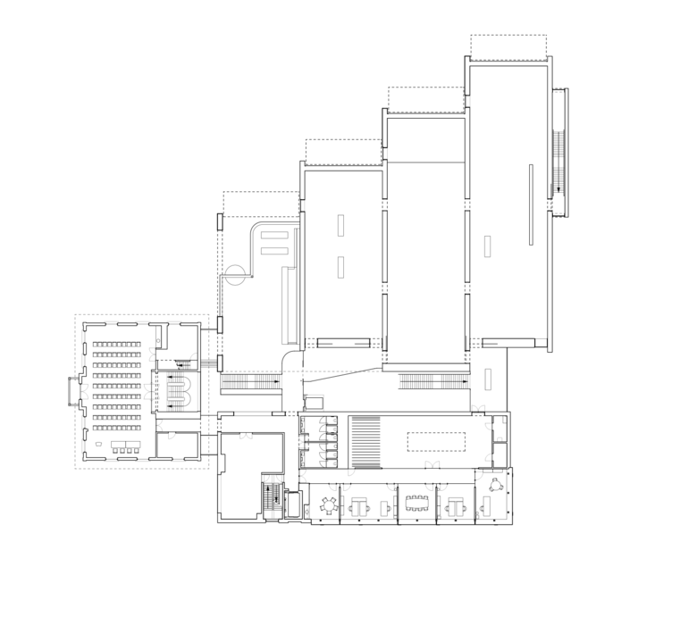
In 2012, Hans Melchers, the initiator of Museum MORE, decided to display his collection of modern Dutch realist art (acquired following the demise of DS Art BV) in the Achterhoek, a region in the east of the Netherlands bordering Germany. His eye soon fell on the former town hall of Gorssel (available thanks to a municipal merger with Lochem). Hans van Heeswijk Architects, known for the acclaimed Hermitage Amsterdam museum and the recent successful expansion of the Royal Picture Gallery Mauritshuis, was recruited to design an impressive lobby and seven spacious exhibition halls for the new museum. As the building progressed, the collection expanded thanks to the acquisition of additional works by Arnout Killian, Carel Willink and others. The public has not seen most of the works in the collection since 2009. From 2 June 2015, the Netherlands’ biggest collection of modern realism will again be on show, and is expected to attract a wide audience.

Photo: Imre Csány/DAPh
Photo: Luuk Kramer

A pavilion in a park
The historic part of the building, dating from 1914, has been renovated to become a museum café and event hall. The new museum structure is characterized by strategic sightlines that make the most of the park-like setting, blending inside and outside in a seamless whole. Besides exhibiting parts of the permanent collection, the building also offers space for exhibitions, administrative offices and a restoration workshop. The museum has an inviting appearance, clear layout and a surprisingly light, airy quality of space. In it, Van Heeswijk repeats his distinctive use of natural materials like stone, glass and steel.

Photo: Imre Csány/DAPh
Photo: Luuk Kramer

PROJECT CREDITS

Client: Melmuseum Gebouw BV
Location: Gorssel, Netherlands
Architect: Hans van Heeswijk architecten
Interior Design: Hans van Heeswijk architecten
Landscape Design: Michael van Gessel
Stuctural Engineer: Van Rossum Raadgevende Ingenieurs
M&E Engineer: Nelissen ingenieursbureau
Construction Supervisor: Herder advies
General Contractor: Koopmans | TBI

Design: 2012-2013
Construction: 2013-2015
Opening: 2 June 2015
Architect of original town hall: Municipal architect A.J. Jansen
Built: 2014
Area, total old situation: ~3,300 m2
Area, former town hall: ~700 m2
Area, new extension: ~4,100 m2
Area, total new situation: ~4,800 m2

Site Plan
Ground Floor Plan
First Floor Plan

Other articles in this category