KIT Karlsruhe + ETH Zürich + Singapore-ETH Centre

MycoTree

KIT Karlsruhe + ETH Zürich + Singapore-ETH Centre | 5. September 2017
Photo © Carlina Teteris

PROJECT CREDITS
Team / Authors
Sustainable Construction, Karlsruhe Institute of Technology, KIT Karlsruhe: Karsten Schlesier, Felix Heisel, Dirk Hebel
Block Research Group, ETH Zürich: Juney Lee, Matthias Rippmann, Tomás Méndez Echenagucia, Andrew Liew, Noelle Paulson, Tom Van Mele, Philippe Block
Alternative Construction Materials, Future Cities Laboratory, Singapore-ETH Centre: Nazanin Saeidi, Alireza Javadian, Adi Reza Nugroho, Robbi Zidna Ilman, Erlambang Adjidarma, Ronaldiaz Hartantyo, Hokie Christian, Orion Tan, Sheng Yu, Kelly Cooper
Production partner
Mycotech, PT Miko Bahtera Nusantara, Indonesia 
Sponsors
ETH Global; ETH Zürich, Department of Architecture; Karlsruhe Institute of Technology (KIT); Future Cities Laboratory (FCL), Singapore-ETH Centre

Photo © Carlina Teteris

Utilising only mycelium and bamboo, the structure represents a provocative vision of how we may move beyond the mining of our construction materials from the earth’s crust to their cultivation and urban growth; how achieving stability through geometry rather than through material strength opens up the possibility of using weaker materials structurally and safely; and, ultimately, how regenerative resources in combination with informed structural design have the potential to propose an alternative to established, structural materials for a more sustainable building industry.
 
MycoTree is the result of a collaboration between the Professorship of Sustainable Construction at Karlsruhe Institute of Technology (KIT) and the Block Research Group at the Swiss Federal Institute of Technology (ETH) Zürich. It is the centrepiece of the “Beyond Mining – Urban Growth” exhibition at the Seoul Biennale of Architecture and Urbanism 2017 in Seoul, Korea curated by Hyungmin Pai and Alejandro Zaera-Polo, and will be on display in Pavilion i7 at the Donuimun Museum Village from September 1st to November 5th 2017.

Photo © Carlina Teteris

A Necessary Paradigm Shift
As populations and aspirations grow, so does the demand for materials and resources to support them. Although such resource demands were once satisfied by local and regional hinterlands, they are becoming increasingly global in scale and reach. This phenomenon has generated material flows that are trans-continental and planetary in scope and has profound consequences for the sustainability, functioning, sense of ownership and identity of future cities. However, the global concentration of the construction industry on a selected few materials puts high pressure on our natural resources. If we talk about the future city, it is clear that it cannot be built with the same resources as existing ones.
 
The 21st century will face a radical paradigm shift in how we produce materials for the construction of our habitat. The linear concept of “produce, use, and discard” has proven itself unsustainable in the face of scarce resources and exponentially increasing urban populations. Instead, to achieve a cycle of production, use, and re-use, we must explore alternative materials and approaches to construction. Materials that were previously considered unwanted and low-strength may present possibilities to end this undesirable state of affairs. Building with materials that can be effectively cultivated on site or nearby and designing in compression to produce structures that can span space despite the low tensile capacity of their components may bring about changes that are desperately needed.

Photo © Carlina Teteris

Beyond Mining - Urban Growth
The Professorship of Sustainable Construction at KIT and the Block Research Group (BRG) at ETH Zürich are combining their knowledge in materials, construction, structures, and geometry to address the problems posed by inefficiency in the realms of current design and material use. While Dirk Hebel’s team at KIT explores the cultivation of natural, regenerative materials and their use in construction optimized for the challenges presented in global urban environments, the BRG researches how methods from the past including building in compression to span space and the technique of graphic statics can be revived to take advantage of today’s technological and digital advances. The advent of computation and the use of sophisticated design tools present opportunities to create efficient and expressive structures. This enables us to realise the potential of “low-strength” materials as structural elements, and designing with the flow of forces facilitates their use in construction.

Photo © Carlina Teteris

Mycelium Materials
Mycelium is the root network of mushrooms, a fast growing matrix that can act as a natural glue. Digesting plant-based waste products, such as sawdust, mycelium’s dense network binds the substrate into a structurally active material composite. The advantages of such products are significant: As mycelium follows a metabolic cycle, building elements or whole constructions can be composted after their original use. The material can be grown locally, reducing both the energy and time required for transportation. And, as they are organic matter, they act to reverse carbon emissions through the absorption of carbon.
 
To initiate the growth process, sterilized substrate is mixed with mycelium tissue. Over the course of days, the fungi will start to digest and transform the nutrients, growing into a dense, spongy substance of interlocking mycelium filaments. In a second step, this mass can then be “cast” into moulds. Left for another few days, the cast mycelium further densifies into its final shape. In a last step, the resulting building element is being dried in order to stop the growth process.

Photo © Carlina Teteris

Structural Geometry for “Low Strength” Materials
Mycelium-based materials offer significant ecological advantages on the one hand but comparably low structural strength on the other. When building with materials that are weak in tension and bending, good geometry is essential for maintaining equilibrium through contact only – that is, through compression. Funicular geometry has the advantage that stresses in it are very low. Development of engineered materials, such as concrete or steel, is largely focused on making these materials stronger, on increasing their allowable stress. However, achieving stability through geometry rather than through material strength opens up the possibility of using weak materials.
 
The structure’s geometry was designed using 3D graphic statics, a novel method developed by the Block Research Group at ETH Zürich that extends the traditional two-dimensional structural design technique to fully spatial systems. Using polyhedral form and force diagrams, it allows exploring and discovering efficient but expressive structural forms, going beyond the arch or vault in compression, such as the compression-only branching geometry of MycoTree. Polyhedral by construction, without the need for optimisation, the structure’s complex nodes could be materialised using developable surfaces, which can be cut from sheet material.

Photo © Carlina Teteris
It is important to work sterile and keep competing bacteria or mushroom spores away from the material. To activate the mushroom, the nutrient needs to be sufficiently watered. (Photo © Carlina Teteris)
Mushroom mycelium is a weak material with a very low bending and tensile capacity. However, tests showed that the compressive strength of the material is sufficient for certain structural applications. (Photo © Carlina Teteris)
Acting as compressive building blocks, these cultivated, biological elements can be biodegraded after use and their components returned as nutrients into the natural metabolism. (Photo © Carlina Teteris)
Assembly (Photo © Sustainable Construction, KIT and BRG, ETH Zürich)
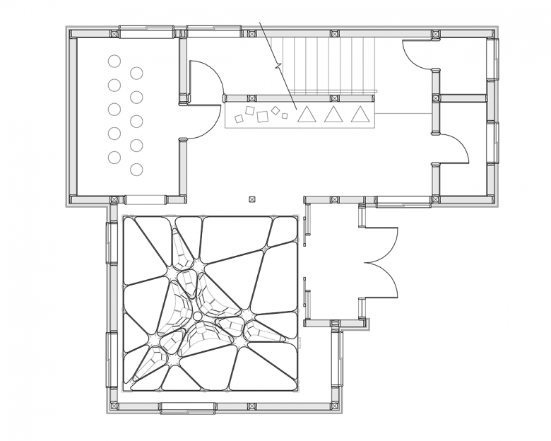
Exhibition layout of Beyond Mining – Urban Growth and top view of MycoTree at the Seoul Biennale 2017 (Drawing © Sustainable Construction, KIT and BRG, ETH Zürich)
Section of MycoTree at the Seoul Biennale 2017 (Drawing © Sustainable Construction, KIT and BRG, ETH Zürich)

Other articles in this category