Carolina Souza Pinto, Jean Grivot and Lucas Obino
Nilo 1700
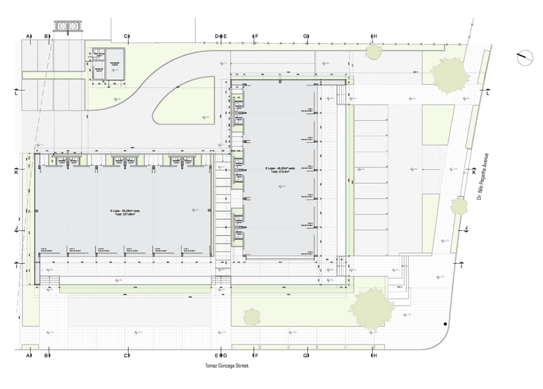
A shopping center with 12 shops facing one of the most valuable corners of Porto Alegre. The project was designed and built with industrial materials, and its structure made of precast concrete optimizing the construction time.
The gallery consists of the projected roof and the ground 1.5 m above the street level, so that it is not in visual conflict with the parking necessary, as the project has high traffic. This facade also provides interesting views and protection to the stores and users passing through the gallery.
The unique and commercial character necessary for this project was given with the use of an anodized aluminum cladding in different colors, which contrasts with the austerity of exposed concrete.
Project Facts
Architects: Carolina Souza Pinto and Lucas Obino (OSPA Arquitetura e Urbanismo) + Jean Grivot (Hype Studio)
Location: Av. Dr. Nilo Peçanha, 1700, Porto Alegre, Brazil
Project Area: 1,075 sqm









