Waechter Architecture
Pavilion House
Our clients wanted a glass house. The difficulty was that they wanted this house placed on a visually exposed 50’ x 100’ city lot that they owned in NE Portland. This posed the challenge of designing a glass house with privacy.
Our solution was to design a pavilion-like structure in which the body of the house is supported by four 10-foot-tall “legs.” The legs are placed strategically to block unwanted views and provide privacy.
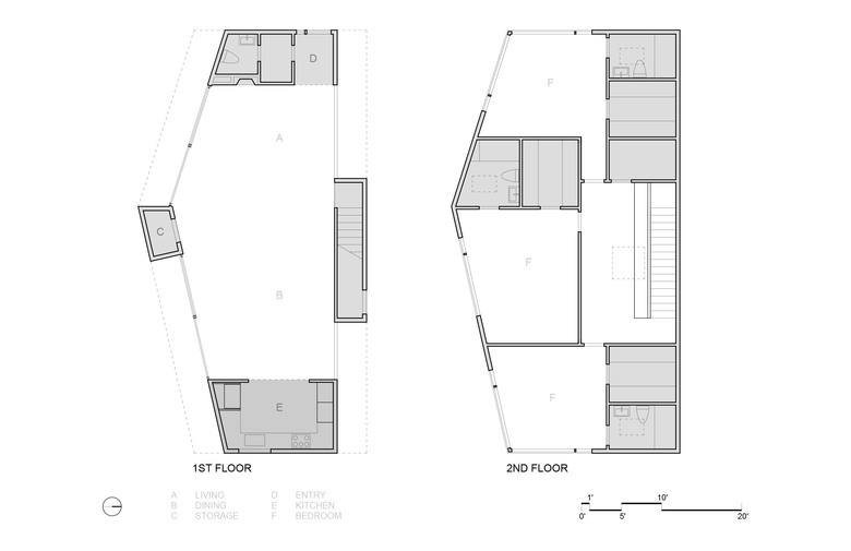
These four rectangular legs (housing stairs, kitchen, bathroom and storage) support the second story. Between these legs, the open floor plan expands to outdoor living through floor to ceiling glass and doors. The polished concrete floor is cast on grade, creating a seamless transition to the surrounding yard.
Stepping into the north leg, the mood changes as the stairway leads up to the bedroom level. Upstairs the spaces and rooms are more cellular and intimate. This part of the house is designed for flexible living arrangements (family or house sharing) with three compact, self-contained bedroom suites that wrap around a central landing and common study space.
The exterior is clad in standing seam white metal panels of varying width. The panels wrap the pavilion legs giving the impression that the house has been reductively sculpted from a single mass.
PROJECT FACTS
Architect: Waechter Architecture (Portland, OR)
Owner: Kevin Battey
Location: Portland, Oregon, USA
Type: Residence
Size: 2300 square feet
Year Built: 2015
Related articles
-
-
-
Spaces for Cars – And for People
Kennedy & Violich Architecture, Ltd. (KVA) | 02.03.2026 -







