Herault Arnod Architectes
Regeneration of Mine Site 9-9 bis
The Oignies coal mine closed in 1990, leaving a whole population and its industrial mining heritage (pithead buildings, industrial buildings, head frames) in disarray. The project to reinstate this territory marked by decades of mining operations, began in 2005 with the competition mounted by the Hénin-Carvin Intermunicipal Council (14 municipalities, 125,000 population).
Hérault Arnod’s competition-winning project proposes a program based on music and sound, in memory of the massive noise produced by this industrial site when in production, now fallen silent in its abandonment.
Project: Regeneration of Mine Site 9-9 bis, 2016
Location: Oignies, Pas-de-Calais, France
Client: Hénin-Carvin Conurbation Committee
Architect: Hérault Arnod Architectes
Lead Architect: Matthieu Ballarin
Project Manager: Laetitia Capuano
Programming: Café Programmation
Economics: Michel Forgue, economics
Landscape: Cap Paysages, landscape
Structure: Batiserf
Fluids: Nicolas Ingénierie
Acoustics: Maurice Auffret
Signaletic Design: Gérard Plénacoste
Total Floor Area: 3578 m2
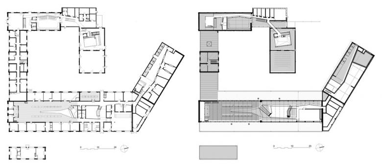
The project, with its emphasis on the touristic and cultural qualities of the site, consists of a general masterplan, a redrawing of the landscape and access routes, conversions of the listed machine building and the entire “salle des pendus”, as well as the construction of new buildings: an office complex, in extension of an existing workshop, and the Métaphone®, a piece of experimental architecture that is simultaneously a concert hall and an urban musical instrument (completed in 2013). The different elements of the project were built successively over ten years, with the changing-room complex building the last to be delivered.
The rebirth of this emblematic site is founded in artistic creativity and economic developments. It has been achieved through the combination of new architecture and the refurbishment of existing buildings in a way that preserves their integrity.
“Salle des pendus” (hanging room) complex: change of use and dialogue with history
The most recently renovated building consists of a complex of changing rooms, showers spaces and technical premises housed in the immense hall where the “pendus” are located. These are a system of ceiling-mounted hooks and pulleys that was used for the hanging and storage of the miners’ wet and dusty clothes when they emerged from the mine (up to 2200 miners a day in the 1950s). The “salle des pendus” is a 70-meter long nave. Its first part was built in 1931, the second in 1965. On either side of this nave are communal showers, one of which has been kept in its original state as an example.
The various building units, constructed between 1928 and 1970, differ in their construction, but are unified by their brick facades and large windows. In the oldest buildings, the metal frames are bolted together. The roofs are made either of mechanical tiles, or of cement fibre, or in some cases of glass.
Today, this complex houses the site’s administrative offices, music and dance spaces, rehearsal and seminar rooms, recording studios and a television studio.
Furtive volumes
The introduction of modern functions demanded a new spatial layout, the creation of a series of small, acoustically insulated spaces. To protect the integrity of the historic materials, the large spaces are “furnished” rather than partitioned, applying a principle of “nested boxes” which preserve the view of the existing volumes, the flowing expanses of the walls and roofs. These built-in structures are faced with polished aluminum panels that reflect the structures around them, so that the new volumes seem to absorb the materials of the original shell. Their aluminum envelopes give a furtive appearance to these objects arranged in space, a certain transparency that reduces the sense of mass.
The dialogue created by the reflection of the textures of the past in these contemporary surfaces symbolizes the shifts in the great social paradigms that have been underway since the last century.
Restoration
The intervention on the old structures was designed to do justice to the existing materials and to maintain the atmosphere of the place. The interior arrangements are designed to be reversible, in recognition of the possibility of future changes.
Architectural components such as the metal structures, gantry cranes, the pulley system and technical grid in the nave, the brick walls, etc., have been retained and enhanced. Some original wall and floor tiles (cement tiles) have been restored. The water green colour of the nave walls, the so-called “hygiene green” commonly used in the first half of the 20th century in buildings linked with industry and health, has been restored.
The buildings needed heat insulation to make them habitable and manage energy consumption. Thermodynamic modelling was used to improve the efficiency of the envelope, maintaining a balance between unmodified surfaces and additional insulation. On the outside, the facades—restored in 2005—have not been changed. In most cases, the interior facades have not been faced, in order to retain the original textures. Insulation has therefore focused on the roofs, which have been entirely remade and insulated above the roof frames in order to leave them visible, on the glass roofs that have been rebuilt with double glazing, and on the windows, which have been reinforced with an internal frame that is invisible from the outside, in order to preserve the refinement of the structures. The underside of the roofs has been faced with timber panels (openwork, backed with acoustic cushions), to resemble 19th century, early 20th-century stations, which combine bolted metal frames and wooden ceilings.









