CBA / Clemens Bachmann Architekten

Showroom for Quiksilver, Roxy and DC Shoes

CBA / Clemens Bachmann Architekten | 10. February 2015
All images courtesy of CBA

The project will preserve the authentic and rough character of the space, revealing the unique textures and stories expressed in the structure and materials such as the exposed steel trusses and worn concrete floor. Within this industrial framework, we will introduce elements like racks, shelves and boxes for displaying the clothes and shoes.

The palette of materials will be kept neutral and desaturated, to allow the colors of the clothes themselves to be the main focus in the space. Plywood elements will create warmth and the white walls will accentuate the quality of light from the sawtooth clerestory windows.

PROJECT CREDITS

Architect: CBA / Clemens Bachmann Architekten
Location: Munich, Germany
Year: 2014
Client: Quiksilver / Sperber & Co GmbH & Co KG
Size: 1,300 m²

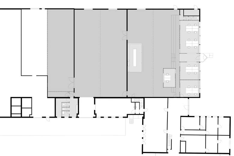
Floor plan
Section through sawtooth clerestories

Other articles in this category