Ateliers O-S Architectes

Theater Jacques Carat

Ateliers O-S Architectes | 2. October 2018
Photo: Cyrille Weiner

Project: Theater Jacques Carat Extension, 2017
Location: 21 Avenue Louis Georgeon, Cachan, France
Client: CA Val de Bièvre, Etablissement Public Territorial – Grand-Orly Seine Bièvre
Architect: Ateliers O-S Architectes
Project Architects : Vincent Baur, Guillaume Colboc et Gaël Le Nouëne
Project Managers : Marine Bouhin, Etienne Pellier
Services Engineer: Nicolas ing
Structural Engineer: Batiserf
Scenographer: Ducks Scéno
Acoustician: JP Lamoureux
Landscaping: Emma Blanc
General Contractor: Entreprise Boyer

Photo: Cyrille Weiner

The building appears as a simple volume, made up of two overlapping entities. A first transparent volume disconnects the project from the ground: it is the foyer, open and lively, offering a set of openings and revealing the inner volume. A second mineral volume composed of terracotta elements stands over the first volume and envelopes the project like a stage curtain.

Photo: Cyrille Weiner

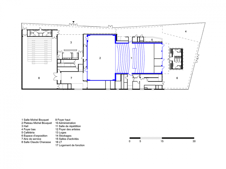
The new project is organized around the existing and central auditorium. On the ground floor, a generous reception area structures the whole distribution with the two auditoriums, the cafeteria and the exhibition space. The new 250 seats auditorium fits behind the existing one in order to share the new technical spaces and facilitate the flow of actors, technicians and logistic staff.

Drawing: Ateliers O-S Architectes

The overall image of the project is conceived as a technological and functional tool that confirms the dynamism of the city of Cachan, for the sake of architectural and landscape quality.

Exploded Axonometric (Drawing: Ateliers O-S Architectes)
Photos: Cyrille Weiner
Photo: Cyrille Weiner
Photos: Cyrille Weiner
Photo: Cyrille Weiner
Photos: Cyrille Weiner
Photo: Cyrille Weiner
Site Plan (Drawing: Ateliers O-S Architectes)
Floor Plan RDC (Drawing: Ateliers O-S Architectes)
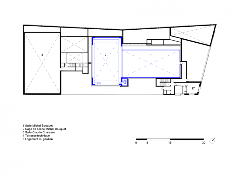
Floor Plan R+2 (Drawing: Ateliers O-S Architectes)

Other articles in this category