Jourdan Campus Redevelopment

TVAA Architects

TVAA Architects | 3. April 2017

PROJECT DETAILS

​Client

Région Ile de France

Client Representative
SAERP

Architect
TVAA Architects (Thierry Van de Wyngaert & Véronique Fiegel, Architectes Associés)

Consulting Engineer
ARTELIA

Building Economist
EVALUE

Environmental Consultant
TERAO

Landscape Architect
Agence Laverne

Façade Consultant
Jean-Marc Weil

Location
48 Boulevard Jourdan, 75014 Paris

Area
12,500 m2

Construction Cost
28M€ excluding tax

Dates
June 2011- January 2017
 

Photo: Takuchi Shimmura

Spread over 12,500 square metres, located opposite the Cité Universitaire and the Dutch Residential College designed by Willem Marinus Dudok in 1928, the Campus buildings redevelop the Paris periphery in the wake of the tramway.

Thierry Van de Wyngaert and Véronique Feigel designed a bar that folds, sways and rises to better integrate into its site. 

Photo: Takuchi Shimmura

STRENGTHEN SYNERGIES WITHOUT DILUTING THEIR IDENTITIES
Each entity - the ENS as well as the PSE - benefits from its own wing. Both are physically separated by a crevasse marked by a succession of generous terraces and the central sculptural staircase visible from outside which connects them. A central axis - the Ernests jetty - connects the reception lobbies of each school. 

Photo: Takuchi Shimmura
Photo: Takuchi Shimmura

A TRANSPARENT BASE
The building has been raised to give total transparency on the ground floor. The main entrance through the fully glazed reception lobby, located at the corner of Boulevard Jourdan, serves the common areas of the two institutions - the library on the first basement level, the cafeteria, the 300-seat amphitheatre. 

Photo: Christophe Valtin
Photo: Christophe Valtin

KINETIC BRISE-SOLEILS
The first two floors join classrooms and meeting rooms for the Master I and II programmes. Research offices of both schools occupy the upper floors. Large vertical manually adjustable brise-soleils – polished stainless steel on one side, larch wood on the other – protect full-height floor to ceiling windows, provide thermal comfort and – according to their orientation – give a vibration to the facade.

Photo: Christophe Valtin

PLANTED AGORA
Exterior spaces are designed as a planted agora that follows the topography of the site. The original central garden has been preserved. A converted courtyard has been excavated to give daylight and a view to the library. The architects developed a project with steep wetland gardens. The succession of filtering micro-terraces creates a smooth transition between the central garden and the library below. 

Photo: Takuchi Shimmura
Photo: Takuchi Shimmura
Photo: Christophe Valtin
Photo: Christophe Valtin
Site Plan (Drawing: TVAA Architects)
Floor Plan (Drawing: TVAA Architects)
Longitudinal Section (Drawing: TVAA Architects)
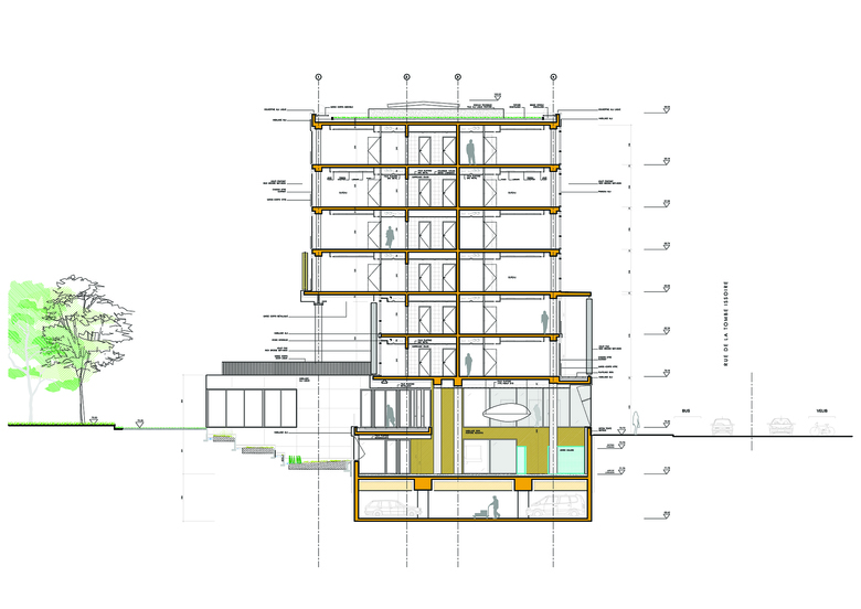
Transverse Section (Drawing: TVAA Architects)

PROJECT DETAILS

​Client

Région Ile de France

Client Representative
SAERP

Architect
TVAA Architects (Thierry Van de Wyngaert & Véronique Fiegel, Architectes Associés)

Consulting Engineer
ARTELIA

Building Economist
EVALUE

Environmental Consultant
TERAO

Landscape Architect
Agence Laverne

Façade Consultant
Jean-Marc Weil

Location
48 Boulevard Jourdan, 75014 Paris

Area
12,500 m2

Construction Cost
28M€ excluding tax

Dates
June 2011- January 2017
 

Other articles in this category