Neubau Fabrikationsgebäude
Das Fabrikationsgebäude steht im Kontext einer geschützten Holztrocknungshalle und unbestimmter Industriebauten.
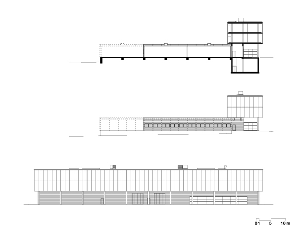
Der transparente, repräsentative Bürokörper trohnt auf dem massiv wirkenden Produktionssockel. Die Überschneidung der beiden Volumen akzentuiert den Zugang und gibt dem Gebäude eine Richtung.
- Arquitectos
- Beda Dillier
- Año
- 2001
- Estado del proyecto
- Construido
- Equipo
- Roger Durrer, Andreas Schlittler
- Architektengemeinschaft mit
- Mani Thür
- Fotografien
- Roger Frei, Zürich











