104 Bayard Street

104 Bayard Street

29. July 2013

104 Bayard Street
2013
New Brunswick, New Jersey
 
Client
Bayard Associates LLC
 
Architect
DIGroupArchitecture
New Brunswick, NJ
 
Project Designer
Kevin Scott Dunn

Project Architect
Scott D. Hoffman

Principal in Charge
Jeffrey D. Venezia

Structural Engineer
Allied Engineering
 
MEP/FP Engineer
Kelter and Gilligo
 
Contractor
Tekton
 
Composite Metal Wall Panels and Corrugated Metal Siding
Alcoa Reynobond
 
Site Area
3,125 sf
 
Building Area
18,750 sf

Photographer
Halkin Mason Photography

Drawings
DIGroupArchitecture

Street View

What were the circumstances of receiving the commission for this project?

Before the merger that formed DIGroupArchitecture, one of the three firms, Venezia and Associates, owned and worked out of the building on 104 Bayard Street. After moving to their new location, the building was sold to local developer, Tekton, who planned to raze it in favor of new construction. A few years prior to this, Tekton worked with Jeff Venezia, AIA, on the Catholic Ministry Center at Rutgers University. So when their architect at the time produced a disappointing vision for the new mixed-used project, Tekton sought Jeff’s services once again. It was certainly an ideal project for Jeff, who had spent over 20 years occupying the site himself. 

Urban Context

Can you describe your design process for the building?

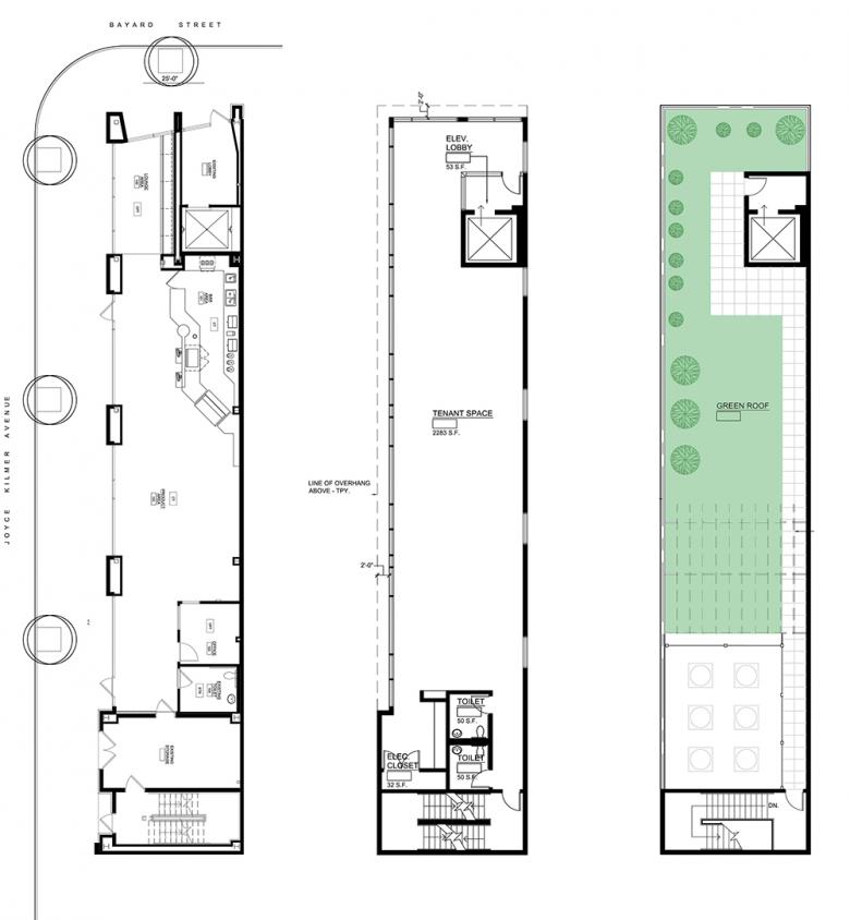
The site sits on the fringe of the commercial business district of New Brunswick, so in addition to the tight footprint (25’ x 125’), zoning regulations dictated the initial constraints. The surrounding architectural context is mixed and includes residential, religious, mixed-use, offices, and commercial typologies from multiple eras. This project was a study on how a building with a small footprint can be impactful and expressive without hiding its typology.

The design strategy was to take maximum advantage of the height restrictions while creating a distinctive, contemporary structure informed by its neighboring buildings. The street level retail spaces are transparent to promote interaction with passersby, inviting them to participate in the activities within. In response to the residential scale of the adjacent block, the first two floors utilize a metal panel system with a color reminiscent of wood frame construction. Floor-to-ceiling glazing and a thick metal ribbon wrap the building on the third through fifth floors, which are planned for tenant spaces. The sixth floor is clad in corrugated metal paneling to help cap the building and ground it under one “roof.” Finally, the rooftop is designed for use by the penthouse, and will feature one of the first green roofs in New Brunswick.

Street View

How does the completed building compare to the project as designed? Were there any dramatic changes between the two and/or lessons learned during construction?

The completed building is very close to the project as designed. As an office building with a small footprint, the core and shell are completed and the tenant spaces will be built to suit.  Changes to a few of the planned finish materials were made but the design was flexible enough to accommodate those changes.

Final Model

How does the building compare to other projects in your office, be it the same or other building types?

The design of this building is consistent with our approach; it is not only informed by the building program and the client’s values, but by the balance of geometry, structure, light, and materials. Our firm takes pride in the relationships we cultivate; 80% of our business comes from repeat clients. Beyond the architectural influence of 104 Bayard, we value its significance as a project that came to us as a result of a successful working relationship with a previous contractor. 

L-R: Ground floor plan, typical tenant plan, roof plan

How does the building relate to contemporary architectural trends, be it sustainability, technology, etc.?

104 Bayard was designed to meet LEED Silver certification. The urban setting and its adaptability are inherently rooted in sustainable architecture, while daylight harvesting, mechanical and lighting controls, sun control devices, fuel cell generators, and water conservation techniques were employed wherever possible. DIGroupArchitecture consistently strives for timeless, well-constructed buildings, which are benchmarks of truly sustainable architecture. 

Early massing studies

How would you describe the architecture of New Jersey and how does the building relate to it?

New Jersey has an extremely diverse architectural vernacular, so it’s best to put this project in context of the City of New Brunswick. Despite a relative building boom since the 1980’s, much of the contemporary development and construction has been counterproductive to the vibrancy of street life and the urban context. Large buildings that take up entire blocks have been the norm. 104 Bayard not only contributes to the architectural profile of New Brunswick, a city that has seen its share of generic, nondescript buildings, but it is a project that engages the scale of its urban setting. Vertical density and ground-floor transparency help keep the original grid intact while contributing to the pedestrian energy of the growing city. 

Email interview conducted by John Hill.

Full Plans and Section

104 Bayard Street
2013
New Brunswick, New Jersey
 
Client
Bayard Associates LLC
 
Architect
DIGroupArchitecture
New Brunswick, NJ
 
Project Designer
Kevin Scott Dunn

Project Architect
Scott D. Hoffman

Principal in Charge
Jeffrey D. Venezia

Structural Engineer
Allied Engineering
 
MEP/FP Engineer
Kelter and Gilligo
 
Contractor
Tekton
 
Composite Metal Wall Panels and Corrugated Metal Siding
Alcoa Reynobond
 
Site Area
3,125 sf
 
Building Area
18,750 sf

Photographer
Halkin Mason Photography

Drawings
DIGroupArchitecture

Related articles 

Featured Project 

Atelier KI JUN KIM

House by the Wall

Other articles in this category