US Building of the Week

@150 North Third Street

JBAD | 5. September 2022
Project: @150 North Third Street, 2020
Location: Columbus, Ohio, USA
Client: SPG
Architect: JBAD
  • Design Principal: Jonathan Barnes
  • Project Architect: Ben Robles
  • Project Manager: Kayla Mahoney
Structural Engineer: JGA
MEP/FP Engineer: Point One
Interior Designer: Crimson Design
Construction Manager: Corna Kokosing
Site Area: 0.5 acres
Building Area: 100,000 sf
Photo: Brad Feinknopf
Please provide an overview of the project.

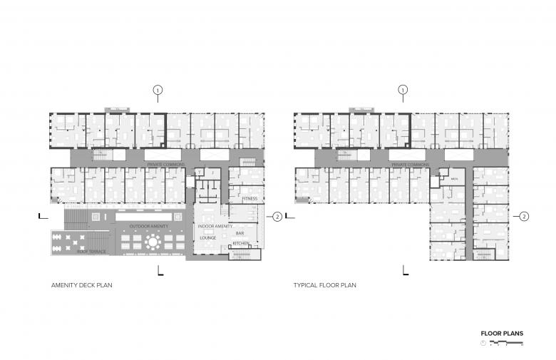
As a prime example of a growing trend of urban infill and adaptive reuse, @150 North Third Street saves a 120-year-old warehouse structure and repurposes the building and surrounding parking lots as a mixed-use residential project. The historic, five-story masonry and heavy timber structure was converted to apartments and expanded with a five-story addition, configured in a “L”-shape, for a total of 79 apartments and 100,000 square feet. The addition and an amenity deck are raised above a concrete podium which provides limited on-grade parking for 27 cars. Retail space is located on the ground floor of the existing building and in a new 3,000-square-foot one-story building on Third Street.

Photo: Brad Feinknopf
What are the main ideas and inspirations influencing the design of the building?

Parabuilding
The building addition is conceived as a "parabuilding": an alteration or addition that transforms the character of an existing building, creating a brand-new identity while maintaining and preserving the building’s historic architecture. In this interpretation, the parabuilding was created as a ghost copy of the "host" building, mimicking the original structure in size, proportion and fenestration but with high contrast in its exterior expression.

Photo: Brad Feinknopf

Vertical Alley
The generous void between the old and new structures is conceived as a vertical alley, a shared space that provides access to the apartments and tenant social space, animated with angled views up through floor openings and framed views out to the city.

Photo: Brad Feinknopf
How does the design respond to the unique qualities of the site?

The parabuilding copies but reinterprets the existing historic early 20th-century building with a veiled facade, its fenestration semi-visible behind a thin, translucent polycarbonate plane. A highly chromatic patterned facade also reinterprets the punched window pattern of the historic structure and wraps the perimeter of the new building at the amenity deck and the adjacent alleys as an overt expression of difference in place and time — this is here not there, now not then. The color blocks are created with an uncharacteristic interpretation of Juliet balconies: solid doors rather than glass.

Photo: Brad Feinknopf
How did the project change between the initial design stage and the completion of the building?

The design evolved as a response to adjacent urban conditions, construction costs and building code demands but stayed true to the most important design goals. The raised amenity deck, accessible to the public as an extension of the urban streetscape, was an addition of opportunity.

Photo: Brad Feinknopf
What products or materials have contributed to the success of the completed building?

  • Gallina Polycarbonate
  • HardiePanel Siding

Email interview conducted by John Hill.

Photo: Brad Feinknopf
Photo: Brad Feinknopf
Photo: Brad Feinknopf
Drawing: JBAD
Drawing: JBAD
Drawing: JBAD
Drawing: JBAD

Related articles 

Other articles in this category