20th Street Residence

20th Street Residence

22. October 2012

20th Street Residence
2012

San Francisco, CA

Client
Withheld

Architect
SFOSL
San Francisco, CA / Oslo, Norway

Design Principals
Casper Mork Ulnes, Andreas Tingulstad

Project Architect
Grygoriy Ladigin

Structural Engineer
Double D Engineering

Landscape Architect
Flora Grubb

Contractor
Natal Modica Construction

Metal Work
Defauw Design & Fabrication

Building Area
2,225 square feet (remodel + extension)

Photographs
Bruce Damonte

Drawings
SFOSL

20th Street Elevation

What were the circumstances of receiving the commission for this project?
 
The client contacted us after a project we did was published after an AIA Home Tour event in the city of San Francisco.

Design diagrams

How does the building compare to other projects in your office, be it the same or other building types?
 
The projects we do are made the same way – we give simple answers to complex challenges. They may appear different – but have the same formula. The main difference is the different clients – whom ultimately decide what architecture is for that particular project.

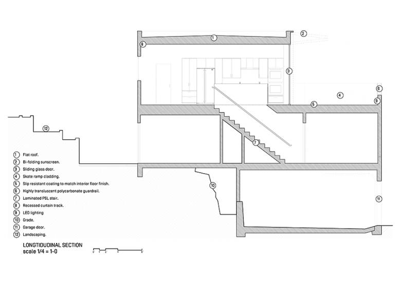
Building Section

Are there any new/upcoming projects in your office that this building’s design and construction has influenced?
 
We try to avoid preconceived ideas – but technical challenges in one project can certainly make us better prepared for the next obstacle in another project.  

Email interview conducted by John Hill

Rear Elevation

Can you describe your design process for the building?
 
It’s a fairly straightforward process. We gathered information, settled the budget, uncovered the real needs, made sure we had a complete understanding of codes – then we proceeded to maneuver among the issues we were faced with.

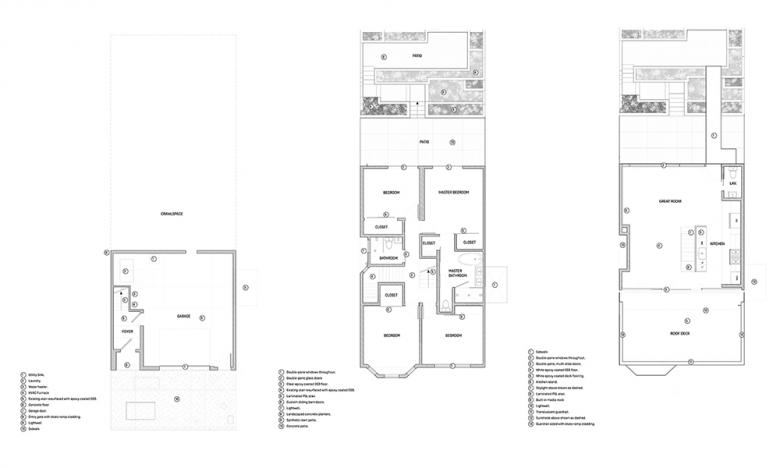
Floor Plans

How does the building relate to contemporary architectural trends, be it sustainability, technology, etc.?
 
We find that budgetary consciousness is more of an issue today than before – and in that respect this project is really pushing the envelope. We didn’t have a choice – and tried to make the most of what we had. We find that the most sustainable square foot is the one you do not build – and fiscally this gives new meaning to the word sustainable – we help the client save money, its environmental and it makes for better spaces.   
 

View of top floor from terrace

How does the completed building compare to the project as designed? Were there any dramatic changes between the two and/or lessons learned during construction?
 
We are happy to say that the building improved over time. In our experience, an absolute focus on solving the issues result in better projects – that improve as you move along – from something banal to something articulated.

20th Street Residence
2012

San Francisco, CA

Client
Withheld

Architect
SFOSL
San Francisco, CA / Oslo, Norway

Design Principals
Casper Mork Ulnes, Andreas Tingulstad

Project Architect
Grygoriy Ladigin

Structural Engineer
Double D Engineering

Landscape Architect
Flora Grubb

Contractor
Natal Modica Construction

Metal Work
Defauw Design & Fabrication

Building Area
2,225 square feet (remodel + extension)

Photographs
Bruce Damonte

Drawings
SFOSL

Related articles 

Featured Project 

Atelier KI JUN KIM

House by the Wall

Other articles in this category