308 Mulberry

308 Mulberry

24. February 2014

308 Mulberry
2011
Lewes, Delaware

Client
Withheld
 
Architect
Robert M. Gurney, FAIA, Architect

Design Principal
Robert M. Gurney, FAIA

Project Architect
Brian Tuskey

Structural Engineer
D. Anthony Beale LLC

Landscape Architect
South Fork Studio, Landscape Architecture

Interior Designer
Baron Gurney Interiors

Contractor
Ilex Construction

Site Area
0.18 acres

Building Area
2,338 square feet

Photographs
Maxwell MacKenzie

Drawings
Robert M. Gurney Architect

View from street

Please provide an overview of the project.

This project is intended to embrace a small, historical house, to restore it and allow it to contribute to the fabric of historical Lewes for many years to come. The project also attempts to provide generously proportioned, modern, light filled spaces that co-exist comfortably within the historical fabric.

View toward historic house

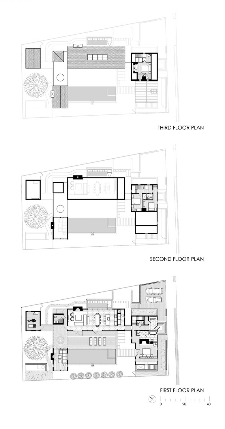
The original house now contains the main entry and four bedrooms. The interiors are decidedly modern with white walls void of trim, casings, moldings and baseboard that engage white ash flooring. An open, floating staircase, glass walls, aluminum and stainless steel contribute to the modern palette of elements and materials. In juxtaposition to the primarily white interiors of the original house, the interior of the new living pavilion is rich with a variety material, including mahogany walls and ceilings, basalt flooring, white marble countertops and fireplace surround and stainless steel cabinetry. Walls of glass and a long skylight at the ridge allow light to flood the pavilion. Additional pavilions contain a bathroom, an exercise room and a screened porch. The screened porch, with Douglas-Fir walls and ceilings, is located at the end of the swimming pool and contains a fireplace allowing the space to be used late into the fall.

View toward screened porch pavilion from main historic house

What are the main ideas and inspirations influencing the design of the building?

The requested spatial requirements were substantial and necessitated more than doubling the footprint of the original building. The design strategy was to allow the historical, two-story house to remain prominent in the overall composition. The requisite space would be accommodated in the original house and four additional structures that would engage the historical house in a minimally invasive fashion. The additions are conceived as one-story pavilions organized around a new swimming pool and large Deodar Cedar tree, located at the rear of the property.

Connection between historic house and living pavilion

To what extent did the clients and/or future users of the building influence the design and the outcome of the building?

The client generated a lengthy and specific list of spatial requirements, and requested that the interior spaces would organize around the outdoor spaces.

Dining room and kitchen

How would you describe the architecture of Delaware and how does the building relate to it?

The small city of Lewes, Delaware, located on the eastern side of Sussex County faces northeast into the mouth of the Delaware Bay. Lewes is popularly known as an eighteenth-century coastal town commemorated for being the site of the earliest European settlement in Delaware. Lewes is composed primarily of late nineteenth-century and early twentieth-century building stock. The dominant building type is timber and the prevalent construction type is balloon framing. The starting point for this project is one such small house located at 308 Mulberry Street, originally constructed in the early nineteenth-century in the heart of the historical district.

Living room

While the exterior of the original house is restored with historically correct detailing, the new pavilions are crisply detailed. Cedar shingled walls and roofs match the historical house but without overhangs and trim. Large expanses of glass set in black steel frames punctuate the cedar walls. Tall red brick chimneys and landscape walls add vertical and horizontal elements, completing the composition.

Email interview conducted by John Hill.

Screened-porch pavilion

Were there any significant challenges that arose during the project? If so, how did you respond to them?

The current owner purchased the historical property in poor condition, with the intention of renovating the existing structure and adding a substantial extension and swimming pool. In the redesign, the exterior of the original structure is meticulously restored. A shed-roofed screened porch, storage room, and poorly proportioned living space added to the back of the house in the early twentieth-century were removed.

Staircase in historic house
Third floor bedroom in historic house
Site plan
Axonometric
Floor plans
Elevation and section showing addition

308 Mulberry
2011
Lewes, Delaware

Client
Withheld
 
Architect
Robert M. Gurney, FAIA, Architect

Design Principal
Robert M. Gurney, FAIA

Project Architect
Brian Tuskey

Structural Engineer
D. Anthony Beale LLC

Landscape Architect
South Fork Studio, Landscape Architecture

Interior Designer
Baron Gurney Interiors

Contractor
Ilex Construction

Site Area
0.18 acres

Building Area
2,338 square feet

Photographs
Maxwell MacKenzie

Drawings
Robert M. Gurney Architect

Related articles 

Featured Project 

Atelier KI JUN KIM

House by the Wall

Other articles in this category