US Building of the Week
530 West Dickens
Chicago is a city known for, among other things, its grid: a regular grid with eight blocks to every mile. Diagonal streets are found here and there, disturbing the rectangular grid and creating the occasional oddly shaped lot. Vladimir Radutny Architects encountered one such lot a few steps west of Lincoln Avenue, which cuts a diagonal path through Lincoln Park and other North Side neighborhoods. The architects answered a few questions about the multi-family building at 530 West Dickens.
Location: Chicago, Illinois, USA
Client: Ranquist and New Era Development Groups
Architect: Vladimir Radutny Architects
- Design Principal: Vladimir Radutny, AIA
- Project Team: Ryan Sarros, Fanny Hothan, Vladimir Radutny
MEP/FP Engineer: One World Consulting
Contractor: G.Corp Development
Site Area: 4,300 sf
Building Area: 10,300 sf
We received this commission from the same developer client after completing a slightly bigger multifamily building in a different neighborhood of the city. We have become known for solving rather challenging site constraints with a unique dwellings solutions. Given the positive relationship that was previously established with the client, we were given another opportunity to solve a challenging site and work on this multifamily building.
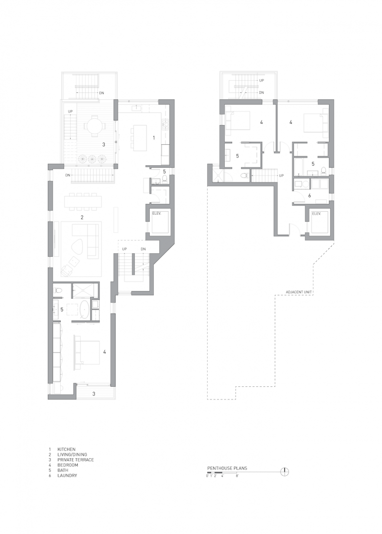
This new four unit multi-family building aims to contribute to an already established architectural dialogue within its neighborhood. As a result of Chicago-fire of 1871 and subsequent street re-planning, the site is rather atypical in shape. The southern pedestrian edge maintains an average Chicago lot dimension, yet the property steps and widens as it opens up toward the rear.
We utilized the side-yard setback as an exterior circulation corridor, locating the primary vertical interior circulation at the middle of the building footprint, the wider section of the plan. In this entry procession, we considered the poetic opportunities offered by the existing building walls as part of the pedestrian experience; juxtaposing the new with the old Chicago masonry.
The building is organized as a series of overlapping Tetris-like dwelling spaces. The sleeping rooms are located towards the front, the narrowest section of the building, while the living spaces were placed at the back, where the lot opens up. This arrangement enabled us to efficiently distribute the required building area, meeting zoning height constraints while maximizing for daylight within this bounding lot. Balconies and terraces are integrated at both ends of the building, promoting social connectivity with the surrounding context and creating opportunity for cross ventilation within each unit.
The project is located half a block from a city public park, half a block from the bus stop, near a direct bike route connecting north and south parts of the city along a major thoroughfare. Social connectivity between neighbors and their neighborhood is one of the key design intents of this project, encouraging visual connectivity between public and private spaces enhances community building and enriches an intangible sense of place. In addition major grocery store together with many ethnic restaurants, bars and coffee shops are located within five minutes walking radius, encouraging walking rather than car use.
There were a few minor changes that occurred in the planning of the upper unit, as the client asked to increase the amount of sleeping rooms from the initial program. Overall, the building massing and organization remained intact from the schematic design phase.
As with all our projects both passive and active strategies were utilized to make this project as efficient and low energy consumption as possible, despite the developer driven budget. Siting the building with existing orientation and shading in mind, large operable windows for daylighting and cross ventilation, greater performance glass at direct sun exposures, high-value continuous insulation as well as locally sourced materials. Landscaping at the front yard was designed using native vegetation removing need to irrigate the plantings throughout the summer months. Active strategies were implemented in the design via highly efficient zoned HVAC systems, LED lighting throughout, advanced lighting controls with daylight adjustment, Energy Star appliances, programmable digital thermostats, dual flush toilets, and low VOC paints. The simple, building shape allowed the majority of the structure and facade elements to be prefabricated and efficiently erected, thus reducing waste on site and construction time.
The outward reading of this building was carefully considered as its form and scale is visible from many vantage points within the neighborhood. We removed the formal notion of front, side, and rear as part of the conversation, but rather thought of the building as a formal response to interior and site planning considerations, combined with the question of how to connect with the place that we are building in. We built upon the surrounding material language of masonry and iron work, bringing the two together in a contemporary and sensible way. The simple, building shape allowed the majority of the structure and facade elements to be prefabricated and efficiently erected, thus reducing waste on site and construction time. The exterior wall assembly consists of robust thermal masonry wall, offering increased overall performance. Most major building materials were locally sourced, with face brick coming from a small factory located in the nearby state of Iowa.
Email interview conducted by John Hill.


















