8 Octavia
Responding to the need for contemporary buildings "to protect and temper with as little energy and resources as possible," Stanley Saitowitz | Natoma Architects covered the facade of the 8 Octavia residential building with louvers that each occupant operates. Primarily facing west and the warm afternoon sun, these louvers give the impression that the building breathes as they open and close over the course of a day. The architects answered a few questions about the building.
Please provide an overview of the project.
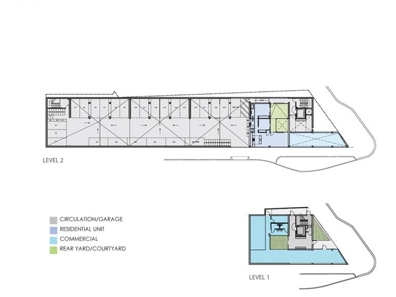
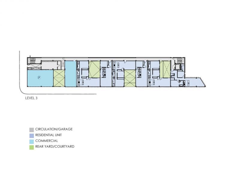
8 Octavia is a gateway building, announcing the new San Francisco at the entry from the 101 Freeway. Each occupant operates louvers on the façade, constantly changing the image of the building. Units are clustered around vertical courts and modeled on lofts with optimal free space, achieved by services being compressed along common thick walls or in floating pods, creating freedom for the residents.
What are the main ideas and inspirations influencing the design of the building?
Traditional San Francisco facades are pretty, with delicate vertical articulation, but now buildings also have other work to do. They need to protect and temper with as little energy and resources as possible. Skins of building have to be alive, breathing and changing with the time of day and seasons, responding to the variation in climatic conditions to adjust the interiors. On this predominantly western façade, each occupant can modulate the sunlight and sound in their unit, controlling the temperature and re-drawing the exterior elevation as they do, displaying their occupancy to the city outside as a constantly changing billboard. Ornament is replaced by instrument.
How does the design respond to the unique qualities of the site?
The site is where the elevated 101 Freeway connects to the surface streets at Market and becomes Octavia Boulevard – the entrance to north/west sector of San Francisco. The First Baptist Church with its classical façade and strong cornice is one pylon of this entrance. Mirroring this mass, on the other side of Octavia Boulevard, 8 Octavia completes the gateway. This entry is seen as an opportunity to present our new city, one that folds tradition and innovation. The long thin mass of building floats above the street to make public commercial space at both ends.
How did the project change between the initial design stage and the completion of the building?
While the project evolved in detail through development and construction, the first design and the final product are consistent.
What products or materials have contributed to the success of the completed building?
The most important product are the operable louvers which makes the building a constantly changing object in the city as occupants modulate the light and sound of their interiors.
Email interview conducted by John Hill.
8 Octavia
2014
San Francisco, California
Client
DDG Partners LLC/DM Dev. Partners LLC
Architect
Stanley Saitowitz | Natoma Architects Inc.
San Francisco
Design Principal
Stanley Saitowitz
Project Architects
Neil Kaye, Ulysses Lim, Markus Bischoff, Mark Holmquist, James Eidse, Feifei Feng
Structural Engineer
KPFF Consulting Engineers
MEP/FP Engineer
RW Consulting Engineer
Landscape Architect
Marta Fry Landscape
Contractor
Cannon Constructors
Handle-free kitchens
SieMatic
Glazing
Arcadia
Shades
Whisper shades
Pedestals and pavers
Versijack
Site Area
12,470 sf
Building Area
71,000 sf
Photographs
Bruce Damonte
Drawings
Stanley Saitowitz | Natoma Architects Inc.

















