US Building of the Week
83 Gardner Street
From asphalt to apartments: 83 Gardner Street, in Boston's Allston neighborhood, is an apartment building that replaces a former parking lot and further connects to a Victorian house that was renovated as part of the project. Hacim + Associates answered a few questions about the restoration and addition.
Location: Allston, Massachusetts, USA
Client: The Hamilton Company
Architect: Hacin + Associates
- Design Principal: David J. Hacin, FAIA
- Project Architect/Manager: Jeffrey Brown, AIA LEED AP
- Project Team: Joshua Lentz, AIA, LEED AP BD +C (Architect), Dorothy Deák (Interior Designer)
MEP/FP Engineer: NV5
Landscape Architect: Ground, Inc.
Lighting Consultant: Lam Partners Inc.
Contractor: Hamilton Construction Management Corp. (Stephen Weinig, Vice President; , Marco Bader, Project Executive; Ted Leavitt, Project Manager)
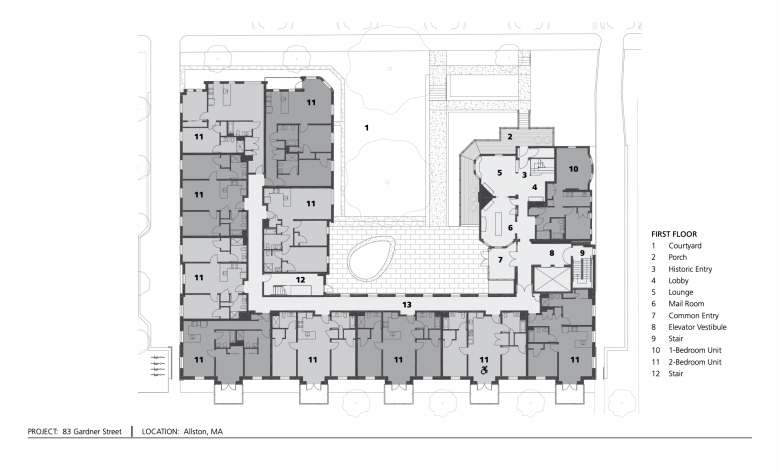
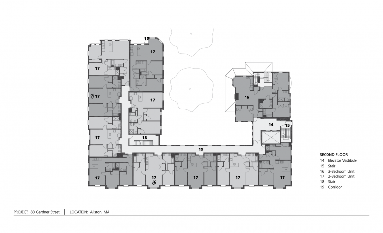
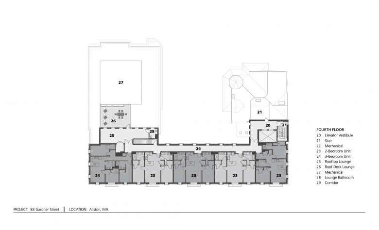
83 Gardner Street is a four-story, 38-unit apartment building in Boston’s Allston neighborhood. The project includes the preservation and restoration of a freestanding, Victorian-era house, one of few that remain in the area, and a new addition, involving a full scope of architectural and interior design services. 83 Gardner is the first phase of Packard Crossing, a residential development that provides the community with moderately priced "work-force" housing and unifies the neighborhood through a series of interconnected paths and green spaces. The project is on track to be LEED Gold Certified.
Located near Boston University, the site originally comprised a large asphalt parking lot, two significant trees, and a historic house that was subdivided into four apartments. The design team established two overarching goals: to respectfully restore the Victorian and introduce a contextually sensitive intervention to the neighborhood.
The project comprises three distinct volumes: the existing structure, a three-story addition along Gardner Street, and a southern bar that links the two. Each is unique in its materiality, representing a convergence of historic and more modern elements while the Victorian remains the focus of the composition. The addition’s wood-like material is a contemporary interpretation of clapboard while the southern bar is neutral in tone and acts as a backdrop for the overall composition. In terms of scale, the concept draws inspiration from the neighborhood, incorporating dormers and articulated rooflines akin to the house, as well as bays and decks that echo the syncopation of neighboring triple-decker homes.
83 Gardner Street is on track to be LEED Gold Certified. The project mitigates the urban heat island (UHI) effect in this working-class neighborhood through the elimination of an existing asphalt parking lot and strong focus on green spaces. In addition, the project has a tight envelope with continuous exterior insulation and point supported cladding. Soft and permeable surfaces were incorporated to assist with rainwater infiltration and indigenous plantings were utilized within the landscape design. The plantings help to reinforce their local habitat and do not require irrigation. In particular, two large, mature trees were maintained on the site, providing critical access to shade in an area with limited tree cover.
The design team utilized the light-frame construction method with panelized wood. This type of construction helped expedite the erection of the building while reducing on-site waste, as opposed to traditional site stick-built wood framing. In addition, a cloud point survey of the existing building was used to provide measurements of steel fabricated in connecting elements. Energy conservation and high thermal comfort are prioritized through the use of a high-efficiency Heat Recovery Ventilator (HRV) system.
Email interview conducted by John Hill.
Related articles
-
Spaces for Cars – And for People
Kennedy & Violich Architecture, Ltd. (KVA) | 02.03.2026 -











