930 Poydras Residential Tower

20. June 2010

Design Principal
Steve Dumez, FAIA

Project Architect
Jose Alvarez, Assoc. AIA, LEED AP
Jack Sawyer, AIA, LEED AP

Project Manager

Chuck Hite, CSI, AIA

Project Team
Wendy Kerrigan
Bob Kleinpeter
Magen R. Gladden

Structural Engineer
Morphy Makofsky Inc.

MEP/FP Engineer

Mechanical Construction Company (Mechanical)
Canzoneri & Associates (Electrical)
Moses Engineers (MEP Engineers for retail space only)

Contractor

Gibbs Construction Company

Photos
Timothy Hursley

Exterior view from Poydras Street.

What were the circumstances of receiving the commission for this project?

This project for a local developer heavily involved in the housing market in downtown New Orleans came out of a relationship developed through prior work experience. As a developer he had asked us in the past to develop feasibility studies to assess the potential of properties for new development opportunities. Our firm had worked closely with him on a number of potential project work-outs prior to this project breaking loose as a financially viable investment.

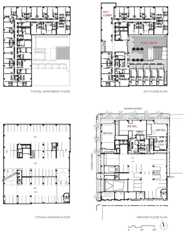
9th Floor sky lobby interior

Can you describe your design process for the building?

We had completed a concept study for feasibility purposes prior to Hurricane Katrina, when the developer had considered partnering with the then current landowner to develop the site. In the wake of the hurricane, numerous tax credits and development incentives became available that suddenly made the project viable. In addition, the owner of the property decided to sell to the developer, and we began revising the original project work out.

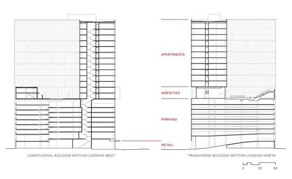
The original concept was for a slender 36 story tower containing 250 apartments above a 500 car garage. Designed to vertically re-imagine the typically horizontal condition of New Orleans’ dense French Quarter blocks, the project was organized to create a communal amenity floor at the 9th level, reinterpreting the courtyard housing typology for urban, high-rise living. At this raised “courtyard” level, shuttle elevators would transfer from garage to tower to instigate opportunities for residents to cross paths with one another in a shared, communal space as opposed to the typical, introverted experience found in most high-rise residential developments.

9th Floor outdoor amenity deck

This initial design had a narrow east-west orientation in order to optimize solar strategies. We proposed a high-performance glass curtain wall for the entire envelope, with the south facing portion of the tower intended as a “smart skin” of photovoltaic-integrated glazing for energy harvesting and solar control. Preliminary pricing at the concept stage proved this initial proposal unaffordable within the developer’s pro-forma, primarily on two fronts – foundations and building skin.

The narrow vertical tower coupled with high wind loads created a significant “lever arm” effect and required a costly foundation system due to the poor soil conditions found in New Orleans. The initial system consisting of deep steel pipe piles was revised, along with the building massing, to a more conventional precast concrete pile system to significantly reduce foundation costs.

The all glass skin (along with the integrated, energy harvesting “smart skin” component) proved significantly over budget. The preliminary pricing determined that nothing greater than a 35% glazed envelope would achieve the developer’s financial goals. Also, the garage required natural ventilation, both from a sustainable as well as cost perspective. Our final solution distributes the 35% of glazing predominately at the upper apartment levels, while distributing a smaller percentage at the garage, creating a random pattern of glazing that reflects the unique program conditions found in the project.

At the garage levels, the metal skin is perforated to provide natural ventilation where required. The double height “sky lobby” at the ninth floor is wrapped in clear, low-E glazing, providing commanding views both into and out of the space and connecting the room to its urban condition. Cantilevered out over Poydras Street, this sky lobby functions as the living room of the project - a social mixing box that has become an important gathering spot for residents since the building’s opening earlier this year.


How does the building compare to other projects in your office, be it the same or other building types?


Our firm has not had many true, urban high-rise opportunities, nor have we executed a significant number of residential projects. With the completion of 930 Poydras, this building actually became one of just four within our portfolio over five stories in height.

Regardless of type or scale, our design approach focuses on site specificity and enhancing human experience – and this project clearly flows from this philosophy. With many of our projects located in the New Orleans and Southeastern region, we consistently find ourselves engaging with a given project’s context while pushing the boundaries of very traditional settings with projects that clearly speak to their time and place.

Are there any new/upcoming projects in your office that this building’s design and construction has influenced?

A project currently nearing completion, the 900-student L.B. Landry High School (also in New Orleans) speaks strongly to the language of 930 Poydras. Also developed with an insulated metal skin (albeit corrugated), the building features a similarly dynamic glass/metal envelope coupled with an exposed concrete frame. The mixing box in this project, though, is an exterior courtyard created by the U-shaped floor plan that provides a central outdoor gathering space for students.

E-mail interview conducted by John Hill

Design Principal
Steve Dumez, FAIA

Project Architect
Jose Alvarez, Assoc. AIA, LEED AP
Jack Sawyer, AIA, LEED AP

Project Manager

Chuck Hite, CSI, AIA

Project Team
Wendy Kerrigan
Bob Kleinpeter
Magen R. Gladden

Structural Engineer
Morphy Makofsky Inc.

MEP/FP Engineer

Mechanical Construction Company (Mechanical)
Canzoneri & Associates (Electrical)
Moses Engineers (MEP Engineers for retail space only)

Contractor

Gibbs Construction Company

Photos
Timothy Hursley

Related articles 

Featured Project 

Atelier KI JUN KIM

House by the Wall

Other articles in this category