A Cultural Bridge to the 21st Century
Jishou city is the regional capital of the autonomous prefecture of the Tujia and Miao ethnic minorities. It is located within in the Western Hunan province, and has a population of over 300,000 people. Huang Yongyu, a famous artist belonging to the Tujia minority led an initiative for a new museum of contemporary and traditional art for Jishou, his hometown. The owner of this new museum initially made land available in a newly developed area outside the historic centre. But the architects at Atelier Feichang Jianzhu convinced them to locate the museum within the traditional fabric of the city.
Client: Jishou Qiangzhou Historic TownAdministration
Principal Architects: Yung Ho Chang, Lijia Lu (Atelier Feichang Jianzhu)
Project Team: Liang Xiaoning, Yang Pu, Liu Kunpeng, Su Siqi, Rao Gang
Structural Design Consultant: Chang Qiang
Building Area: 3535 m2
Structure and Material: Steel truss, reinforced concrete arch
Design Period: 2013–2016
Completion Time: 2019
Photographer: Tian Fangfang
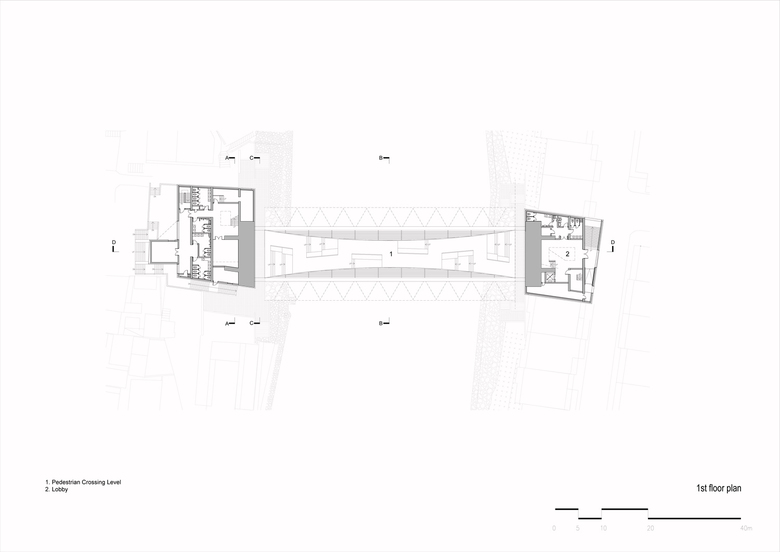
The Wanrong River runs through the centre of Jishou city and is crossed by numerous pedestrian bridges. One type of bridge is a traditional covered-footbridge, whose history dates back more than 2,000 years. This covered bridge protects from wind and rain, hence bridges of this type are also called wind-and-rain-bridges. The architects drew on this popular image of the traditional covered pedestrian bridge, updating it with their concept for the museum as a bridge. Situated in a densely populated part of the town, the new museum-bridge connects both sides of the river. The client and the local population accepted the design proposal, which allows the bridge to be used without entering the museum.
Starting with the traditional image of the covered footbridge, the architects envisioned a modern version of a bridge housing the city’s first museum for contemporary and traditional art that could nevertheless function amidst the daily life of the city. The hybrid program of museum and footbridge determines the spatial organisation: the museum is the ‘cover’ for the footbridge underneath which an urban deck with space for vendors is offered. In this respect it echoes the functions of the old covered bridges, which were used as meeting places and public spaces by the local population.
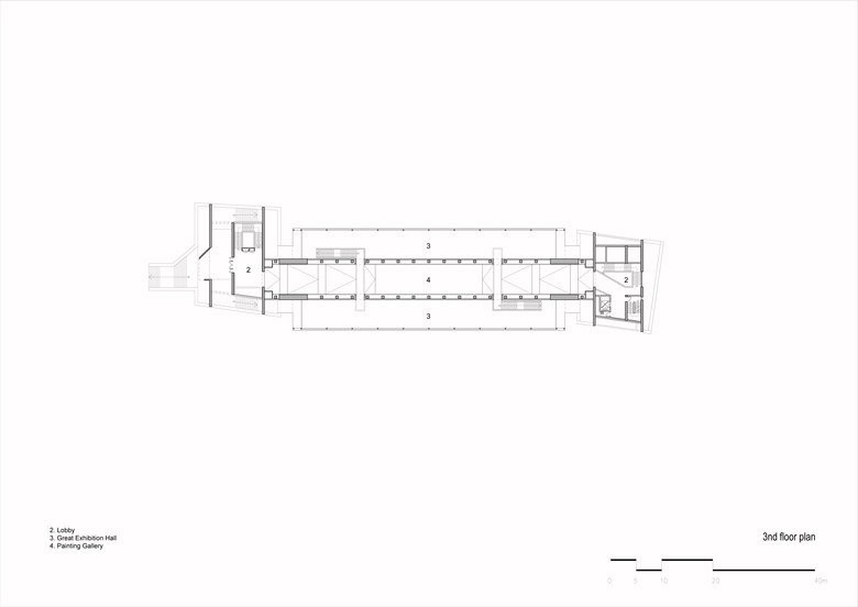
The museum can be entered from both sides of the river and houses two large exhibition spaces. In terms of its structure, the building is in fact two bridges: an upper one supported by reinforced concrete arches that form the containing space for the art, and a lower one supported from below by steel trusses, its open sides offering unrestricted views of the river and allowing water to flow through the bridge in times of flooding. The colour and materially of the new museum blend with the surrounding grey brick neighbourhood.
Both gable ends of the museum bridge are inserted within the existing building terraces along the river that contain shops, restaurants, bed & breakfasts, with living space for the owners often on the upper floors. This setting has enabled the museum to automatically become a part of everyday life. Not only does it bridge the river, it also provides easy access to contemporary culture. The two façades of the bridge are made of glass with ceramic plates for shading. In the evening light, the Jishou Art Museum (JAM) shins like a lantern, as a new home for cultural production of the future.















