A Cyber-Barn for the Countryside
A Cyber-Barn for the Countryside
Text by Eduard Kögel
Shitang Village, located forty kilometres south of Nanjing in the Jiangning District, was selected by the government in 2011 as a test location for experimental rural tourism. Since then the infrastructure has improved significantly: farmhouse inns and restaurants have opened, a sewage system was installed and the existing houses have been painted in a uniform local style. Even ponds and waterways have been cleaned and dredged. To keep up with technological developments and to provide the village with internet access, AZL Architects from Nanjing recently built an Internet Conference Centre about 500 metres outside the village.
Compared to the existing buildings in the village, the new centre is very large. Similarly-scaled indoor spaces in the area have historically only been either the greenhouses of peasant workers used as production facilities or the village auditoriums that were the public buildings of the communes. After analysing these two types, the architects tried to find a form that suited both the functional purpose and the landscape. The building sits in front of a wooded hill and next to a pond, but is otherwise surrounded by open countryside.
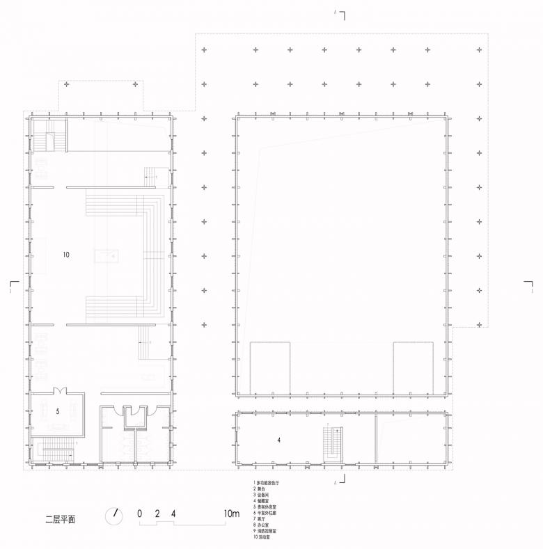
The building consists of two volumes combined by a roof. The larger element is a twelve meters high multifunctional space; the smaller element contains a lounge and offices on the ground floor, and a small stage with seating on three sides and some multi purpose rooms on the first floor. Ground floor windows allow views to the landscape in all directions, and the multifunctional hall is lit additionally by roof lights. Between the two buildings is a covered open space that provides shelter from the weather. The roof shape is resolved as a zigzag line with an underlying steel structure. Wood is the dominant building material for the facades and in the interior. The overall impression when seen from afar is of a large agricultural barn in the countryside.
The design team looked for a construction system that facilitates the construction of large buildings within a short timeframe. With super-slim prefabricated columns in wood and steel, an elegant design was found that also makes new technology viable in rural areas. The engineer Yuan Xin researches spatial structures and tensegrity systems. For this building, he applied ideas from his research to keep the columns as slim as possible while still allowing stable construction. The columns were assembled from prefabricated elements to a width of 14 centimetres, a height of 10.45 meters and a slenderness ratio of 1:75. The construction on site was completed in 45 days.
The necessity to extend technology into the hinterlands in order to connect villages to the wider world, is leading to new building typologies. In this experimental case, the building has to demonstrate over time what an Internet Conference Centre located outside a settlement in the countryside actually means. However, the name is also a bit misleading, as the building will also be used for cultural and commercial events. The politicians and planners responsible for this project are aware of the development challenges facing rural villages. With such new measures, they strive to keep rural life attractive and thereby stop the ‘brain-drain’ to the cities. Because this is the ultimate question for the future of the villages in China.
















