A Factory in the Village

Eduard Kögel | 7. March 2018
Photo: Wang Ziling

Project Name: Brown Sugar Workshop
Location: Xing Village, Songyang, Lishui, Zhejiang Province
Program: Workshop / Exhibition
Client: People's Government of Xing Village, Songyang County
Architecture Design: DnA_Design and Architecture
Principle Architect: Xu Tiantian
Design Team: Xu Tiantian, Zhou Yang
Interior Design: DnA_Design and Architecture
Lighting Design: Zhang Xin Studio, Architecture Department of Tsinghua University
Structure System: Steel Structure
Gross Floor Area: 1233.92 m2
Building Foot Print: 1309.41 m2
Design Period: 2015.06­–2015.12
Construction Period: 2015.12–2016.10
 

Photo: Han Dan

New transport infrastructures with motorways and high-speed trains have catapulted the agrarian county into a new era, since the large cities of Shanghai and Hangzhou can now be reached relatively quickly. An airport is also under construction in the nearby city of Lishui. It is supposed to open in 2021 and is conceived for one million passengers in 2025. As part of the technical infrastructure, access to the Internet, through which a lot of day-to-day business takes place, has become established in Songyang, even in mountain villages.

Photo: Han Dan

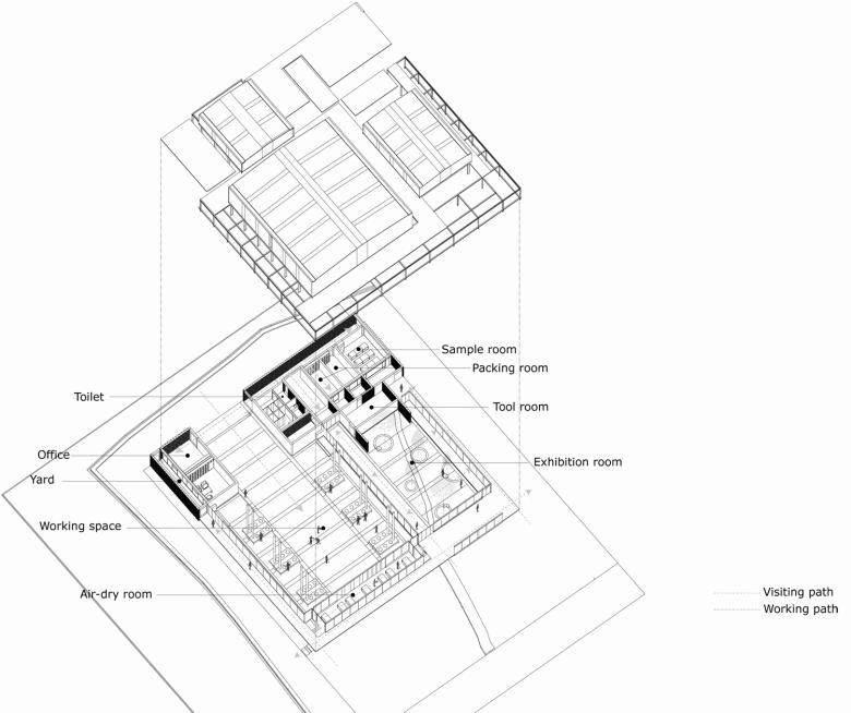
Architectural and spatial models for improving rural living conditions in the mountainous landscape of Songyang County were developed in cooperation between the public sector and the architect Xu Tiantian of DnA, Design and Architecture of Beijing. One impressive example is the Brown Sugar Factory in the village of Xing, which is also used as community centre.

Photo: Wang Ziling

The village of Xing is located on the central level of the Songyin River. The region is important for the cultivation of sugarcane and the production of brown sugar, which is also the village’s primary source of income. The new community building is located on the edge of the village, at the transition to fields used for agriculture, and replaces private workrooms, which no longer satisfied technical requirements. It consists of several building elements, which accommodate different functions and are connected to each other by corridors. The completely transparent ground floor links the work zones to the fields and the neighbouring village structure.

Photo: Wang Ziling

The main room with the ovens is, however, actively used for sugar production only in the three winter months between October and December. It was therefore important to design the building in such a way that the village community can use it for other activities. Older inhabitants meet there during the day for tea, and films are shown or the local puppet theatre gives performances in the evening. The building has therefore given rise to a new sociocultural life, which assists in defining its identity anew.

Photo: H-J Commerell

The transparency between the different building elements and the unobstructed view of the processes involved in the production of brown sugar also make the building an attraction for visitors. The reduced materiality of bricks, steel construction, glass, and corrugated sheet metal creates a workroom that takes the cultural concerns of the village community into consideration. As an expression of contemporary production and as a social meeting place and space for culture, the architecture shapes the social community in the village in a sustainable way. Here, the village’s self-conception takes on a new form beyond traditional concepts.  

Photo: Eduard Kögel

Xu Tiantian has been working in the region for several years, and the factory is just one of many interventions that decisively improve the lives of the local people. The exhibition Rural Moves – The Songyang Story documents a part of these impressive interventions.
 (http://www.aedes-arc.de/cms/aedes/de/programm?id=18225832)

Photo: Eduard Kögel
Photo: Wang Ziling
Photo: Eduard Kögel
Photo: Eduard Kögel

Related articles 

Featured Project 

Atelier KI JUN KIM

House by the Wall

Other articles in this category